|
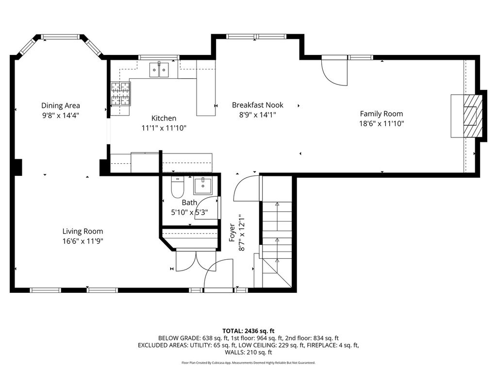
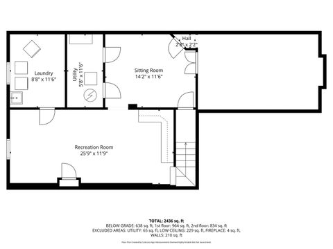
Welcome to this exceptional home that boasts the dreamiest private back yard views of the Oakhurst Forest Preserve. Inside you will find stunning hardwood flooring gracing the entire 1st floor. Custom touches such as thick baseboards and crown molding, and gorgeous upgraded lighting add so much charm and character throughout. Warm up next to a roaring fire from the marble surrounded fireplace, while enjoying peaceful views of all that nature has to offer right out of the large glass patio doors. The built-in bookshelves are perfect for displaying your treasures and tucking away games and blankets. You won't want to leave the custom banquette seating (that opens up for additional storage space) in the kitchen making it the coziest eating space, all perfectly positioned under a gorgeous light fixture. The fully updated kitchen is flooded with natural light from the large over the sink window, highlighting the warm granite counters and stone backsplash. Ample white cabinets, planning desk, stainless steel appliances and a pantry with built in Shelf Genie organizational system. The peninsula can make for perfect additional counter seating. Enter into the dining room with a huge bay window and a wide open view of the private backyard. The dining room flows right into the living room for such ease of entertaining your largest gatherings. You'll notice that the first floor powder room has been nicely updated. Upstairs you'll fall in love with the primary suite that has soaring vaulted ceilings, hardwood floors, a large walk-in closet and updated vaulted bathroom. The additional bedrooms boast new carpeting, neutral fresh paint and hardwood flooring in the hallway that ties all rooms together. The guest bathroom is white and bright, with modern updates such as new tile floor, new granite top vanity, new toilet. Downstairs, the finished basement is incredible - freshly painted and carpeted and it offers built-in cabinets and 2 separate rooms for all of your entertaining and storage needs. After entertaining and relaxing in your professionally designed and landscaped yard, including a second flagstone patio set perfectly under the shade of mature trees. Just step out of the backyard and you'll experiences miles of walking and biking paths that run along side of the over 394 acres of the Oakhurst Forest Preserve. Cut through the woods or walk around along McCoy to access Lake Patterson and a massive sled hill, just in time for the winter season! Fish and canoe in the summertime! Also within walking distance is Steck Elementary school with a private pedestrian bridge for safe crossing. Waubonsie lake, park and pavilion are a hop, skip and a jump away. In the warmer months you can enjoy all of the amenities Oakhurst has to offer such as basketball courts, soccer fields, sand volleyball, tennis and pickleball and you can also join the pool/clubhouse if desired! This home is set apart with its upgraded lighting and custom touches throughout, beautiful brick look entry sidewalk, custom patio with mature landscaping all within a fenced yard.. and no neighbors behind! Just move in and fall in love with your new home and neighborhood! Don't worry about updates, they've been done! 2025 - New carpet in 3 bedrooms and basement. Fresh paint in many rooms, laundry room and basement. 2024 - New stainless refrigerator and New patio door. 2020 - All New windows! Newer hot water heater. After 2010 - Approx roof age.
| DAYS ON MARKET | 18 | LAST UPDATED | 12/10/2025 |
|---|---|---|---|
| TRACT | Oakhurst | YEAR BUILT | 1990 |
| COMMUNITY | Aurora / Eola | GARAGE SPACES | 2.0 |
| COUNTY | DuPage | STATUS | Conditional |
| PROPERTY TYPE(S) | Single Family |
| School District | Waubonsie Valley High School |
|---|---|
| Elementary School | Steck Elementary School |
| Jr. High School | Fischer Middle School |
| High School | Waubonsie Valley High School |
| ADDITIONAL DETAILS | |
| AIR | Ceiling Fan(s), Central Air |
|---|---|
| AIR CONDITIONING | Yes |
| APPLIANCES | Dishwasher, Disposal, Dryer, Humidifier, Microwave, Range, Refrigerator, Washer |
| AREA | Aurora / Eola |
| BASEMENT | Finished, Partial, Sump Pump, Yes |
| CONSTRUCTION | Vinyl Siding |
| FIREPLACE | Yes |
| GARAGE | Attached Garage, Yes |
| HEAT | Natural Gas |
| HOA DUES | 360 |
| INTERIOR | Vaulted Ceiling(s), Walk-In Closet(s) |
| LOT | 0 |
| LOT DIMENSIONS | 65x110 |
| PARKING | Asphalt, Garage Door Opener, Attached, Garage |
| SEWER | Public Sewer |
| STYLE | Traditional |
| SUBDIVISION | Oakhurst |
| TAXES | 9183 |
| WATER | Public |
MORTGAGE CALCULATOR
TOTAL MONTHLY PAYMENT
0
P
I
*Estimate only
| SATELLITE VIEW |
| / | |
We respect your online privacy and will never spam you. By submitting this form with your telephone number
you are consenting for Humderto
Garcia to contact you even if your name is on a Federal or State
"Do not call List".
Listed with Keller Williams Infinity
The data relating to real estate for sale on this web site comes in part from the Broker ReciprocitySM Program of MRED. All real estate listings are marked with the Broker ReciprocitySM logo or the MRED Broker ReciprocitySM thumbnail logo (a little black house) and detailed information about them includes the name of the listing brokers.
The broker providing these data believes them to be correct, but advises interested parties to confirm them before relying on them in a purchase decision.
Copyright 2025 MRED. All rights reserved.

The broker providing these data believes them to be correct, but advises interested parties to confirm them before relying on them in a purchase decision.
Copyright 2025 MRED. All rights reserved.
This IDX solution is (c) Diverse Solutions 2025.