|
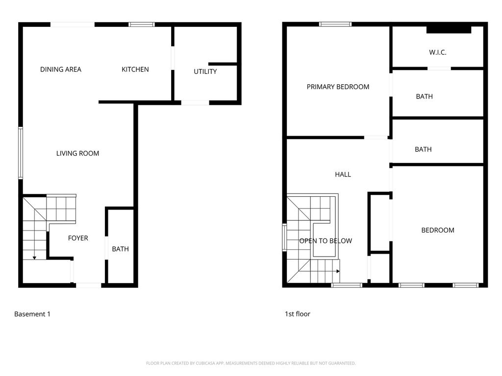
Affordable Starter Home in Lakewood Springs! Welcome to a bright and inviting 2 bedroom, 2.5 bath duplex that delivers comfort, convenience, and great value. Step inside to an open foyer with a main-floor half bath and an open staircase that brings in warm natural light, creating a welcoming first impression. The kitchen offers plenty of functionality with a utility room that doubles as both a pantry and in-unit laundry. Upstairs, the vaulted primary suite provides a relaxing retreat with a spacious private bath and a generous walk-in closet. A flexible loft area adds even more living space and can easily serve as a kids' zone, playroom, or home office. Value continues throughout the home with newer carpet, a roof approximately 6 years old, and an attached 1-car garage. Outside, enjoy a large backyard with no rear neighbors, giving you added privacy and room to unwind. All appliances stay for a smooth, easy move-in. Also an excellent choice for investors with strong rental potential. Tour today! This home offers the space, flexibility, and affordability you've been looking for!
| DAYS ON MARKET | 19 | LAST UPDATED | 12/4/2025 |
|---|---|---|---|
| YEAR BUILT | 2004 | COMMUNITY | Plano |
| GARAGE SPACES | 1.0 | COUNTY | Kendall |
| STATUS | Active | PROPERTY TYPE(S) | Condo/Townhouse/Co-Op |
| ADDITIONAL DETAILS | |
| AIR | Ceiling Fan(s), Central Air |
|---|---|
| AIR CONDITIONING | Yes |
| AMENITIES | Insurance |
| APPLIANCES | Dishwasher, Dryer, Range, Range Hood, Refrigerator, Washer |
| AREA | Plano |
| BASEMENT | None |
| CONSTRUCTION | Vinyl Siding |
| GARAGE | Attached Garage, Yes |
| HEAT | Forced Air, Natural Gas |
| HOA DUES | 42 |
| LOT | 0 |
| LOT DIMENSIONS | 120x37 |
| PARKING | Asphalt, Garage Door Opener, Attached, Driveway, Garage |
| SEWER | Public Sewer |
| STORIES | 2 |
| TAXES | 5189.08 |
| WATER | Public |
MORTGAGE CALCULATOR
TOTAL MONTHLY PAYMENT
0
P
I
*Estimate only
| SATELLITE VIEW |
| / | |
We respect your online privacy and will never spam you. By submitting this form with your telephone number
you are consenting for Humderto
Garcia to contact you even if your name is on a Federal or State
"Do not call List".
Listed with Swanson Real Estate
The data relating to real estate for sale on this web site comes in part from the Broker ReciprocitySM Program of MRED. All real estate listings are marked with the Broker ReciprocitySM logo or the MRED Broker ReciprocitySM thumbnail logo (a little black house) and detailed information about them includes the name of the listing brokers.
The broker providing these data believes them to be correct, but advises interested parties to confirm them before relying on them in a purchase decision.
Copyright 2025 MRED. All rights reserved.

The broker providing these data believes them to be correct, but advises interested parties to confirm them before relying on them in a purchase decision.
Copyright 2025 MRED. All rights reserved.
This IDX solution is (c) Diverse Solutions 2025.