|
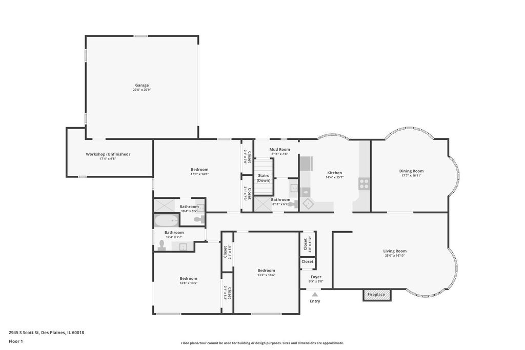
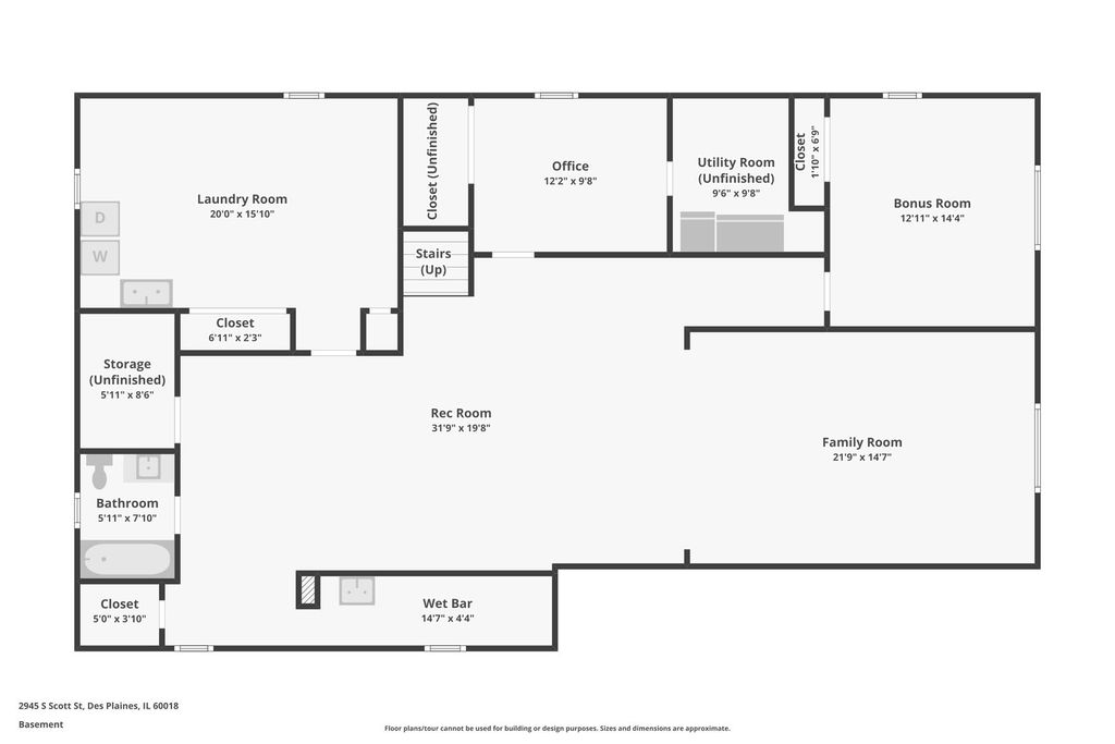
Welcome to this beautifully maintained 4,308 sq. ft. home, offering 4 bedrooms, 4 full bathrooms, a bonus room, and multiple living spaces designed for comfort and entertaining. Enjoy cozy evenings by one of two fireplaces, one on each level. Recent updates include new windows, a brand-new water heater, and a new driveway. The spacious, well-appointed kitchen features abundant cabinetry, stainless steel appliances, and recessed lighting. It opens seamlessly to the inviting family room highlighted by large bay windows, oak hardwood floors, crown molding, and skylights. Elegant French doors connect the living areas to the light-filled dining room, where walls of windows provide exceptional natural light. The main level offers three generously sized bedrooms, including a primary suite with a private full bath. All bedrooms feature ample closet space and large windows, and the main-level bathrooms have been recently remodeled. One bedroom offers direct access to the backyard, perfect for those who enjoy easy indoor-outdoor living. The expansive lower level is ideal for entertaining, featuring a fourth bedroom, a bonus room perfect for an office, media, or playroom, plus a large family room with a fireplace. This open-concept space flows into a recreation area complete with a wet bar, pool table, along with a full bath for added convenience. A large, private laundry room offers flexibility and could also serve as a workout or hobby space. Additional highlights include an attached 2-car garage with a dedicated workshop area. Ideally located just minutes from schools, shopping, parks, and expressways (I-90 & I-294). Enjoy easy access to downtown Des Plaines, the Des Plaines Theatre, the vibrant Rosemont entertainment district, Fashion Outlets of Chicago, public transportation, and O'Hare International Airport.
| DAYS ON MARKET | 8 | LAST UPDATED | 12/15/2025 |
|---|---|---|---|
| YEAR BUILT | 1957 | COMMUNITY | Des Plaines |
| GARAGE SPACES | 2.0 | COUNTY | Cook |
| STATUS | Active | PROPERTY TYPE(S) | Single Family |
| School District | Maine West High School |
|---|---|
| Elementary School | Orchard Place Elementary School |
| Jr. High School | Iroquois Community School |
| High School | Maine West High School |
| ADDITIONAL DETAILS | |
| AIR | Central Air |
|---|---|
| AIR CONDITIONING | Yes |
| APPLIANCES | Dishwasher, Gas Cooktop, Microwave, Refrigerator, Stainless Steel Appliance(s) |
| AREA | Des Plaines |
| BASEMENT | Finished, Full, Sump Pump, Yes |
| CONSTRUCTION | Brick |
| FIREPLACE | Yes |
| GARAGE | Attached Garage, Yes |
| HEAT | Baseboard, Natural Gas |
| INTERIOR | Entrance Foyer, In-Law Floorplan, Wet Bar |
| LOT | 10019 sq ft |
| LOT DIMENSIONS | 123.5 X 81.9 X 124 X 82 |
| PARKING | Concrete, Garage Door Opener, Attached, Garage |
| SEWER | Public Sewer |
| STYLE | Ranch |
| TAXES | 8354 |
| UTILITIES | Cable Available |
| WATER | Public |
MORTGAGE CALCULATOR
TOTAL MONTHLY PAYMENT
0
P
I
*Estimate only
| SATELLITE VIEW |
| / | |
We respect your online privacy and will never spam you. By submitting this form with your telephone number
you are consenting for Humderto
Garcia to contact you even if your name is on a Federal or State
"Do not call List".
Listed with Compass
The data relating to real estate for sale on this web site comes in part from the Broker ReciprocitySM Program of MRED. All real estate listings are marked with the Broker ReciprocitySM logo or the MRED Broker ReciprocitySM thumbnail logo (a little black house) and detailed information about them includes the name of the listing brokers.
The broker providing these data believes them to be correct, but advises interested parties to confirm them before relying on them in a purchase decision.
Copyright 2025 MRED. All rights reserved.

The broker providing these data believes them to be correct, but advises interested parties to confirm them before relying on them in a purchase decision.
Copyright 2025 MRED. All rights reserved.
This IDX solution is (c) Diverse Solutions 2025.