|
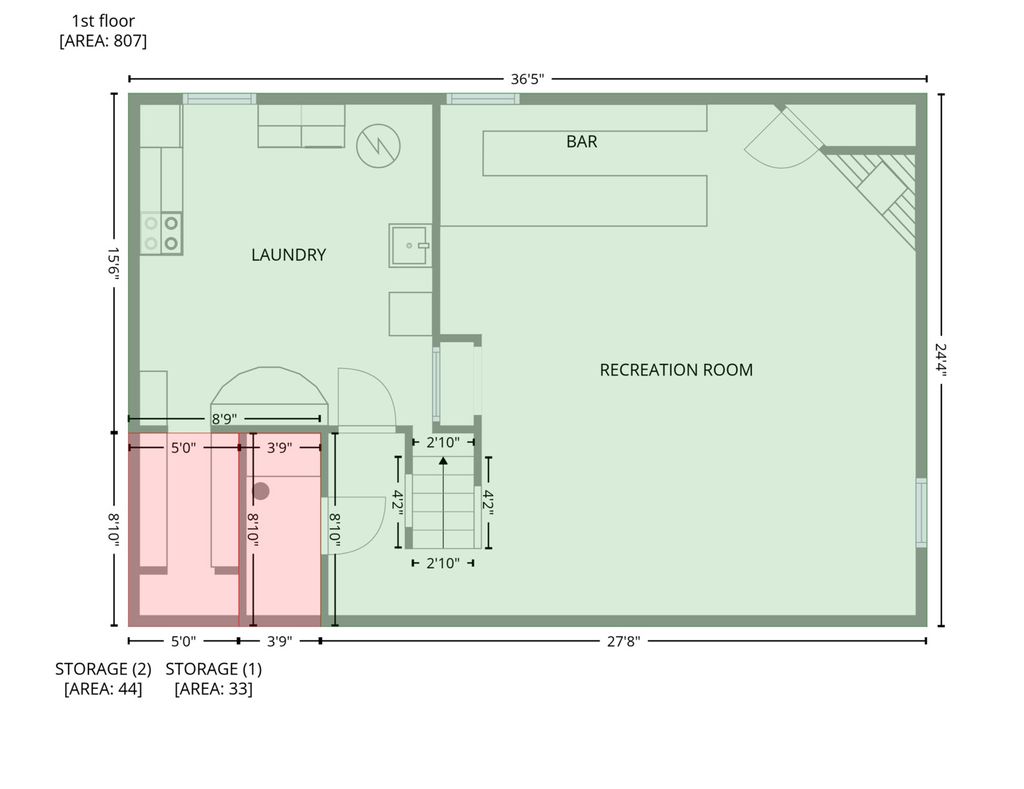
Beautifully maintained 4-bedroom, 2.5-bath home in the Glenbrook subdivision! This spacious property offers an ideal layout for everyday living and entertaining. The kitchen has been thoughtfully opened to the dining room, creating a bright, inviting space. Enjoy two fireplaces - one in the main-level family room and another in the finished basement, which also features an impressive bar area. Upstairs, the large primary bedroom includes an amazing walk-in closet and a private ensuite bath. Three additional bedrooms provide plenty of space for everyone. You'll appreciate the abundant storage throughout the home! Step outside to a large deck overlooking the pool and generous lot, perfect for summer fun. The home also includes a 2-car garage with epoxy flooring and a wide driveway. Major updates include: Roof (2020), Windows (2021), Hot Water Heater (2021), Furnace (2023). Well loved, consistently maintained, and truly move-in ready!
| DAYS ON MARKET | 11 | LAST UPDATED | 12/10/2025 |
|---|---|---|---|
| TRACT | Glenbrook | YEAR BUILT | 1971 |
| COMMUNITY | Streamwood | GARAGE SPACES | 2.0 |
| COUNTY | Cook | STATUS | Active |
| PROPERTY TYPE(S) | Single Family |
| School District | Streamwood High School |
|---|---|
| Elementary School | Glenbrook Elementary School |
| Jr. High School | Canton Middle School |
| High School | Streamwood High School |
| ADDITIONAL DETAILS | |
| AIR | Central Air |
|---|---|
| AIR CONDITIONING | Yes |
| AREA | Streamwood |
| BASEMENT | Finished, Full, Yes |
| CONSTRUCTION | Brick, Vinyl Siding |
| FIREPLACE | Yes |
| GARAGE | Attached Garage, Yes |
| HEAT | Natural Gas |
| LOT | 9583 sq ft |
| LOT DIMENSIONS | 68X144X77X133 |
| PARKING | Concrete, No Garage, Attached, Garage |
| SEWER | Public Sewer |
| STYLE | Traditional |
| SUBDIVISION | Glenbrook |
| TAXES | 7402 |
| WATER | Public |
MORTGAGE CALCULATOR
TOTAL MONTHLY PAYMENT
0
P
I
*Estimate only
| SATELLITE VIEW |
| / | |
We respect your online privacy and will never spam you. By submitting this form with your telephone number
you are consenting for Humderto
Garcia to contact you even if your name is on a Federal or State
"Do not call List".
Listed with Baird & Warner
The data relating to real estate for sale on this web site comes in part from the Broker ReciprocitySM Program of MRED. All real estate listings are marked with the Broker ReciprocitySM logo or the MRED Broker ReciprocitySM thumbnail logo (a little black house) and detailed information about them includes the name of the listing brokers.
The broker providing these data believes them to be correct, but advises interested parties to confirm them before relying on them in a purchase decision.
Copyright 2025 MRED. All rights reserved.

The broker providing these data believes them to be correct, but advises interested parties to confirm them before relying on them in a purchase decision.
Copyright 2025 MRED. All rights reserved.
This IDX solution is (c) Diverse Solutions 2025.