|
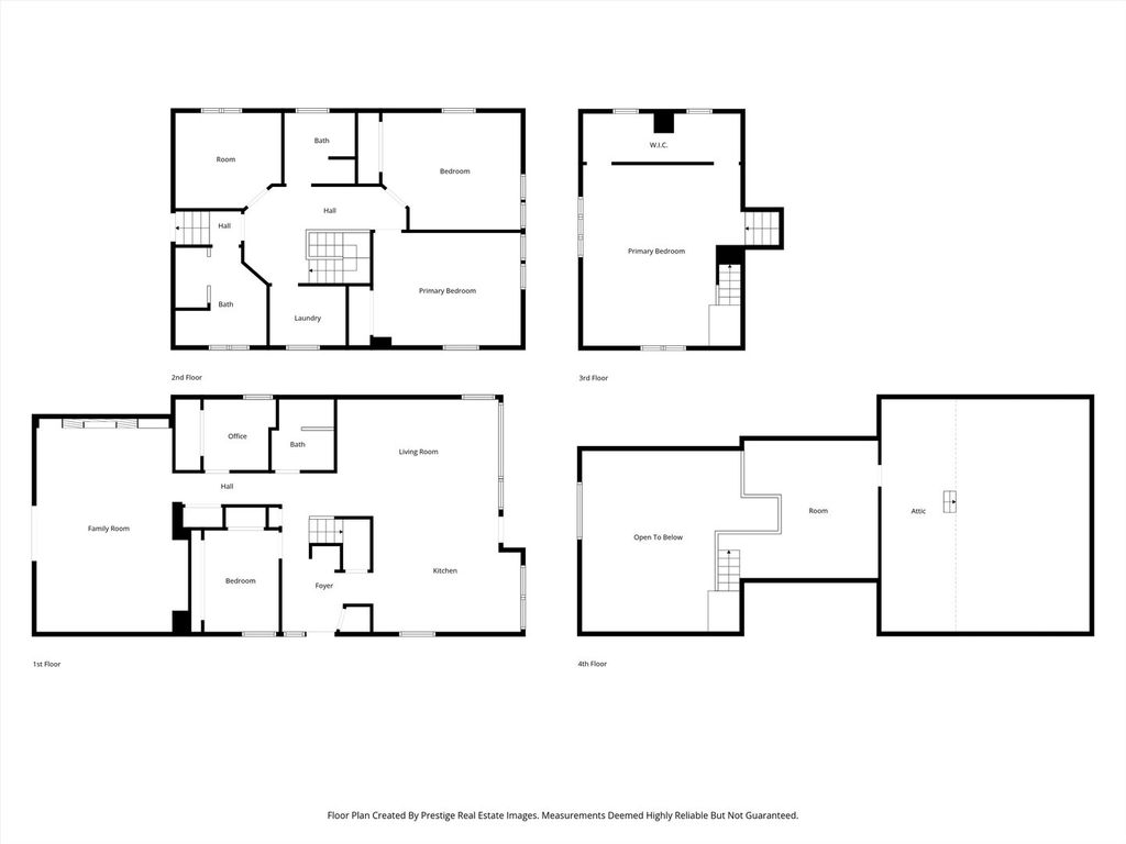
Welcome to a residence where comfort meets elegance. This stunning home offers 5 bedrooms and 3 full bathrooms, thoughtfully remodeled in 2019 and maintained with exceptional care, presenting like new. The gourmet kitchen is the heart of the home, showcasing premium quartz countertops, an oversized quartz island, stainless steel appliances, designer backsplash, and refined lighting that elevates the entire space. The adjoining dining area, enhanced with an elegant accent wall, creates a warm and sophisticated flow throughout the main level. The first floor features a full bathroom, a well-appointed bedroom, and a dedicated office, perfect for today's lifestyle needs. Continue on to the impressive living room, complete with a custom wet bar, mini fridge, fireplace, and soaring cathedral-style ceilings, offering an inviting setting for both everyday living and upscale entertaining. The second level includes another full bath, three spacious bedrooms, and a conveniently located laundry area. Retreat to the luxurious primary suite, which boasts a multi-level layout, spa-inspired bathroom, double closets, and abundant space to create your own personal sanctuary. Step outside to a backyard designed for enjoyment and entertainment. Featuring an above-ground pool, an expansive deck ideal for gatherings, generous yard space, a storage shed, and a 2.5-car garage, this outdoor area completes the home's impressive appeal. You can truly tell the owners took the time to make sure this house feels like home. Schedule your visit today.
| DAYS ON MARKET | 13 | LAST UPDATED | 12/10/2025 |
|---|---|---|---|
| YEAR BUILT | 1957 | COMMUNITY | Chicago Ridge |
| GARAGE SPACES | 2.5 | COUNTY | Cook |
| STATUS | Active | PROPERTY TYPE(S) | Single Family |
| ADDITIONAL DETAILS | |
| AIR | Central Air |
|---|---|
| AIR CONDITIONING | Yes |
| APPLIANCES | Dishwasher, Disposal, Dryer, Range, Refrigerator, Stainless Steel Appliance(s), Washer |
| AREA | Chicago Ridge |
| BASEMENT | Crawl Space |
| CONSTRUCTION | Brick, Vinyl Siding |
| FIREPLACE | Yes |
| GARAGE | Yes |
| HEAT | Forced Air, Natural Gas |
| INTERIOR | Cathedral Ceiling(s) |
| LOT | 0 |
| LOT DIMENSIONS | 78x129 |
| PARKING | Concrete, Garage Door Opener, Detached, Garage |
| POOL DESCRIPTION | Above Ground |
| SEWER | Public Sewer |
| STYLE | Contemporary |
| TAXES | 8756 |
MORTGAGE CALCULATOR
TOTAL MONTHLY PAYMENT
0
P
I
*Estimate only
| SATELLITE VIEW |
| / | |
We respect your online privacy and will never spam you. By submitting this form with your telephone number
you are consenting for Humderto
Garcia to contact you even if your name is on a Federal or State
"Do not call List".
Listed with RE/MAX LOYALTY
The data relating to real estate for sale on this web site comes in part from the Broker ReciprocitySM Program of MRED. All real estate listings are marked with the Broker ReciprocitySM logo or the MRED Broker ReciprocitySM thumbnail logo (a little black house) and detailed information about them includes the name of the listing brokers.
The broker providing these data believes them to be correct, but advises interested parties to confirm them before relying on them in a purchase decision.
Copyright 2025 MRED. All rights reserved.

The broker providing these data believes them to be correct, but advises interested parties to confirm them before relying on them in a purchase decision.
Copyright 2025 MRED. All rights reserved.
This IDX solution is (c) Diverse Solutions 2025.