|
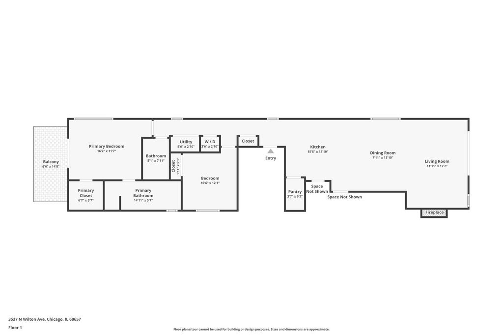
Situated on a quiet, residential block in the heart of Wrigleyville, this spacious 2-bedroom, 2-bath second-floor condo offers a well-balanced combination of quality finishes, thoughtful layout, and everyday comfort. The open living and dining area features hardwood floors, crown molding, and a gas fireplace, with west-facing exposure that brings in natural evening light and creates a warm, inviting space for both daily living and entertaining. The well-appointed kitchen features high-end stainless steel appliances including Viking and Sub-Zero, quartz countertops, ample cabinetry, a dedicated pantry, and an island with seating. The primary suite provides a private retreat with a walk-in closet and an en-suite bath featuring a dual vanity, soaking tub, separate glass-enclosed shower, and heated floors, along with access to a private rear balcony with east-facing exposure and morning light. The second bedroom offers flexibility for guests, a home office, or additional living space, and there is a full second bath. Additional features include in-unit laundry, central air, dedicated storage, one exterior parking space, and recent mechanical updates. The home is located in a well-maintained four-unit boutique building and is conveniently located near the Red Line, Southport Corridor, neighborhood dining, shopping, parks, and everyday amenities.
| DAYS ON MARKET | 27 | LAST UPDATED | 1/14/2026 |
|---|---|---|---|
| YEAR BUILT | 2005 | COMMUNITY | CHI - Lake View |
| COUNTY | Cook | STATUS | Conditional |
| PROPERTY TYPE(S) | Condo/Townhouse/Co-Op |
| ADDITIONAL DETAILS | |
| AIR | Central Air |
|---|---|
| AIR CONDITIONING | Yes |
| AMENITIES | Insurance, Water |
| APPLIANCES | Dishwasher, Disposal, Dryer, Gas Oven, Microwave, Range, Range Hood, Stainless Steel Appliance(s), Washer |
| AREA | CHI - Lake View |
| BASEMENT | None |
| CONSTRUCTION | Block, Brick |
| EXTERIOR | Balcony |
| FIREPLACE | Yes |
| HEAT | Forced Air, Natural Gas, Radiant Floor |
| HOA DUES | 214 |
| INTERIOR | Storage, Walk-In Closet(s) |
| LOT | 0 |
| LOT DIMENSIONS | COMMON |
| PARKING | Assigned |
| SEWER | Public Sewer |
| STORIES | 4 |
| TAXES | 9916 |
MORTGAGE CALCULATOR
TOTAL MONTHLY PAYMENT
0
P
I
*Estimate only
| SATELLITE VIEW |
| / | |
We respect your online privacy and will never spam you. By submitting this form with your telephone number
you are consenting for Humderto
Garcia to contact you even if your name is on a Federal or State
"Do not call List".
Listed with @properties Christie's International Real Estate
The data relating to real estate for sale on this web site comes in part from the Broker ReciprocitySM Program of MRED. All real estate listings are marked with the Broker ReciprocitySM logo or the MRED Broker ReciprocitySM thumbnail logo (a little black house) and detailed information about them includes the name of the listing brokers.
The broker providing these data believes them to be correct, but advises interested parties to confirm them before relying on them in a purchase decision.
Copyright 2026 MRED. All rights reserved.

The broker providing these data believes them to be correct, but advises interested parties to confirm them before relying on them in a purchase decision.
Copyright 2026 MRED. All rights reserved.
This IDX solution is (c) Diverse Solutions 2026.