|
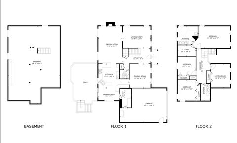
Welcome to this beautifully designed two-story home offering timeless style, generous living spaces, and exceptional functionality. A beautiful paver driveway and walkway create an inviting first impression, leading you through the custom built portico inside to a bright formal living room and an elegant formal dining room-perfect for entertaining. The heart of the home is the spacious kitchen, complete with a convenient butler's pantry and seamless flow into the warm, welcoming family room with gas fireplace. Spend bright mornings at the breakfast table just off the kitchen as well. Laundry is conveniently located between the kitchen and garage. Upstairs, you'll find well-appointed bedrooms and two beautifully remodeled bathrooms. An unfinished basement provides endless potential for future expansion-whether you envision a home gym, recreation area, workshop, or additional storage. At the back of the home, a large deck overlooks the yard and offers the ideal spot for relaxing, grilling, or gathering with friends (there is also storage under the deck!). The garage has extra storage space at the front and is coated with an epoxy coating. With its thoughtful layout and room to customize, this home is ready to be your perfect next chapter. Let your vision come to life!
| DAYS ON MARKET | 53 | LAST UPDATED | 1/8/2026 |
|---|---|---|---|
| TRACT | Bridlewood | YEAR BUILT | 1997 |
| COMMUNITY | Hoffman Estates | GARAGE SPACES | 2.0 |
| COUNTY | Cook | STATUS | Conditional |
| PROPERTY TYPE(S) | Single Family |
| School District | Barrington High School |
|---|---|
| Elementary School | Barbara B Rose Elementary School |
| Jr. High School | Barrington Middle School Prairie |
| High School | Barrington High School |
| ADDITIONAL DETAILS | |
| AIR | Ceiling Fan(s), Central Air |
|---|---|
| AIR CONDITIONING | Yes |
| APPLIANCES | Cooktop, Dishwasher, Disposal, Double Oven, Dryer, Gas Cooktop, Microwave, Oven, Refrigerator, Stainless Steel Appliance(s), Washer |
| AREA | Hoffman Estates |
| BASEMENT | Full, Sump Pump, Unfinished, Yes |
| CONSTRUCTION | Vinyl Siding |
| FIREPLACE | Yes |
| GARAGE | Attached Garage, Yes |
| HEAT | Natural Gas |
| INTERIOR | Entrance Foyer, Walk-In Closet(s) |
| LOT | 10019 sq ft |
| LOT DIMENSIONS | 86 x 114 |
| PARKING | Garage Door Opener, Attached, Garage, Driveway |
| SEWER | Public Sewer |
| STYLE | Colonial |
| SUBDIVISION | Bridlewood |
| TAXES | 9783.74 |
| WATER | Public |
MORTGAGE CALCULATOR
TOTAL MONTHLY PAYMENT
0
P
I
*Estimate only
| SATELLITE VIEW |
| / | |
We respect your online privacy and will never spam you. By submitting this form with your telephone number
you are consenting for Humderto
Garcia to contact you even if your name is on a Federal or State
"Do not call List".
Listed with Baird & Warner
The data relating to real estate for sale on this web site comes in part from the Broker ReciprocitySM Program of MRED. All real estate listings are marked with the Broker ReciprocitySM logo or the MRED Broker ReciprocitySM thumbnail logo (a little black house) and detailed information about them includes the name of the listing brokers.
The broker providing these data believes them to be correct, but advises interested parties to confirm them before relying on them in a purchase decision.
Copyright 2026 MRED. All rights reserved.

The broker providing these data believes them to be correct, but advises interested parties to confirm them before relying on them in a purchase decision.
Copyright 2026 MRED. All rights reserved.
This IDX solution is (c) Diverse Solutions 2026.