|
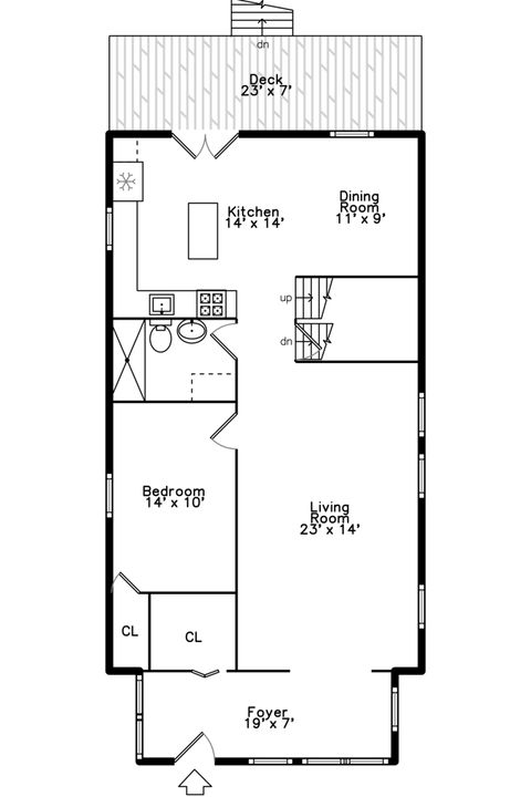
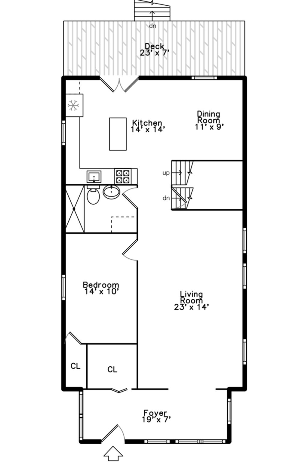
Situated on a coveted corner lot in Elmwood Park, this elegantly modernized home blends sophisticated design with effortless functionality across three beautifully finished levels. Rich hardwood floors, abundant natural light, and curated modern touches create a refined atmosphere from the moment you enter. The stunning, sun-drenched eat-in kitchen serves as the heart of the home, showcasing 42" cabinetry, granite countertops, a versatile rolling island, and seamless connectivity to the inviting sitting area and outdoor deck-perfect for both serene mornings and evenings and elevated entertaining. The main level also features a luxurious full bath and a well-appointed bedroom, perfect for guests, home office or keep as a designated bedroom. Upstairs, two stylish bedrooms with skylights are complemented by a dual-entry bath and a serene loft space, offering the perfect nook for reading, work, or relaxation. The expansive lower level provides a sophisticated extension of the home, complete with a generous rec room, an additional bedroom, a full bath, and a dedicated laundry room-thoughtfully designed for both convenience and versatility including a separate entrance. Step outside to your private, professionally landscaped oasis. The fully fenced yard and spacious porch offer a serene setting for outdoor dining, play, and unwinding-your own retreat in the heart of town. An oversized 2.5-car garage with parking pad enhances both convenience and practicality. Beautifully updated and well maintained, this home delivers refined living just moments from Metra, shopping, amazing restaurants, schools, and parks. A truly exceptional opportunity in one of Elmwood Park's most desirable locations.
| DAYS ON MARKET | 49 | LAST UPDATED | 1/28/2026 |
|---|---|---|---|
| YEAR BUILT | 0 | COMMUNITY | Elmwood Park |
| GARAGE SPACES | 2.5 | COUNTY | Cook |
| STATUS | Conditional | PROPERTY TYPE(S) | Single Family |
| PRICE HISTORY | |
| Prior to Jan 19, '26 | $570,000 |
|---|---|
| Jan 19, '26 - Today | $555,000 |
| ADDITIONAL DETAILS | |
| AIR | Ceiling Fan(s), Central Air |
|---|---|
| AIR CONDITIONING | Yes |
| APPLIANCES | Dishwasher, Disposal, Dryer, Humidifier, Microwave, Range, Refrigerator, Stainless Steel Appliance(s), Washer |
| AREA | Elmwood Park |
| BASEMENT | Exterior Entry, Full, Partially Finished, Sump Pump, Yes |
| CONSTRUCTION | Frame, Vinyl Siding |
| GARAGE | Yes |
| HEAT | Forced Air, Natural Gas |
| INTERIOR | Entrance Foyer, Granite Counters |
| LOT | 4251 sq ft |
| LOT DESCRIPTION | Corner Lot, Landscaped |
| LOT DIMENSIONS | 34X125 |
| PARKING | Concrete, Garage Door Opener, Detached, Driveway, Garage |
| SEWER | Public Sewer |
| TAXES | 10288.74 |
| WATER | Public |
MORTGAGE CALCULATOR
TOTAL MONTHLY PAYMENT
0
P
I
*Estimate only
| SATELLITE VIEW |
| / | |
We respect your online privacy and will never spam you. By submitting this form with your telephone number
you are consenting for Humderto
Garcia to contact you even if your name is on a Federal or State
"Do not call List".
Listed with Baird & Warner
The data relating to real estate for sale on this web site comes in part from the Broker ReciprocitySM Program of MRED. All real estate listings are marked with the Broker ReciprocitySM logo or the MRED Broker ReciprocitySM thumbnail logo (a little black house) and detailed information about them includes the name of the listing brokers.
The broker providing these data believes them to be correct, but advises interested parties to confirm them before relying on them in a purchase decision.
Copyright 2026 MRED. All rights reserved.

The broker providing these data believes them to be correct, but advises interested parties to confirm them before relying on them in a purchase decision.
Copyright 2026 MRED. All rights reserved.
This IDX solution is (c) Diverse Solutions 2026.