|
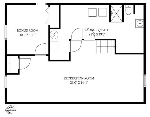
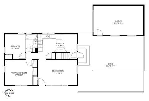
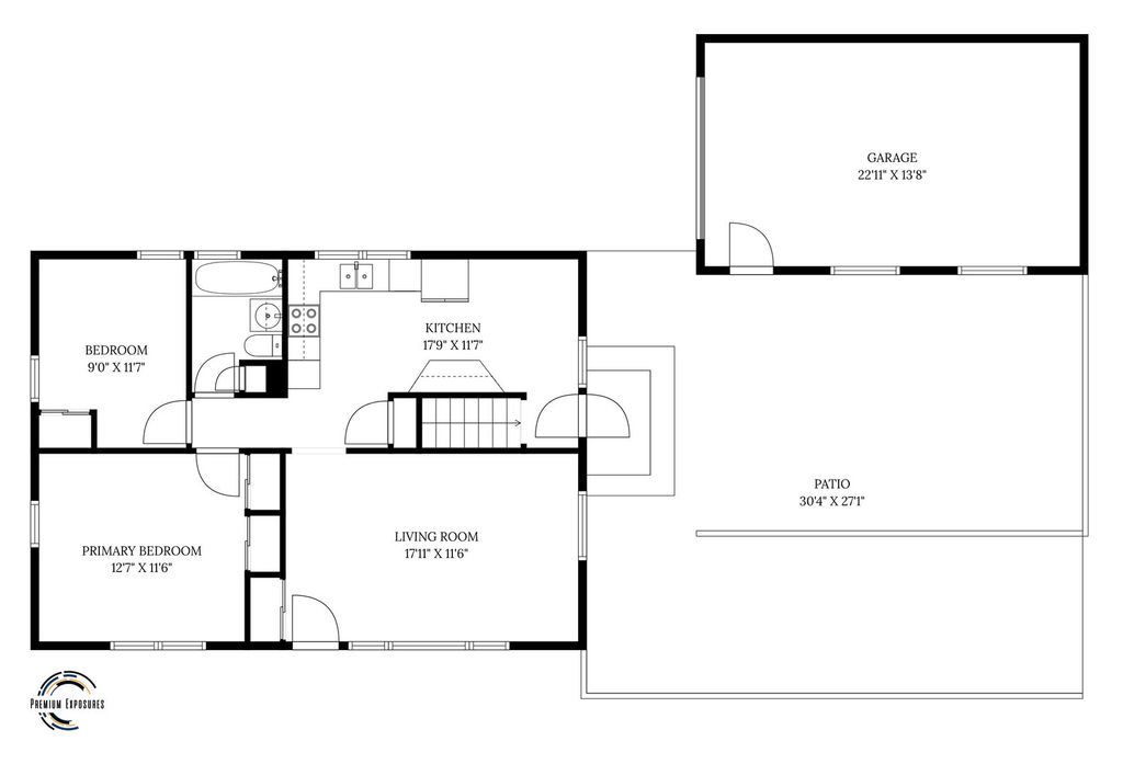
Charming brick ranch with updates throughout! Welcome to this well-maintained 3-bedroom, 2-bath brick ranch on a beautiful corner lot surrounded by mature trees in an established neighborhood. This home blends original charm with modern updates, offering easy living and move-in-ready comfort. Step inside to find original hardwood floors and a bright, welcoming layout. The kitchen was remodeled in the early 2000s and features a new dishwasher (installed in 2023). Major updates provide peace of mind with a new roof (2020), HVAC system (2017), water heater (2023), and replacement Pella windows. The finished basement adds valuable living space with a large family room, a third bedroom, and a full bath-perfect for guests, a home office, or a recreation area. Outside, enjoy a fenced yard filled with perennials, an oversized one-car garage, and a covered patio that opens to a spacious additional patio-ideal for outdoor entertaining and relaxing when the weather warms up. With nothing left to do but move in, this home offers timeless style and thoughtful updates. Don't miss this one!
| DAYS ON MARKET | 8 | LAST UPDATED | 12/22/2025 |
|---|---|---|---|
| YEAR BUILT | 1955 | COMMUNITY | Urbana |
| GARAGE SPACES | 1.0 | COUNTY | Champaign |
| STATUS | Conditional | PROPERTY TYPE(S) | Single Family |
| School District | Urbana High School |
|---|---|
| Elementary School | Wiley Elementary School |
| Jr. High School | Urbana Middle School |
| High School | Urbana High School |
| ADDITIONAL DETAILS | |
| AIR | Central Air |
|---|---|
| AIR CONDITIONING | Yes |
| APPLIANCES | Dryer, Microwave, Range, Refrigerator, Washer |
| AREA | Urbana |
| BASEMENT | Finished, Full, Yes |
| CONSTRUCTION | Brick |
| GARAGE | Yes |
| HEAT | Natural Gas |
| LOT | 0 |
| LOT DIMENSIONS | 65 X 120 |
| PARKING | Garage Door Opener, Off Site, Detached, Garage |
| SEWER | Public Sewer |
| STYLE | Ranch |
| TAXES | 4904 |
| WATER | Public |
MORTGAGE CALCULATOR
TOTAL MONTHLY PAYMENT
0
P
I
*Estimate only
| SATELLITE VIEW |
| / | |
We respect your online privacy and will never spam you. By submitting this form with your telephone number
you are consenting for Humderto
Garcia to contact you even if your name is on a Federal or State
"Do not call List".
Listed with Realty Select One
The data relating to real estate for sale on this web site comes in part from the Broker ReciprocitySM Program of MRED. All real estate listings are marked with the Broker ReciprocitySM logo or the MRED Broker ReciprocitySM thumbnail logo (a little black house) and detailed information about them includes the name of the listing brokers.
The broker providing these data believes them to be correct, but advises interested parties to confirm them before relying on them in a purchase decision.
Copyright 2025 MRED. All rights reserved.

The broker providing these data believes them to be correct, but advises interested parties to confirm them before relying on them in a purchase decision.
Copyright 2025 MRED. All rights reserved.
This IDX solution is (c) Diverse Solutions 2025.