|
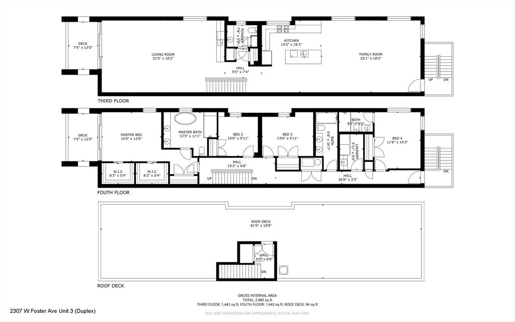
READY FOR OCCUPANCY! Welcome to this brand-new, three-unit boutique building in Andersonville! Step inside this incredible over 3,000 SF duplex-up Penthouse that truly lives like a single family home. With 4 spacious bedrooms, 3.5 luxurious bathrooms, and multiple private outdoor spaces, this home is designed for exceptional living and entertaining. The main level welcomes you with a massive living room and dining area, flowing seamlessly into a chef's dream kitchen featuring high-end Thermador appliances, a large island, custom cabinetry, quartz countertops and designer lighting. Just off the kitchen is a sun-drenched family room with large windows offering stunning natural light and sweeping city views. Upstairs, you'll find all four bedrooms conveniently located on the same level. The primary suite is a true retreat with its private deck, two walk-in closets, an additional linen closet, and a spa-inspired ensuite bathroom complete with a soaking tub, oversized walk-in shower, double vanity, and elegant porcelain tile. Two additional large bedrooms share a beautifully appointed bathroom with a double vanity and tub/ shower, while the fourth bedroom enjoys the privacy of its own en suite bathroom. Each bedroom offers generous space and captivating views of the city. Enjoy the convenience of a full laundry area on the bedroom level and unwind on your very private rooftop deck with breathtaking panoramic city views-perfect for entertaining or relaxing in peace. One dedicated parking spot is included with pre-wired EV. Located in desirable Bowmanville, you're just steps to Winnemac Park, Amundsen High School, and a short stroll to all the shopping, restaurants, and nightlife that Andersonville and Lincoln Square have to offer. Don't miss your chance to own this one-of-a-kind penthouse-schedule your private tour today!
| DAYS ON MARKET | 47 | LAST UPDATED | 12/29/2025 |
|---|---|---|---|
| YEAR BUILT | 2025 | COMMUNITY | CHI - Lincoln Square |
| COUNTY | Cook | STATUS | Conditional |
| PROPERTY TYPE(S) | Condo/Townhouse/Co-Op |
| School District | Amundsen High School |
|---|---|
| Elementary School | Chappell Elementary School |
| Jr. High School | Chappell Elementary School |
| High School | Amundsen High School |
| ADDITIONAL DETAILS | |
| AIR | Central Air |
|---|---|
| AIR CONDITIONING | Yes |
| APPLIANCES | Disposal, Dryer, Microwave, Range, Washer |
| AREA | CHI - Lincoln Square |
| BASEMENT | None |
| CONSTRUCTION | Brick |
| EXTERIOR | Balcony |
| HEAT | Natural Gas |
| LOT | 0 |
| LOT DIMENSIONS | 24 X 124 |
| SEWER | Public Sewer, Other |
| STORIES | 3 |
| WATER | Public, Other |
MORTGAGE CALCULATOR
TOTAL MONTHLY PAYMENT
0
P
I
*Estimate only
| SATELLITE VIEW |
| / | |
We respect your online privacy and will never spam you. By submitting this form with your telephone number
you are consenting for Humderto
Garcia to contact you even if your name is on a Federal or State
"Do not call List".
Listed with Compass
The data relating to real estate for sale on this web site comes in part from the Broker ReciprocitySM Program of MRED. All real estate listings are marked with the Broker ReciprocitySM logo or the MRED Broker ReciprocitySM thumbnail logo (a little black house) and detailed information about them includes the name of the listing brokers.
The broker providing these data believes them to be correct, but advises interested parties to confirm them before relying on them in a purchase decision.
Copyright 2026 MRED. All rights reserved.

The broker providing these data believes them to be correct, but advises interested parties to confirm them before relying on them in a purchase decision.
Copyright 2026 MRED. All rights reserved.
This IDX solution is (c) Diverse Solutions 2026.