|
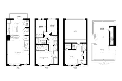
It's time to experience life in Bridgeport! Welcome home to this award winning home built by Lexington Homes. This well built home will greet you with a separate foyer that opens up into a family room with new heated flooring and a large storage room adjacent to the 2 car attached garage fully equipped with a garage door opener, an EV charger and showroom finished floor. The gourmet kitchen has GE SS appliances including an exterior venting hood fan, and an oversized island with stool seating. Upgraded 42" cabinetry with crown moulding, soft close drawers, stunning backsplash, and granite countertops will have you cooking up a storm! Custom lighting throughout the home. Solid hardwood floors adorn the Kitchen, living room and dining room. The primary suite and living room include beautiful acoustic paneling to add a modern touch. Three nice size bedrooms including a king size primary room with an en suite spa like bathroom! Enjoy the three private outdoor spaces such as the maintained front fenced in yard, a balcony right off the kitchen and an expanded roof deck with custom lighting and magnificent city views. this home also includes a whole house filtration system!! Lexington Square 4 is located right across the street from the delightful Dolce Arte and walkable to the newly opened Ramova Theatre, Bad Owl, Jackalope's, Southside Coffee, Greek Prime, Antique taco and Vijosa Cafe. If you have not had the chance to visit this part of the city you are missing out. 1 mile to the redline and Sox Park, 20 minutes to Northwestern, Rush and University of Chicago hospitals. a short bike ride to the Lake and the 31st Street pier. Enjoy all of the art surrounding the community that you will enjoy in many local businesses as well as Zhou Brothers and the Bridgeport Art center for some local artisans. Truly one of the hottest locations in the city today!!
| DAYS ON MARKET | 11 | LAST UPDATED | 1/24/2026 |
|---|---|---|---|
| YEAR BUILT | 2017 | COMMUNITY | CHI - Bridgeport |
| GARAGE SPACES | 2.0 | COUNTY | Cook |
| STATUS | Conditional | PROPERTY TYPE(S) | Condo/Townhouse/Co-Op |
| School District | Tilden Career Communty Academy S |
|---|---|
| Elementary School | Minoso |
| High School | Tilden Career Communty Academy S |
| ADDITIONAL DETAILS | |
| AIR | Central Air |
|---|---|
| AIR CONDITIONING | Yes |
| AMENITIES | Insurance, Snow Removal, Water |
| APPLIANCES | Dishwasher, Disposal, Dryer, Microwave, Range, Refrigerator, Stainless Steel Appliance(s), Washer |
| AREA | CHI - Bridgeport |
| BASEMENT | None |
| CONSTRUCTION | Brick, Vinyl Siding |
| EXTERIOR | Balcony |
| GARAGE | Attached Garage, Yes |
| HEAT | Forced Air, Natural Gas, Radiant Floor |
| HOA DUES | 312 |
| INTERIOR | Built-in Features, Storage, Walk-In Closet(s) |
| LOT | 0 |
| LOT DIMENSIONS | COMMON |
| PARKING | Garage Door Opener, Attached, Garage |
| SEWER | Public Sewer |
| STORIES | 3 |
| TAXES | 9494.59 |
MORTGAGE CALCULATOR
TOTAL MONTHLY PAYMENT
0
P
I
*Estimate only
| SATELLITE VIEW |
| / | |
We respect your online privacy and will never spam you. By submitting this form with your telephone number
you are consenting for Humderto
Garcia to contact you even if your name is on a Federal or State
"Do not call List".
Listed with @properties Christie's International Real Estate
The data relating to real estate for sale on this web site comes in part from the Broker ReciprocitySM Program of MRED. All real estate listings are marked with the Broker ReciprocitySM logo or the MRED Broker ReciprocitySM thumbnail logo (a little black house) and detailed information about them includes the name of the listing brokers.
The broker providing these data believes them to be correct, but advises interested parties to confirm them before relying on them in a purchase decision.
Copyright 2026 MRED. All rights reserved.

The broker providing these data believes them to be correct, but advises interested parties to confirm them before relying on them in a purchase decision.
Copyright 2026 MRED. All rights reserved.
This IDX solution is (c) Diverse Solutions 2026.