|
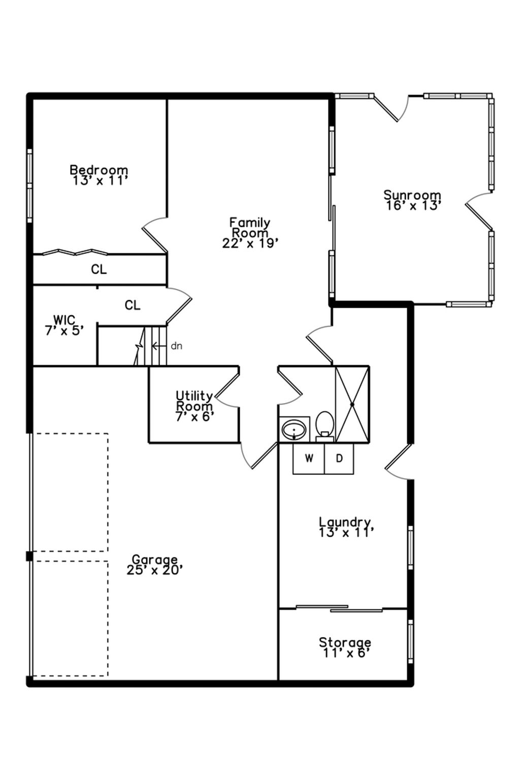
Welcome to a beautifully updated High Point home that's completely move-in ready. Offering over 3k sq ft of comfortable living space, this property combines modern style, generous room sizes, and a backyard built for entertaining. The open, light-filled main level features a spacious kitchen with stainless steel appliances, shaker-style cabinets, and abundant storage. A sliding door leads to the deck overlooking the fenced backyard and in-ground concrete pool - perfect for summer gatherings. The expansive primary suite offers a private retreat with a walk-in closet and full en-suite bath, while the additional bedrooms are bright and well-sized for family or guests. The finished lower level adds even more flexibility, including a large family room, an additional bedroom, a laundry area (expanded into a salon), and a refinished sunroom that opens to the backyard - ideal for year-round enjoyment. Situated in the desirable High Point neighborhood, this home offers quick access to expressways, top-rated schools, and all the conveniences of Hoffman Estates. With thoughtful updates throughout, a private pool, and ample living space, there's truly nothing to do but move in and enjoy. Welcome home!
| DAYS ON MARKET | 43 | LAST UPDATED | 12/27/2025 |
|---|---|---|---|
| TRACT | High Point | YEAR BUILT | 1971 |
| COMMUNITY | Hoffman Estates | GARAGE SPACES | 2.0 |
| COUNTY | Cook | STATUS | Conditional |
| PROPERTY TYPE(S) | Single Family |
| School District | Hoffman Estates High School |
|---|---|
| Elementary School | Neil Armstrong Elementary School |
| Jr. High School | Eisenhower Junior High School |
| High School | Hoffman Estates High School |
| ADDITIONAL DETAILS | |
| AIR | Ceiling Fan(s), Central Air |
|---|---|
| AIR CONDITIONING | Yes |
| APPLIANCES | Dishwasher, Disposal, Dryer, Microwave, Range, Stainless Steel Appliance(s), Washer |
| AREA | Hoffman Estates |
| BASEMENT | Finished, Full, Walk-Out Access, Yes |
| CONSTRUCTION | Brick, Cedar |
| EXTERIOR | Balcony |
| GARAGE | Attached Garage, Yes |
| HEAT | Forced Air, Natural Gas |
| INTERIOR | Dry Bar |
| LOT | 0.2518 acre(s) |
| LOT DESCRIPTION | Cul-de-sac |
| LOT DIMENSIONS | 77 X 99 X 130 X 155 |
| PARKING | Concrete, Garage Door Opener, Attached, Garage |
| POOL DESCRIPTION | In Ground |
| SEWER | Public Sewer |
| SUBDIVISION | High Point |
| TAXES | 6190.68 |
| UTILITIES | Cable Available |
MORTGAGE CALCULATOR
TOTAL MONTHLY PAYMENT
0
P
I
*Estimate only
| SATELLITE VIEW |
| / | |
We respect your online privacy and will never spam you. By submitting this form with your telephone number
you are consenting for Humderto
Garcia to contact you even if your name is on a Federal or State
"Do not call List".
Listed with Instavalue Realty Inc
The data relating to real estate for sale on this web site comes in part from the Broker ReciprocitySM Program of MRED. All real estate listings are marked with the Broker ReciprocitySM logo or the MRED Broker ReciprocitySM thumbnail logo (a little black house) and detailed information about them includes the name of the listing brokers.
The broker providing these data believes them to be correct, but advises interested parties to confirm them before relying on them in a purchase decision.
Copyright 2026 MRED. All rights reserved.

The broker providing these data believes them to be correct, but advises interested parties to confirm them before relying on them in a purchase decision.
Copyright 2026 MRED. All rights reserved.
This IDX solution is (c) Diverse Solutions 2026.