|
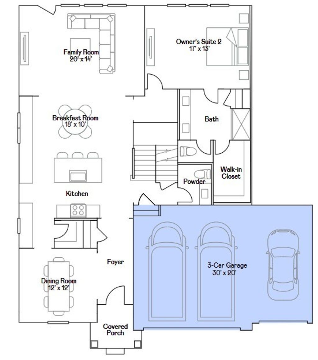
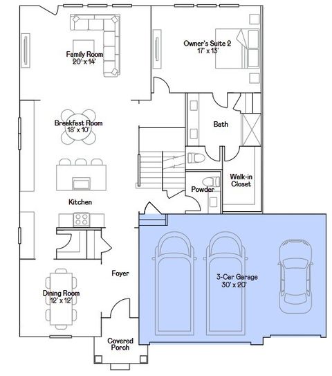
SPECIAL FINANCING OFFERS AVAILABLE! READY FOR MARCH DELIVERY! Homesite #0040 Step into the Sequoia plan-a thoughtfully designed 4-bedroom, 3.5-bath home that offers exceptional comfort, flexibility, and modern convenience for today's families. Just off the foyer, a formal dining room sets the stage for memorable gatherings or everyday meals with ease and elegance. Beyond the entry, the heart of the home unfolds in a spacious open-concept layout where the kitchen, breakfast room, and family room connect seamlessly-perfect for casual living and entertaining alike. The kitchen features a large center island, sleek quartz countertops, generous cabinetry, and stainless steel appliances that bring both function and contemporary style to the space. Throughout the first floor, luxury vinyl plank flooring and energy-efficient LED lighting enhance the home's warm, modern feel. Upstairs, the primary owner's suite offers a peaceful retreat with a spacious walk-in closet and a spa-inspired en-suite bathroom. Two additional bedrooms and a shared full bathroom provide ample space for family or guests. A convenient second-floor laundry room adds everyday practicality right where it's needed most. The second owner's suite is located on the first floor, offering a private and comfortable space for guests or extended stays. This suite features its own walk-in closet and private en-suite bath, making it a perfect main-level retreat. Additional highlights include a first-floor powder room and a three-car garage. Designed to adapt to your lifestyle, the Sequoia plan delivers smart, spacious living with comfort and style at every turn. Exterior will be Slate color siding with Weather Ledge - Ashen color stone. (pic for reference ONLY) *Photos are not this actual home* Experience the best of suburban living at Keller Farm, a thoughtfully planned community coming soon to Plainfield, Illinois. This exciting new neighborhood will feature exceptional onsite amenities, including a nearly 30-acre park, an extensive trail system, and almost five acres of additional parkland-perfect for outdoor adventures, family fun, and everyday relaxation. Located in the thriving city of Plainfield, Keller Farm offers residents the perfect blend of small-town charm and modern convenience. Downtown Plainfield is a vibrant hub of activity, with boutique shops, local restaurants, big box retailers, and major supermarkets all close at hand. Whether you're running errands or enjoying a night out, everything you need is just minutes away. Plainfield is also known for its excellent recreation centers, beautiful parks, and year-round community events. From the festive St. Patrick's Day parade to seasonal artisan markets and the lively Plainfield Fest each summer, there's always something happening to bring neighbors together. At Keller Farm, you'll find more than just a home-you'll find a lifestyle filled with connection, convenience, and community.
| DAYS ON MARKET | 86 | LAST UPDATED | 3/13/2026 |
|---|---|---|---|
| TRACT | Keller Farm | YEAR BUILT | 2025 |
| COMMUNITY | Plainfield | GARAGE SPACES | 3.0 |
| COUNTY | Will | STATUS | Active |
| PROPERTY TYPE(S) | Single Family |
| School District | Plainfield North High School |
|---|---|
| Elementary School | Lincoln Elementary School |
| Jr. High School | Ira Jones Middle School |
| High School | Plainfield North High School |
| PRICE HISTORY | |
| Prior to Jan 2, '26 | $664,480 |
|---|---|
| Jan 2, '26 - Jan 27, '26 | $669,480 |
| Jan 27, '26 - Feb 5, '26 | $659,480 |
| Feb 5, '26 - Mar 13, '26 | $649,480 |
| Mar 13, '26 - Today | $639,900 |
| ADDITIONAL DETAILS | |
| AIR | Central Air |
|---|---|
| AIR CONDITIONING | Yes |
| APPLIANCES | Dishwasher, Disposal, Microwave, Range, Stainless Steel Appliance(s) |
| AREA | Plainfield |
| BASEMENT | Full, Unfinished, Yes |
| CONSTRUCTION | Stone, Vinyl Siding |
| GARAGE | Attached Garage, Yes |
| HEAT | Forced Air, Natural Gas |
| HOA DUES | 480 |
| INTERIOR | Entrance Foyer |
| LOT | 0 |
| LOT DIMENSIONS | 12192 |
| PARKING | Asphalt, Garage Door Opener, Attached, Garage |
| SEWER | Public Sewer |
| SUBDIVISION | Keller Farm |
| WATER | Public |
MORTGAGE CALCULATOR
TOTAL MONTHLY PAYMENT
0
P
I
*Estimate only
| SATELLITE VIEW |
| / | |
We respect your online privacy and will never spam you. By submitting this form with your telephone number
you are consenting for Humderto
Garcia to contact you even if your name is on a Federal or State
"Do not call List".
Listed with HomeSmart Connect LLC
The data relating to real estate for sale on this web site comes in part from the Broker ReciprocitySM Program of MRED. All real estate listings are marked with the Broker ReciprocitySM logo or the MRED Broker ReciprocitySM thumbnail logo (a little black house) and detailed information about them includes the name of the listing brokers.
The broker providing these data believes them to be correct, but advises interested parties to confirm them before relying on them in a purchase decision.
Copyright 2026 MRED. All rights reserved.

The broker providing these data believes them to be correct, but advises interested parties to confirm them before relying on them in a purchase decision.
Copyright 2026 MRED. All rights reserved.
This IDX solution is (c) Diverse Solutions 2026.