|
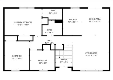
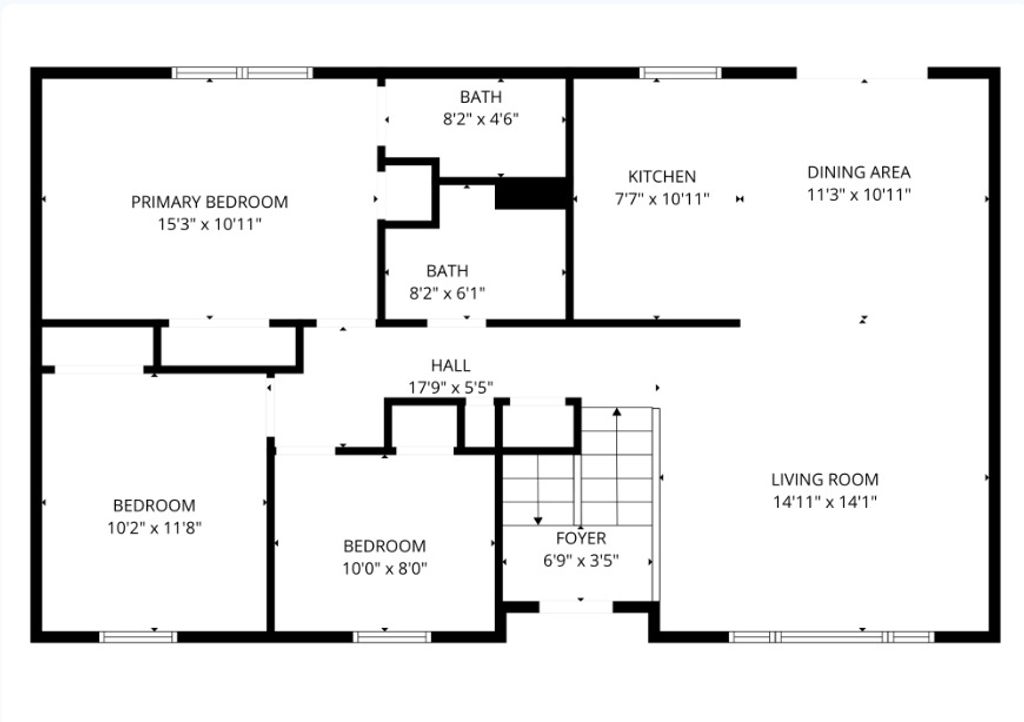
This raised ranch home in Gurnee offers a functional layout, strong utility features, and an excellent opportunity for buyers looking to update and add value. The main level includes a living room, dedicated dining area, and adjacent kitchen, providing a practical floor plan with clearly defined living and sleeping spaces. Three bedrooms offer flexibility for a variety of living needs. The lower level features a look-out basement with natural light and full-height ceilings. While unfinished, it offers substantial additional space for storage, workshop use, or future finishing potential. A standout feature of the property is the approximately 900 sq ft heated garage, a rare and highly versatile space. The garage includes a bathroom area that is studded, plumbed, and wired, ready for future completion. This space is ideal for hobbyists, contractors, or buyers seeking expanded workspace beyond a traditional garage. Conveniently located near shopping, dining, parks, and major roadways, this home offers easy access to everyday amenities. This is a opportunity for buyers seeking a home with solid fundamentals, unique utility features, and the ability to build equity through updates and improvements.
| DAYS ON MARKET | 21 | LAST UPDATED | 1/16/2026 |
|---|---|---|---|
| YEAR BUILT | 1984 | COMMUNITY | Gurnee |
| GARAGE SPACES | 3.0 | COUNTY | Lake |
| STATUS | Conditional | PROPERTY TYPE(S) | Single Family |
| School District | Warren Township High School |
|---|---|
| Elementary School | Spaulding School |
| Jr. High School | Viking Middle School |
| High School | Warren Township High School |
| ADDITIONAL DETAILS | |
| AIR | Central Air |
|---|---|
| AIR CONDITIONING | Yes |
| AREA | Gurnee |
| BASEMENT | Full, Unfinished, Yes |
| CONSTRUCTION | Wood Siding |
| GARAGE | Yes |
| HEAT | Natural Gas |
| LOT | 0 |
| LOT DIMENSIONS | 16200 |
| PARKING | Heated Garage, Detached, Garage |
| SEWER | Public Sewer |
| TAXES | 4094 |
| WATER | Public |
MORTGAGE CALCULATOR
TOTAL MONTHLY PAYMENT
0
P
I
*Estimate only
| SATELLITE VIEW |
| / | |
We respect your online privacy and will never spam you. By submitting this form with your telephone number
you are consenting for Humderto
Garcia to contact you even if your name is on a Federal or State
"Do not call List".
Listed with Realty ONE Group Karmma
The data relating to real estate for sale on this web site comes in part from the Broker ReciprocitySM Program of MRED. All real estate listings are marked with the Broker ReciprocitySM logo or the MRED Broker ReciprocitySM thumbnail logo (a little black house) and detailed information about them includes the name of the listing brokers.
The broker providing these data believes them to be correct, but advises interested parties to confirm them before relying on them in a purchase decision.
Copyright 2026 MRED. All rights reserved.

The broker providing these data believes them to be correct, but advises interested parties to confirm them before relying on them in a purchase decision.
Copyright 2026 MRED. All rights reserved.
This IDX solution is (c) Diverse Solutions 2026.