|
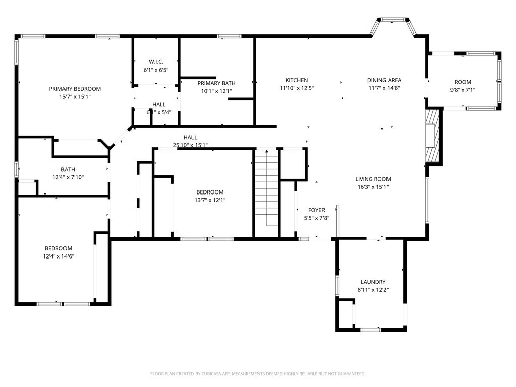
Set on a generous .67-acre corner lot in a highly desirable location, this inviting ranch home is pure quality. It offers space, flexibility, comfort and privacy. The main level features an open floor plan with cathedral ceilings, skylights and hardwood floors. The living room boasts a cozy gas stone fireplace creating a warm and welcoming setting. The large kitchen is designed to impress with a large working island and plenty of eating space. With a spacious master suite and two additional bedrooms on the main level plus two full baths you have plenty of space for all your needs. Downstairs, the finished basement expands your living options with a generous family room, complete with a wet bar and plenty of space for gatherings, movie nights, or a comfortable setup for grandparents / grandkids or extended family. The lower level also includes an additional bedroom and full bathroom, along with lots of storage to keep everything organized.The screened-in porch-perfect for morning coffee, outdoor dining, or relaxing while overlooking the spacious yard. With four bedrooms total (three on the main level, one in the basement) and three full bathrooms, this home offers the ideal blend of function and flexibility. Roof, gutters and vinyl siding 2025. Water Heater 2022. Furnace and humidifier 2021, Freshly painted in 2026. AC is original.
| DAYS ON MARKET | 18 | LAST UPDATED | 1/21/2026 |
|---|---|---|---|
| TRACT | Nottingham Woods | YEAR BUILT | 2002 |
| COMMUNITY | Elburn | GARAGE SPACES | 2.0 |
| COUNTY | Kane | STATUS | Conditional |
| PROPERTY TYPE(S) | Single Family |
| School District | Kaneland High School |
|---|---|
| Elementary School | Blackberry Creek Elementary Scho |
| Jr. High School | Harter Middle School |
| High School | Kaneland High School |
| ADDITIONAL DETAILS | |
| AIR | Central Air |
|---|---|
| AIR CONDITIONING | Yes |
| APPLIANCES | Dishwasher, Dryer, Microwave, Oven, Range, Range Hood, Refrigerator, Washer |
| AREA | Elburn |
| BASEMENT | Finished, Full, Storage Space, Yes |
| CONSTRUCTION | Vinyl Siding |
| EXTERIOR | Fire Pit |
| FIREPLACE | Yes |
| GARAGE | Attached Garage, Yes |
| HEAT | Natural Gas |
| INTERIOR | Cathedral Ceiling(s), Entrance Foyer, Walk-In Closet(s) |
| LOT | 0.67 acre(s) |
| LOT DESCRIPTION | Corner Lot |
| LOT DIMENSIONS | 125x195x102x219 |
| PARKING | Asphalt, Garage Door Opener, Attached, Garage |
| SEWER | Septic Tank |
| STYLE | Ranch |
| SUBDIVISION | Nottingham Woods |
| TAXES | 9559 |
| WATER | Well |
MORTGAGE CALCULATOR
TOTAL MONTHLY PAYMENT
0
P
I
*Estimate only
| SATELLITE VIEW |
| / | |
We respect your online privacy and will never spam you. By submitting this form with your telephone number
you are consenting for Humderto
Garcia to contact you even if your name is on a Federal or State
"Do not call List".
Listed with Keller Williams Inspire
The data relating to real estate for sale on this web site comes in part from the Broker ReciprocitySM Program of MRED. All real estate listings are marked with the Broker ReciprocitySM logo or the MRED Broker ReciprocitySM thumbnail logo (a little black house) and detailed information about them includes the name of the listing brokers.
The broker providing these data believes them to be correct, but advises interested parties to confirm them before relying on them in a purchase decision.
Copyright 2026 MRED. All rights reserved.

The broker providing these data believes them to be correct, but advises interested parties to confirm them before relying on them in a purchase decision.
Copyright 2026 MRED. All rights reserved.
This IDX solution is (c) Diverse Solutions 2026.