|
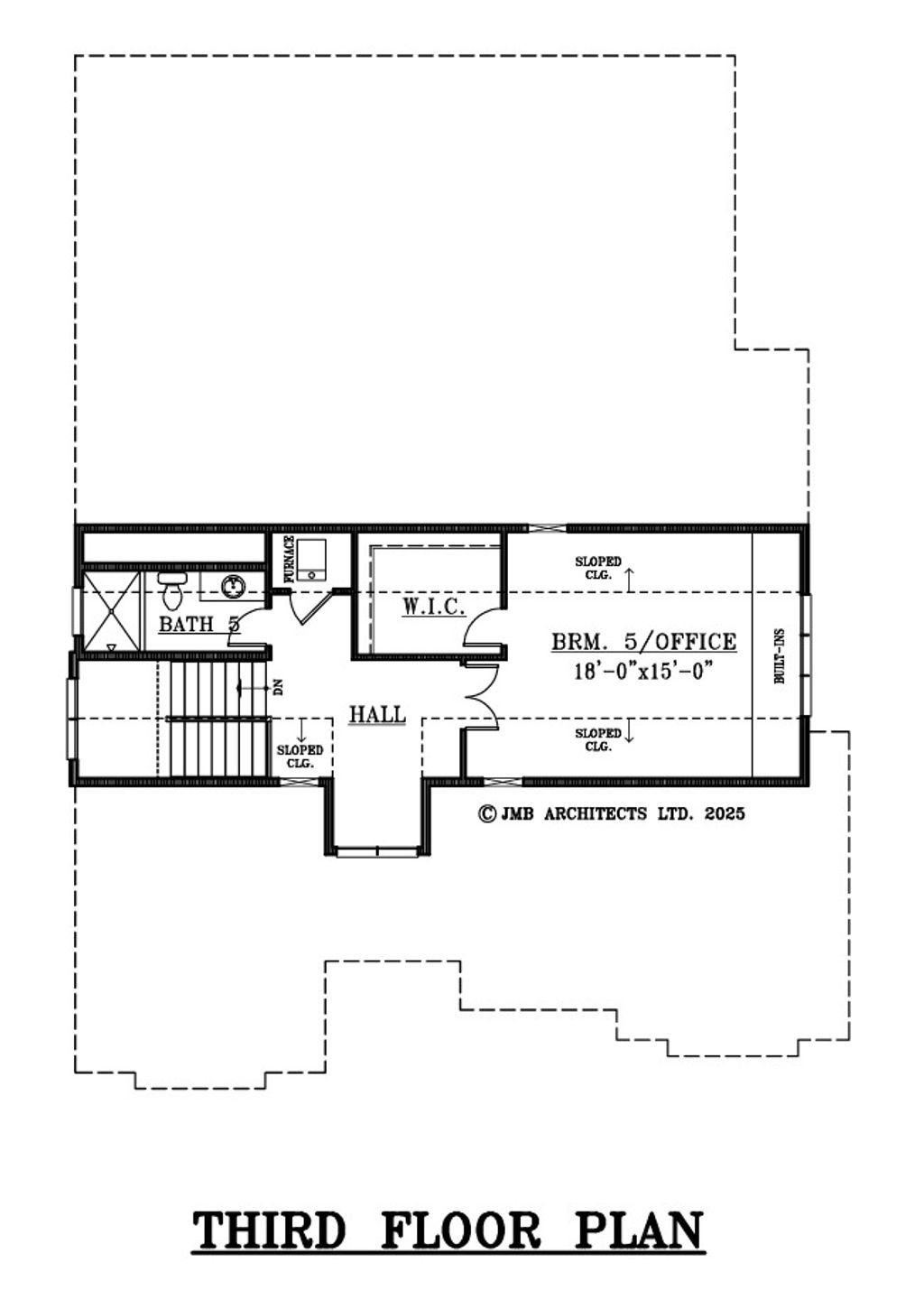
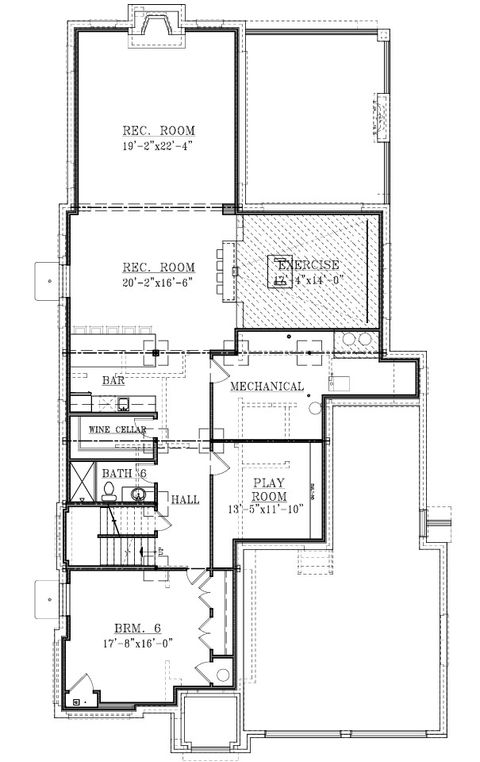
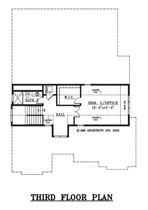
Welcome to South Street-one of Elmhurst's most prestigious and sought-after locations. This exceptional new construction sits on an expansive 75-ft wide lot (13,408 sq ft) and offers a 3-car tandem garage with luxury finishes throughout. Designed with today's lifestyle in mind, the home features 10-ft ceilings, a dramatic two-story family room, and an open, light-filled layout ideal for both everyday living and entertaining. The main level includes a versatile flex room, formal dining area, custom mudroom, and a chef's kitchen with scullery, pantry, oversized island, and high-end appliances. The family room showcases a fireplace and opens to a covered 20x17 porch (future screened option). The second floor offers three bedrooms plus a stunning primary suite, each with private or en-suite baths, while the third floor adds a private bedroom or office with a full bath and closet, perfect for guests or work-from-home needs. A fully finished basement features a rec room with fireplace, game room with ceiling height ideal for a future golf simulator, exercise room, additional bedroom, full bar, wine display, and full bath. Now in the early stages-a rare opportunity to customize finishes and meet directly with the builder. Located near the Prairie Path and within top-rated Edison Elementary, Sandburg Middle, and York High School districts.
| DAYS ON MARKET | 106 | LAST UPDATED | 1/3/2026 |
|---|---|---|---|
| YEAR BUILT | 2026 | COMMUNITY | Elmhurst |
| GARAGE SPACES | 3.0 | COUNTY | DuPage |
| STATUS | Active | PROPERTY TYPE(S) | Single Family |
| ADDITIONAL DETAILS | |
| AIR | Central Air, Zoned |
|---|---|
| AIR CONDITIONING | Yes |
| AREA | Elmhurst |
| BASEMENT | Bath/Stubbed, Finished, Full, Yes |
| CONSTRUCTION | Brick, Stone |
| FIREPLACE | Yes |
| GARAGE | Attached Garage, Yes |
| HEAT | Natural Gas, Zoned |
| LOT | 0 |
| LOT DIMENSIONS | 13408 |
| PARKING | Attached, Garage |
| SEWER | Public Sewer |
| TAXES | 13961 |
| WATER | Public |
MORTGAGE CALCULATOR
TOTAL MONTHLY PAYMENT
0
P
I
*Estimate only
| SATELLITE VIEW |
| / | |
We respect your online privacy and will never spam you. By submitting this form with your telephone number
you are consenting for Humderto
Garcia to contact you even if your name is on a Federal or State
"Do not call List".
Listed with @properties Christie's International Real Estate
The data relating to real estate for sale on this web site comes in part from the Broker ReciprocitySM Program of MRED. All real estate listings are marked with the Broker ReciprocitySM logo or the MRED Broker ReciprocitySM thumbnail logo (a little black house) and detailed information about them includes the name of the listing brokers.
The broker providing these data believes them to be correct, but advises interested parties to confirm them before relying on them in a purchase decision.
Copyright 2026 MRED. All rights reserved.

The broker providing these data believes them to be correct, but advises interested parties to confirm them before relying on them in a purchase decision.
Copyright 2026 MRED. All rights reserved.
This IDX solution is (c) Diverse Solutions 2026.