|
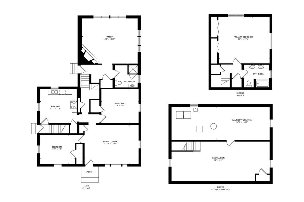
*** BE AWARE OF SCAM, THIS PROPERTY IS ABSOLUTELLY NOT FOR RENT *** Welcome to 221 Heine Avenue, Elgin, IL 60123 - a spacious multi-level home located in a well-established residential neighborhood in West Elgin. Featuring 3 bedrooms, 2 full bathrooms, a large family room with a fireplace, a partially finished basement, and a detached 1-car garage, this home is the perfect canvas for a buyer with vision. Whether you're a handyman, contractor, or someone looking to personalize a home through a renovation loan, this property offers endless potential. As you approach the home, you're greeted by a classic mid-century exterior with timeless curb appeal, mature trees, and a wide concrete driveway leading to the detached garage. The oversized yard is a standout feature - offering plenty of room for entertaining, gardening, pets, or simply enjoying the outdoors. There's space for a patio, fire pit, or even an expansion, making this backyard a rare find in this price range. Step inside and you'll find a functional layout across multiple levels. The main level features a bright living area, filled with natural light from large windows. The kitchen and dining area offer plenty of square footage for reimagining your dream culinary space - whether you want to open it up, modernize the layout, or maintain a classic feel. Upstairs, there are three well-sized bedrooms and a full bathroom with potential for updating. All bedrooms feature ample closet space and easy access to the shared hallway bath. The lower level boasts a large, inviting family room, anchored by a cozy wood-burning fireplace, perfect for gathering with family or relaxing on cool evenings. There is also a second full bathroom and additional finished space in the basement, which could easily function as a home office, guest area, game room, or fitness space. The detached 1-car garage offers secure parking and additional storage, while the driveway can accommodate multiple vehicles. The home sits on a wide residential street with sidewalks, mature landscaping, and a sense of pride in ownership throughout the block. Located in the heart of Elgin's west side, this property offers access to a wide range of neighborhood amenities. You'll find nearby parks such as Wing Park, featuring trails, tennis courts, a golf course, and a public pool - just minutes away. For shopping and daily conveniences, you're close to Meijer, Jewel-Osco, and numerous local shops and restaurants along Route 31 and Larkin Ave. Commuters will love the proximity to the Elgin Metra station, which provides a direct route to downtown Chicago via the Milwaukee District West line. You're also just minutes from I-90 for fast access to the northwest suburbs, O'Hare Airport, and the city. The home is located within School District U-46, offering access to local elementary, middle, and high schools, and close to institutions like Judson University. This neighborhood blends quiet residential living with convenient access to urban amenities, making it a great choice for families, professionals, or investors looking for a solid property with room to grow. With strong bones, a great yard, and a versatile layout, 221 Heine Ave is a prime candidate for a renovation loan or creative remodel. Whether you're an experienced rehabber or a buyer ready to build equity with personal touches, this home offers value, space, and location - all at an affordable price. This is a true "diamond in the rough" waiting for the right owner to restore and reimagine it. Bring your ideas, bring your plans, and make this house your next success story. Schedule your private showing today and explore the full potential of 221 Heine Avenue in Elgin!
| DAYS ON MARKET | 31 | LAST UPDATED | 1/3/2026 |
|---|---|---|---|
| YEAR BUILT | 1960 | COMMUNITY | Elgin |
| GARAGE SPACES | 2.0 | COUNTY | Kane |
| STATUS | Active | PROPERTY TYPE(S) | Single Family |
| School District | Larkin High School |
|---|---|
| Elementary School | Creekside Elementary School |
| Jr. High School | Kimball Middle School |
| High School | Larkin High School |
| ADDITIONAL DETAILS | |
| AIR | Central Air |
|---|---|
| AIR CONDITIONING | Yes |
| APPLIANCES | Dishwasher, Dryer, Range, Range Hood, Refrigerator, Washer |
| AREA | Elgin |
| BASEMENT | Partial, Partially Finished, Yes |
| CONSTRUCTION | Vinyl Siding |
| FIREPLACE | Yes |
| GARAGE | Yes |
| HEAT | Natural Gas |
| LOT | 6970 sq ft |
| LOT DIMENSIONS | 142 x 50 |
| PARKING | Concrete, Garage Door Opener, Detached, Driveway, Garage |
| SEWER | Public Sewer |
| TAXES | 5431 |
| WATER | Public |
MORTGAGE CALCULATOR
TOTAL MONTHLY PAYMENT
0
P
I
*Estimate only
| SATELLITE VIEW |
| / | |
We respect your online privacy and will never spam you. By submitting this form with your telephone number
you are consenting for Humderto
Garcia to contact you even if your name is on a Federal or State
"Do not call List".
Listed with eXp Realty
The data relating to real estate for sale on this web site comes in part from the Broker ReciprocitySM Program of MRED. All real estate listings are marked with the Broker ReciprocitySM logo or the MRED Broker ReciprocitySM thumbnail logo (a little black house) and detailed information about them includes the name of the listing brokers.
The broker providing these data believes them to be correct, but advises interested parties to confirm them before relying on them in a purchase decision.
Copyright 2026 MRED. All rights reserved.

The broker providing these data believes them to be correct, but advises interested parties to confirm them before relying on them in a purchase decision.
Copyright 2026 MRED. All rights reserved.
This IDX solution is (c) Diverse Solutions 2026.