|
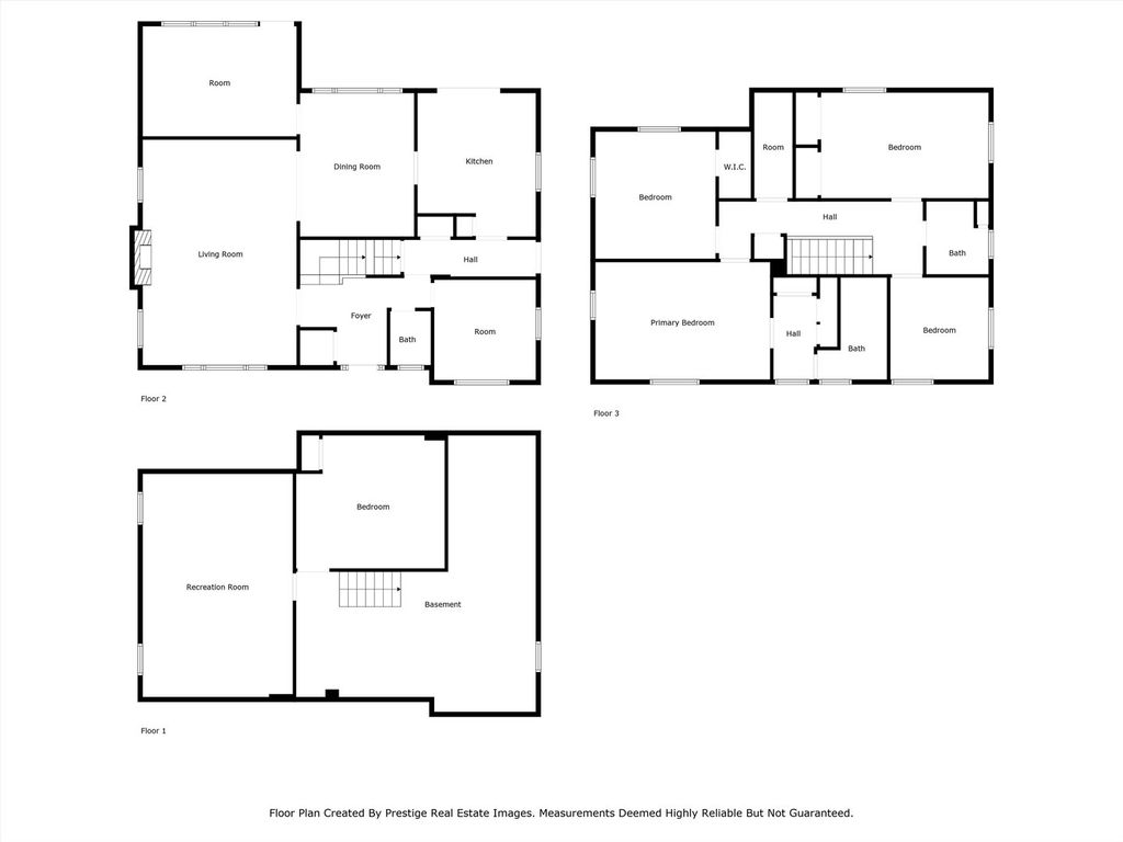
Welcome to this well-cared-for two-story Colonial located in Chicago Heights, offering timeless character and generous living space throughout. The home has passed city inspection and is ready for its next owner. The main level welcomes you with a charming entryway, spacious living room, formal dining room perfect for hosting, a functional kitchen filled with natural light, a cozy family room, and a dedicated office ideal for today's work-from-home needs. The second level features four comfortable bedrooms with ample space and storage. The finished basement provides a large recreation area, perfect for entertaining, hobbies, or additional living flexibility. Step outside to enjoy the oversized backyard-ideal for gatherings, relaxation, or outdoor fun. Property is being sold as-is. A wonderful opportunity to own a classic home with room to grow-schedule your showing today!
| DAYS ON MARKET | 73 | LAST UPDATED | 2/21/2026 |
|---|---|---|---|
| YEAR BUILT | 1950 | COMMUNITY | Chicago Heights |
| COUNTY | Cook | STATUS | Active |
| PROPERTY TYPE(S) | Single Family |
| ADDITIONAL DETAILS | |
| AIR | Central Air |
|---|---|
| AIR CONDITIONING | Yes |
| AREA | Chicago Heights |
| BASEMENT | Finished, Full, Yes |
| CONSTRUCTION | Aluminum Siding, Brick, Steel Siding, Vinyl Siding |
| FIREPLACE | Yes |
| HEAT | Forced Air, Natural Gas |
| INTERIOR | Entrance Foyer |
| LOT | 0 |
| LOT DIMENSIONS | 76 X 176 |
| PARKING | Asphalt |
| SEWER | Public Sewer |
| STYLE | Colonial |
| TAXES | 9822.15 |
MORTGAGE CALCULATOR
TOTAL MONTHLY PAYMENT
0
P
I
*Estimate only
| SATELLITE VIEW |
| / | |
We respect your online privacy and will never spam you. By submitting this form with your telephone number
you are consenting for Humderto
Garcia to contact you even if your name is on a Federal or State
"Do not call List".
Listed with RE/MAX Mi Casa
The data relating to real estate for sale on this web site comes in part from the Broker ReciprocitySM Program of MRED. All real estate listings are marked with the Broker ReciprocitySM logo or the MRED Broker ReciprocitySM thumbnail logo (a little black house) and detailed information about them includes the name of the listing brokers.
The broker providing these data believes them to be correct, but advises interested parties to confirm them before relying on them in a purchase decision.
Copyright 2026 MRED. All rights reserved.

The broker providing these data believes them to be correct, but advises interested parties to confirm them before relying on them in a purchase decision.
Copyright 2026 MRED. All rights reserved.
This IDX solution is (c) Diverse Solutions 2026.