|
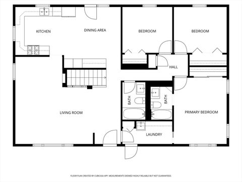
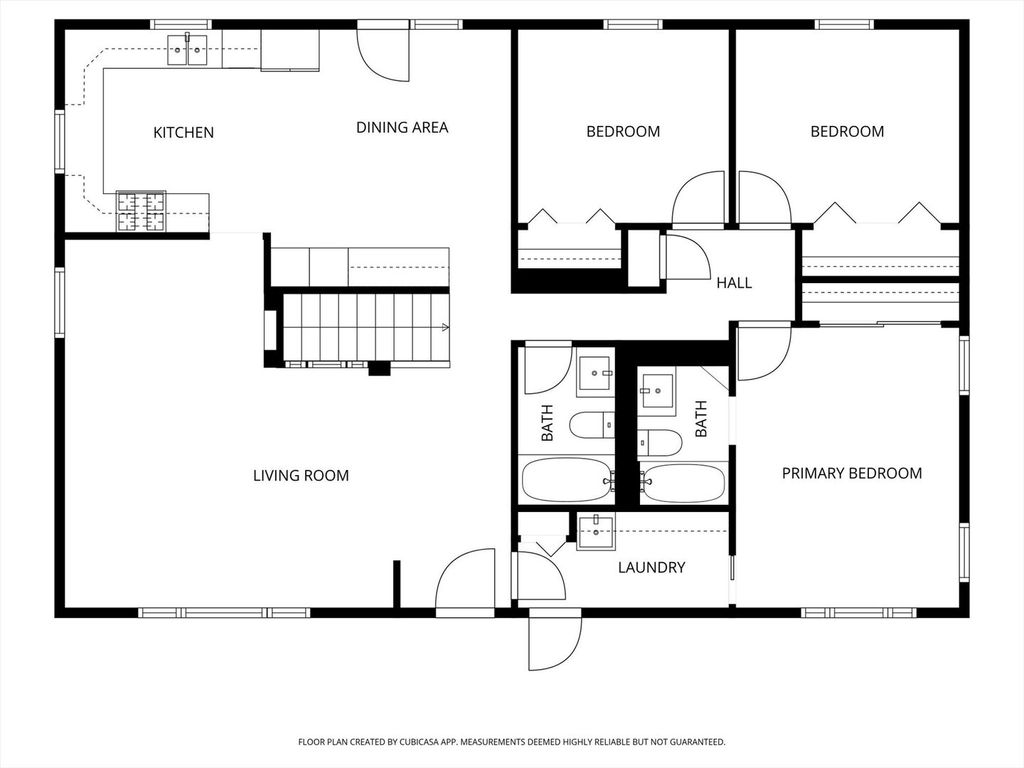
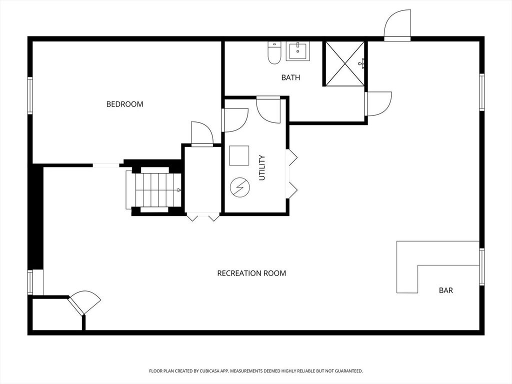
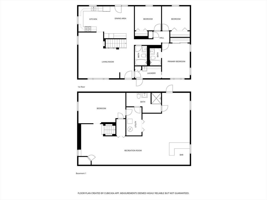
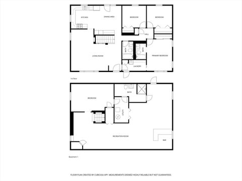
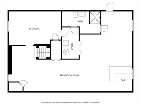
A solidly built all-brick ranch home with 3 bedrooms on the main level plus a 4th in the lower level. Includes 3 full baths, all with new fixtures. Has 1,320 sq. ft. on first floor and another 1,320 sq. ft. in the finished lower level, for over 2,600 sq. ft. of living space. Recently remodeled up and down, all newly painted inside. Main floor includes large living room, master suite, bedrooms 2 and 3, laundry/mud room, huge eat-in kitchen, and access to big screened-in porch. The extra-large kitchen/dining space features ample cabinet and counter space, including room to add a movable island. And the large pantry has pullouts for storage, plus an adjacent coffee bar. The convenient first-floor laundry/mud room is off the foyer and master suite, and includes a laundry tub. The spacious lower level doubles the living space with the 4th bedroom and adjoining bathroom with a big walk-in shower, multiple areas for family and recreation spaces, and a bar. The bar/lounge area is perfect for relaxing, good conversation and watching games on TV. And when the weather is nice, you can easily move the activities outside through the exterior doors. And it's also helpful for moving large items in and out. The entire lower-level floor is tiled. The big screened-in porch overlooks the large, completely fenced-in backyard and shed. There are 3 ceiling fans to make it more comfortable on those hot, humid nights. The garage has loads of cabinets for storage, plus a workbench and exterior service door. There's also a gas line to add a future heater. Want to display favorite photos, collectibles and memories? There are lighted niches in the living room, master bedroom and other spots to show them off. So, if you're looking for a home to spread out in and enjoy all the benefits of Lake Holiday - boating, fishing, swimming and lots more - here it is, ready to make it your own. This home is owned by an out-of-area Realtor.
| DAYS ON MARKET | 83 | LAST UPDATED | 1/6/2026 |
|---|---|---|---|
| TRACT | Lake Holiday | YEAR BUILT | 1989 |
| COMMUNITY | Lake Holiday | GARAGE SPACES | 2.0 |
| COUNTY | LaSalle | STATUS | Active |
| PROPERTY TYPE(S) | Single Family |
| ADDITIONAL DETAILS | |
| AIR | Central Air |
|---|---|
| AIR CONDITIONING | Yes |
| AMENITIES | Insurance |
| APPLIANCES | Dishwasher, Disposal, Microwave, Range, Refrigerator |
| AREA | Lake Holiday |
| BASEMENT | Exterior Entry, Finished, Full, Storage Space, Yes |
| CONSTRUCTION | Brick |
| GARAGE | Attached Garage, Yes |
| HEAT | Forced Air, Natural Gas |
| HOA DUES | 1029 |
| INTERIOR | Built-in Features, Dry Bar, Pantry |
| LOT | 0 |
| LOT DIMENSIONS | 75x200 |
| PARKING | Asphalt, Garage Door Opener, Attached, Garage |
| SEWER | Septic Tank |
| STYLE | Ranch |
| SUBDIVISION | Lake Holiday |
| TAXES | 5649 |
| WATER | Private |
MORTGAGE CALCULATOR
TOTAL MONTHLY PAYMENT
0
P
I
*Estimate only
| SATELLITE VIEW |
| / | |
We respect your online privacy and will never spam you. By submitting this form with your telephone number
you are consenting for Humderto
Garcia to contact you even if your name is on a Federal or State
"Do not call List".
Listed with Swanson Real Estate
The data relating to real estate for sale on this web site comes in part from the Broker ReciprocitySM Program of MRED. All real estate listings are marked with the Broker ReciprocitySM logo or the MRED Broker ReciprocitySM thumbnail logo (a little black house) and detailed information about them includes the name of the listing brokers.
The broker providing these data believes them to be correct, but advises interested parties to confirm them before relying on them in a purchase decision.
Copyright 2026 MRED. All rights reserved.

The broker providing these data believes them to be correct, but advises interested parties to confirm them before relying on them in a purchase decision.
Copyright 2026 MRED. All rights reserved.
This IDX solution is (c) Diverse Solutions 2026.