|
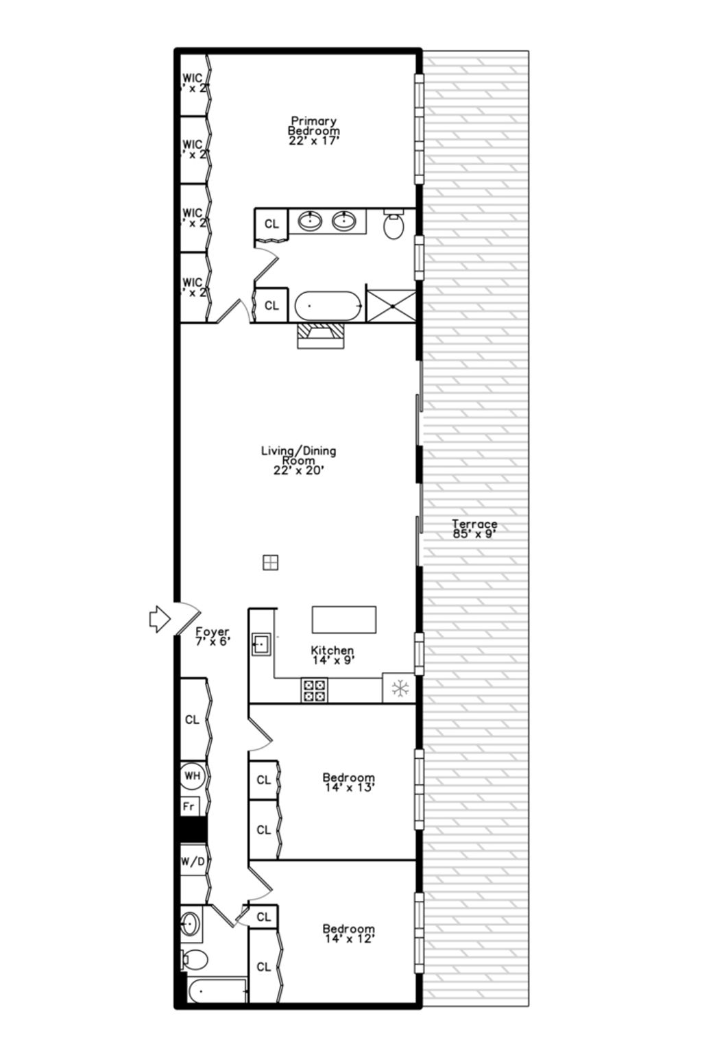
Amazing penthouse unit with 11' ceilings and an 85' long terrace! Open floor plan with hardwood floors throughout. Tremendous natural light with north facing windows that provide an unobstructed view. The living and dining room are highlighted by a decorative fireplace and dual sliding doors to the terrace. The kitchen is finished with quartz counters, under cabinet lighting and features an island that was designed to seamlessly incorporate the table into the space. Excellent room sizes and plentiful closet space that are demonstrated by the enormous primary suite with a wall of 4 closets plus a linen closet. The adjoining private bath is complete with dual sinks, a free standing soaking tub and a separate shower. Convenient in unit washer dryer, a storage locker in the lower level of the building plus a heated garage space. Building offers a fitness room and a dog park!
| DAYS ON MARKET | 28 | LAST UPDATED | 1/28/2026 |
|---|---|---|---|
| YEAR BUILT | 0 | COMMUNITY | CHI - Lincoln Park |
| GARAGE SPACES | 1.0 | COUNTY | Cook |
| STATUS | Active | PROPERTY TYPE(S) | Condo/Townhouse/Co-Op |
| School District | Lincoln Park High School |
|---|---|
| Elementary School | Prescott Elementary School |
| Jr. High School | Prescott Elementary School |
| High School | Lincoln Park High School |
| PRICE HISTORY | |
| Prior to Jan 28, '26 | $675,000 |
|---|---|
| Jan 28, '26 - Today | $659,900 |
| ADDITIONAL DETAILS | |
| AIR | Central Air |
|---|---|
| AIR CONDITIONING | Yes |
| AMENITIES | Insurance, Snow Removal, Water |
| APPLIANCES | Cooktop, Dishwasher, Dryer, Microwave, Oven, Refrigerator, Washer |
| AREA | CHI - Lincoln Park |
| BASEMENT | None |
| CONSTRUCTION | Brick |
| FIREPLACE | Yes |
| GARAGE | Attached Garage, Yes |
| HEAT | Forced Air, Natural Gas |
| HOA DUES | 625 |
| INTERIOR | Elevator, Entrance Foyer, Storage |
| LOT | 0 |
| LOT DIMENSIONS | Common |
| PARKING | Garage Door Opener, Heated Garage, Attached, Garage |
| SEWER | Public Sewer |
| STORIES | 6 |
| TAXES | 11988.96 |
MORTGAGE CALCULATOR
TOTAL MONTHLY PAYMENT
0
P
I
*Estimate only
| SATELLITE VIEW |
| / | |
We respect your online privacy and will never spam you. By submitting this form with your telephone number
you are consenting for Humderto
Garcia to contact you even if your name is on a Federal or State
"Do not call List".
Listed with Compass
The data relating to real estate for sale on this web site comes in part from the Broker ReciprocitySM Program of MRED. All real estate listings are marked with the Broker ReciprocitySM logo or the MRED Broker ReciprocitySM thumbnail logo (a little black house) and detailed information about them includes the name of the listing brokers.
The broker providing these data believes them to be correct, but advises interested parties to confirm them before relying on them in a purchase decision.
Copyright 2026 MRED. All rights reserved.

The broker providing these data believes them to be correct, but advises interested parties to confirm them before relying on them in a purchase decision.
Copyright 2026 MRED. All rights reserved.
This IDX solution is (c) Diverse Solutions 2026.