|
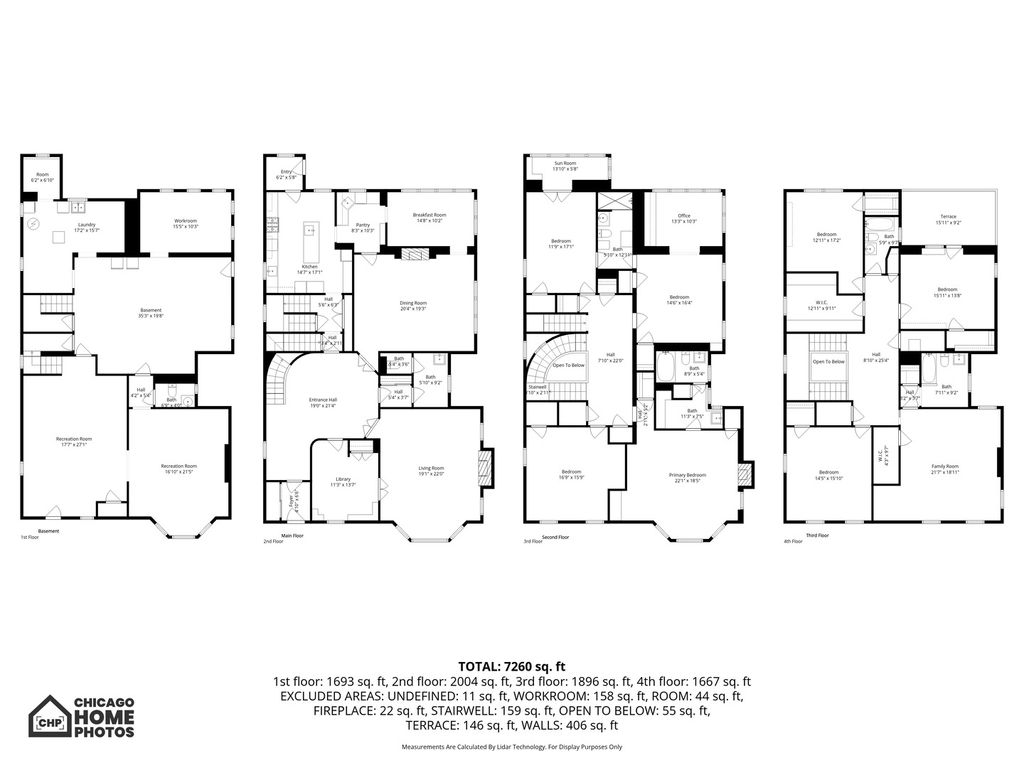
New on Woodlawn Avenue. Located in the heart of the South Kenwood Historic Landmark District, this imposing and gracious three-story brick residence is a rare architectural offering. Originally designed and constructed in 1904 by noted architect George Beaumont for prominent Chicago industrialist and philanthropist Bernard E. Sunny, the home was thoughtfully and comprehensively updated in 1937 with striking Art Deco era finishes, seamlessly blending historic character with modern livability. The light-filled interior is ideally suited for today's lifestyle, featuring an open and expansive floor plan across all three upper levels. A welcoming entrance opens to a dramatic oval reception hall, anchored by a sweeping curved staircase leading to the second floor. From this impressive entry, gracious rooms flow into a grand living room, formal dining room, designer kitchen with butler's pantry, and a cheerful breakfast room overlooking a private backyard with patio and garden areas. A true standout is the library off the living room, complete with distinctive leather-clad walls and a hidden bar, perfect for entertaining. The second and third floors open on to substantial landings and each features three bedrooms, two full baths, and additional flexible rooms ideal for offices or dens. Each bedroom is generously sized and uniquely detailed, with special features such as a sun porch, private terrace, or semi-enclosed reading nook. Abundant closet space is found throughout the home. The full-height basement provides excellent recreation and work-out space along with ample storage. Adding exceptional value, the rear of the property includes a recently renovated two-story coach house featuring a three-car garage on the main level and a beautifully appointed one-bedroom apartment above, complete with new windows, central air conditioning, in-unit laundry and up-to-date kitchen and bath, ideal for guests, in-law living, a nanny suite, or rental income. Conveniently located near The University of Chicago campus (including the Lab Schools), Lake Shore Drive, Metra stations, and downtown bus routes, this remarkable home offers historic elegance, modern comfort, and outstanding accessibility.
| DAYS ON MARKET | 102 | LAST UPDATED | 3/4/2026 |
|---|---|---|---|
| YEAR BUILT | 1909 | COMMUNITY | CHI - Kenwood |
| GARAGE SPACES | 3.0 | COUNTY | Cook |
| STATUS | Active | PROPERTY TYPE(S) | Single Family |
| PRICE HISTORY | |
| Prior to Mar 4, '26 | $3,100,000 |
|---|---|
| Mar 4, '26 - Today | $2,900,000 |
| ADDITIONAL DETAILS | |
| AIR | Central Air |
|---|---|
| AIR CONDITIONING | Yes |
| APPLIANCES | Dishwasher, Disposal, Double Oven, Dryer, Freezer, Microwave, Range, Range Hood, Washer |
| AREA | CHI - Kenwood |
| BASEMENT | Full, Partially Finished, Yes |
| CONSTRUCTION | Brick |
| FIREPLACE | Yes |
| GARAGE | Yes |
| HEAT | Natural Gas, Radiant, Steam |
| INTERIOR | Entrance Foyer, Pantry, Walk-In Closet(s) |
| LOT | 0 |
| LOT DIMENSIONS | 50 x 179 |
| PARKING | Garage Door Opener, Detached, Garage |
| SEWER | Public Sewer |
| TAXES | 43544 |
| WATER | Public |
MORTGAGE CALCULATOR
TOTAL MONTHLY PAYMENT
0
P
I
*Estimate only
| SATELLITE VIEW |
| / | |
We respect your online privacy and will never spam you. By submitting this form with your telephone number
you are consenting for Humderto
Garcia to contact you even if your name is on a Federal or State
"Do not call List".
Listed with Berkshire Hathaway HomeServices Chicago
The data relating to real estate for sale on this web site comes in part from the Broker ReciprocitySM Program of MRED. All real estate listings are marked with the Broker ReciprocitySM logo or the MRED Broker ReciprocitySM thumbnail logo (a little black house) and detailed information about them includes the name of the listing brokers.
The broker providing these data believes them to be correct, but advises interested parties to confirm them before relying on them in a purchase decision.
Copyright 2026 MRED. All rights reserved.

The broker providing these data believes them to be correct, but advises interested parties to confirm them before relying on them in a purchase decision.
Copyright 2026 MRED. All rights reserved.
This IDX solution is (c) Diverse Solutions 2026.