|
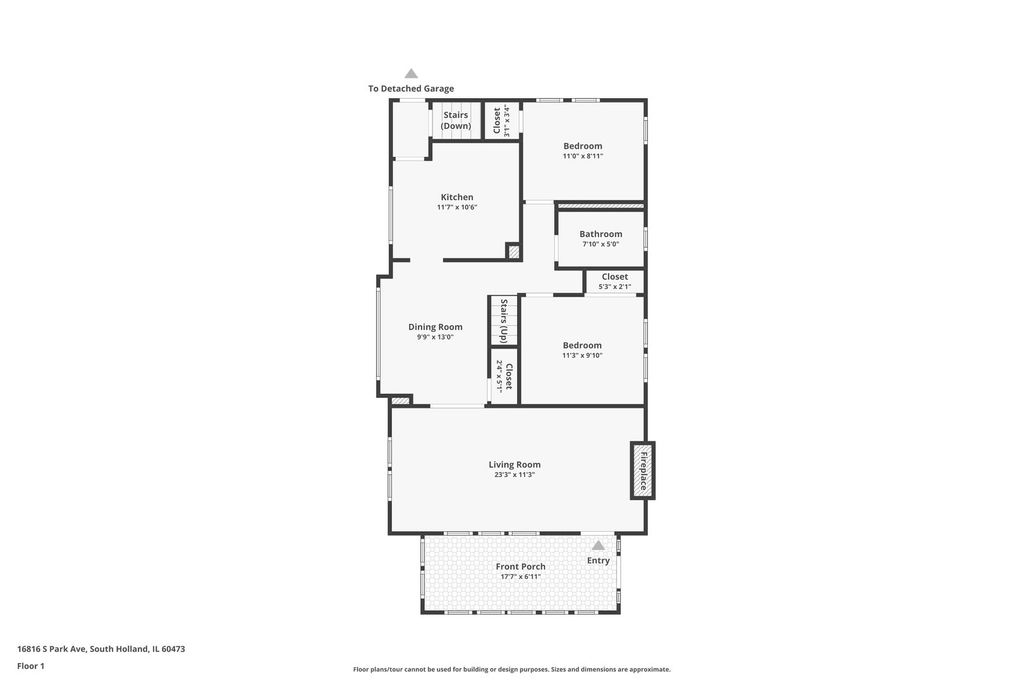
Beautifully updated Brick Cape Cod and ready for new owners! Seller is willing to discuss seller financing and installment contract or contract for deed (similar to rent to own structure). Gorgeous new kitchen with quartz countertops, white shaker style cabinets and all new stainless appliances. New windows! New Central Air Conditioning and Heating/New Furnace. New hot water heater. All new Flooring, including luxury vinyl plank flooring and all refinished hardwood. New bathtubs, vanity sink, bathroom fixtures in both bathrooms, New flooring for Sunroom/ Porch, New side entrance door to the garage, New basement flooring. Lovely living room with wood burning fireplace for those chilly winter nights! 2 beds and one bath on each level for a total of 4 beds and 2 full bathrooms! 2nd floor has 2 nice sized additional closets for storage. All new interior paint, fixtures and lighting. Plenty of parking space available in your 2.5 Car Detached Garage (w/ Newer Roof), and nice long, freshly seal coated, asphalt driveway! This home is located NEXT to a public park (see photo), making this the BEST backyard one could ask for... and you don't even have to mow it! 😉 New AC unit to be installed before closing! Close to the City Center area, located close to schools, shopping, & highway access! Please view the 3-D tour WITH FLOOR PLAN and schedule your private showing TODAY!
| DAYS ON MARKET | 27 | LAST UPDATED | 1/30/2026 |
|---|---|---|---|
| YEAR BUILT | 1922 | COMMUNITY | South Holland |
| GARAGE SPACES | 2.5 | COUNTY | Cook |
| STATUS | Active | PROPERTY TYPE(S) | Single Family |
| School District | Thornwood High School |
|---|---|
| Elementary School | Mckinley Elementary School |
| Jr. High School | Mckinley Junior High School |
| High School | Thornwood High School |
| PRICE HISTORY | |
| Prior to Jan 30, '26 | $225,000 |
|---|---|
| Jan 30, '26 - Today | $223,000 |
| ADDITIONAL DETAILS | |
| AIR | Central Air |
|---|---|
| AIR CONDITIONING | Yes |
| APPLIANCES | Dishwasher, Microwave, Range, Refrigerator, Stainless Steel Appliance(s) |
| AREA | South Holland |
| BASEMENT | Full, Unfinished, Yes |
| CONSTRUCTION | Brick |
| FIREPLACE | Yes |
| GARAGE | Yes |
| HEAT | Forced Air, Natural Gas |
| LOT | 0 |
| LOT DIMENSIONS | 0.258 |
| PARKING | Asphalt, Garage Door Opener, Detached, Garage |
| SEWER | Public Sewer |
| STYLE | Cape Cod |
| TAXES | 6291.81 |
| WATER | Public |
MORTGAGE CALCULATOR
TOTAL MONTHLY PAYMENT
0
P
I
*Estimate only
| SATELLITE VIEW |
| / | |
We respect your online privacy and will never spam you. By submitting this form with your telephone number
you are consenting for Humderto
Garcia to contact you even if your name is on a Federal or State
"Do not call List".
Listed with Chase Real Estate LLC
The data relating to real estate for sale on this web site comes in part from the Broker ReciprocitySM Program of MRED. All real estate listings are marked with the Broker ReciprocitySM logo or the MRED Broker ReciprocitySM thumbnail logo (a little black house) and detailed information about them includes the name of the listing brokers.
The broker providing these data believes them to be correct, but advises interested parties to confirm them before relying on them in a purchase decision.
Copyright 2026 MRED. All rights reserved.

The broker providing these data believes them to be correct, but advises interested parties to confirm them before relying on them in a purchase decision.
Copyright 2026 MRED. All rights reserved.
This IDX solution is (c) Diverse Solutions 2026.