|
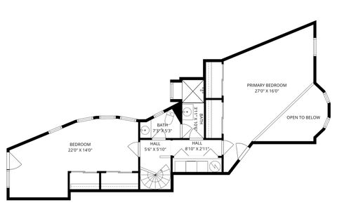
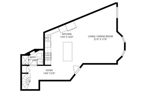
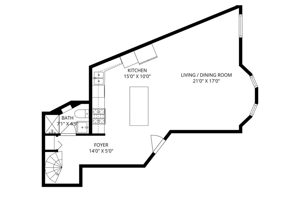
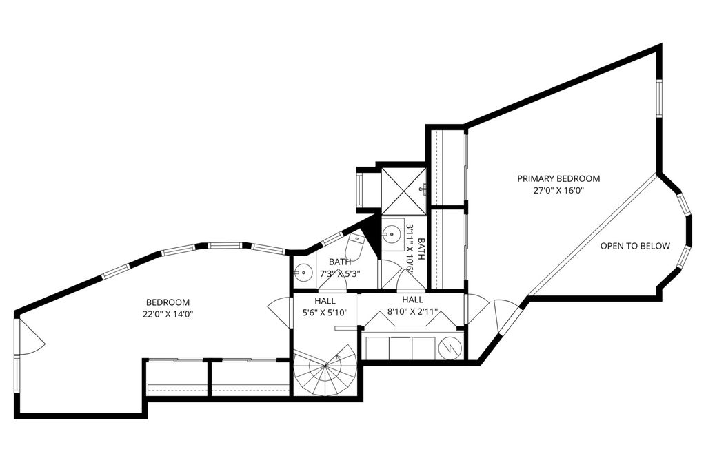
Please submit Highest and Best Offers due by Monday 1/19 at 5:00pm. This spacious two-bedroom, two-bath loft-style duplex-down delivers modern comfort and thoughtful design in a prime Northalsted / East Lakeview location between Halsted and Broadway. Hardwood floors throughout set the stage for a high-end kitchen featuring cherry cabinetry, granite countertops, stainless steel appliances, slow-close drawers, and an oversized island that seamlessly connects the space for cooking, dining, and entertaining. Vaulted ceilings and five front-facing windows flood the open living and dining area with natural light. Both generously sized bedrooms are located on the upper level and offer ample closet space and space for king-size beds. The upstairs bath is spa-inspired and uniquely configured with two private sink areas and an oversized walk-in shower with bench seating and body sprays, creating flexibility and privacy. The lower-level bath was refreshed in 2021 with new walk-in shower tile+fixtures, vanity, lighting, and a smart exhaust fan. Additional highlights include newer CENTRAL A/C and Gas-Forced Air Furnace, side-by-side in-unit laundry (washer 2025) in hallway between bedrooms, newer lighting fixtures (some with smart bulbs), abundant storage throughout, extra building storage unit, and a shared bike room. Enjoy outdoor space with a charming shared backyard and a private balcony just off the back door. Unbeatable walkability to Northalsted's most loved dining and nightlife, along with Lake Michigan, Whole Foods, Wrigley Field, and multiple transit options. Don't miss this opportunity, come check it out!
| DAYS ON MARKET | 27 | LAST UPDATED | 1/21/2026 |
|---|---|---|---|
| YEAR BUILT | 1902 | COMMUNITY | CHI - Lake View |
| COUNTY | Cook | STATUS | Conditional |
| PROPERTY TYPE(S) | Condo/Townhouse/Co-Op |
| Elementary School | Nettelhorst Elementary School |
|---|
| ADDITIONAL DETAILS | |
| AIR | Ceiling Fan(s), Central Air |
|---|---|
| AIR CONDITIONING | Yes |
| AMENITIES | Insurance, Snow Removal, Water |
| APPLIANCES | Dishwasher, Disposal, Double Oven, Dryer, Microwave, Refrigerator, Stainless Steel Appliance(s), Washer |
| AREA | CHI - Lake View |
| BASEMENT | Daylight, Finished, Yes |
| CONSTRUCTION | Brick |
| EXTERIOR | Balcony |
| HEAT | Forced Air, Natural Gas |
| HOA DUES | 461 |
| INTERIOR | Entrance Foyer, Storage |
| LOT | 0 |
| LOT DIMENSIONS | COMMON |
| SEWER | Public Sewer |
| STORIES | 3 |
| TAXES | 5515.48 |
MORTGAGE CALCULATOR
TOTAL MONTHLY PAYMENT
0
P
I
*Estimate only
| SATELLITE VIEW |
| / | |
We respect your online privacy and will never spam you. By submitting this form with your telephone number
you are consenting for Humderto
Garcia to contact you even if your name is on a Federal or State
"Do not call List".
Listed with Baird & Warner
The data relating to real estate for sale on this web site comes in part from the Broker ReciprocitySM Program of MRED. All real estate listings are marked with the Broker ReciprocitySM logo or the MRED Broker ReciprocitySM thumbnail logo (a little black house) and detailed information about them includes the name of the listing brokers.
The broker providing these data believes them to be correct, but advises interested parties to confirm them before relying on them in a purchase decision.
Copyright 2026 MRED. All rights reserved.

The broker providing these data believes them to be correct, but advises interested parties to confirm them before relying on them in a purchase decision.
Copyright 2026 MRED. All rights reserved.
This IDX solution is (c) Diverse Solutions 2026.