|
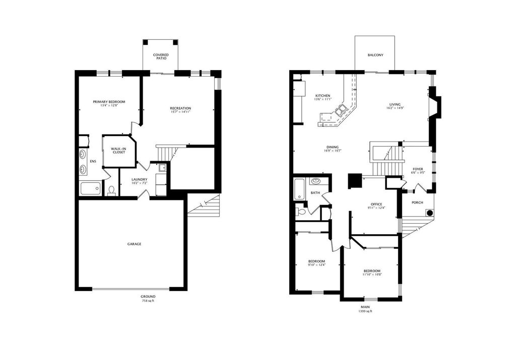
Discover this spacious two-level condo in desirable Willowbrook, offering a comfortable and highly flexible layout across 2,156 square feet. Perfect for low-maintenance living with plenty of room to spread out, this well-maintained 1995-built home combines convenience with thoughtful design. The upper level welcomes you with two bedrooms, a full bath, a versatile office space, an open-concept kitchen and dining area, and a cozy living room featuring a fireplace-ideal for everyday living or entertaining. The ground level is dedicated to relaxation and functionality, showcasing the private primary suite with its own full bath and dual sinks, a large recreation room perfect for a home theater, gym, or play area, plus a convenient combined mudroom-laundry space. An attached 2.5-car garage provides ample parking and extra crawl space storage. Enjoy true ease of ownership with monthly HOA fees of just $346, which cover exterior maintenance, lawn care, snow removal, landscaping, garbage pickup, and scavenger service. This move-in-ready condo offers the perfect blend of space, privacy, and simplicity in a sought-after location. The HOA does not allow for rentals.
| DAYS ON MARKET | 27 | LAST UPDATED | 1/21/2026 |
|---|---|---|---|
| YEAR BUILT | 1995 | COMMUNITY | Willowbrook |
| GARAGE SPACES | 2.5 | COUNTY | DuPage |
| STATUS | Conditional | PROPERTY TYPE(S) | Condo/Townhouse/Co-Op |
| School District | Hinsdale South High School |
|---|---|
| Elementary School | Maercker Elementary School |
| High School | Hinsdale South High School |
| ADDITIONAL DETAILS | |
| AIR | Central Air |
|---|---|
| AIR CONDITIONING | Yes |
| AMENITIES | Insurance, Snow Removal, Water |
| APPLIANCES | Disposal, Microwave, Range, Refrigerator |
| AREA | Willowbrook |
| BASEMENT | None |
| CONSTRUCTION | Vinyl Siding |
| FIREPLACE | Yes |
| GARAGE | Attached Garage, Yes |
| HEAT | Natural Gas |
| HOA DUES | 346 |
| LOT | 0 |
| LOT DIMENSIONS | COMMON |
| PARKING | Attached, Garage |
| SEWER | Public Sewer |
| STORIES | 2 |
| TAXES | 6451 |
MORTGAGE CALCULATOR
TOTAL MONTHLY PAYMENT
0
P
I
*Estimate only
| SATELLITE VIEW |
| / | |
We respect your online privacy and will never spam you. By submitting this form with your telephone number
you are consenting for Humderto
Garcia to contact you even if your name is on a Federal or State
"Do not call List".
Listed with @properties Christie's International Real Estate
The data relating to real estate for sale on this web site comes in part from the Broker ReciprocitySM Program of MRED. All real estate listings are marked with the Broker ReciprocitySM logo or the MRED Broker ReciprocitySM thumbnail logo (a little black house) and detailed information about them includes the name of the listing brokers.
The broker providing these data believes them to be correct, but advises interested parties to confirm them before relying on them in a purchase decision.
Copyright 2026 MRED. All rights reserved.

The broker providing these data believes them to be correct, but advises interested parties to confirm them before relying on them in a purchase decision.
Copyright 2026 MRED. All rights reserved.
This IDX solution is (c) Diverse Solutions 2026.