|
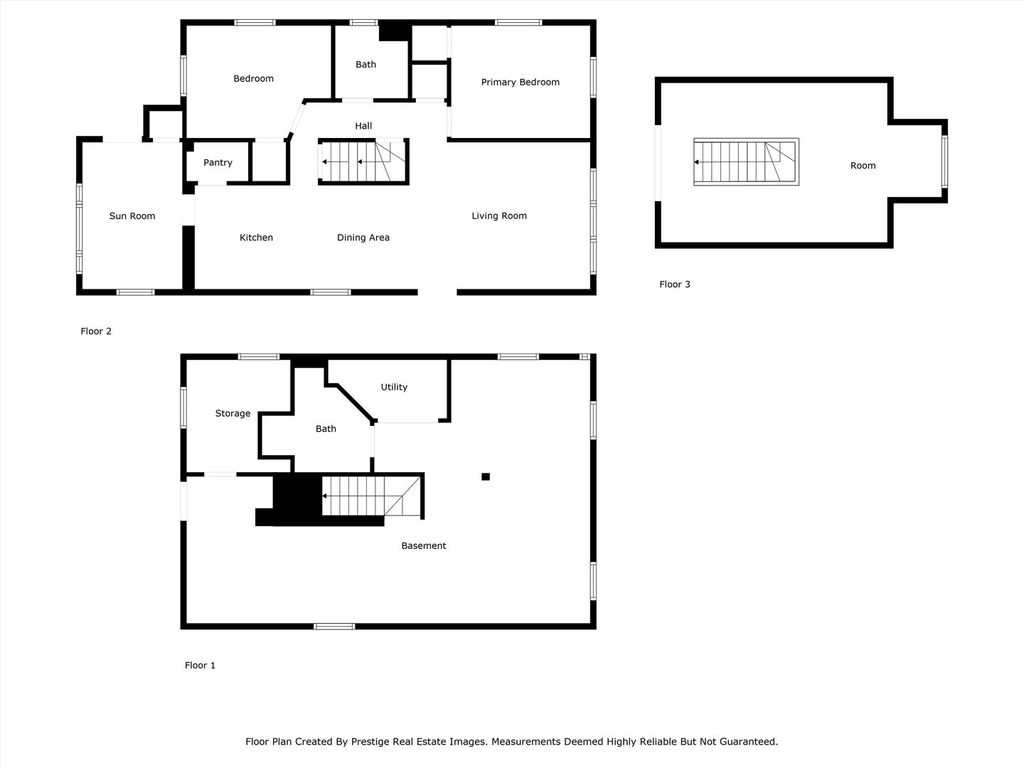
Welcome to this charming 2-story bungalow in the desirable Calumet Heights neighborhood! This well-maintained home offers a spacious layout with 3 bedrooms and 2 full baths, perfect for comfortable everyday living. Step into a bright living room that flows into a separate dining area, ideal for entertaining. The kitchen offers plenty of cabinet space, and there's a sunroom just off the main level for added relaxation. You'll also find two main-level bedrooms, with a private primary bedroom on the second floor. The finished walkout basement features a family room, laundry area, full bathroom, and utility room, providing flexibility for guests, recreation, or work-from-home needs. Outside, enjoy a spacious backyard and a 2.5-car detached garage. Don't miss this opportunity. Schedule your private showing today!
| DAYS ON MARKET | 26 | LAST UPDATED | 1/7/2026 |
|---|---|---|---|
| YEAR BUILT | 1924 | COMMUNITY | CHI - Calumet Heights |
| GARAGE SPACES | 2.5 | COUNTY | Cook |
| STATUS | Active | PROPERTY TYPE(S) | Single Family |
| ADDITIONAL DETAILS | |
| AIR | Central Air |
|---|---|
| AIR CONDITIONING | Yes |
| AREA | CHI - Calumet Heights |
| BASEMENT | Finished, Full, Yes |
| CONSTRUCTION | Brick, Vinyl Siding |
| GARAGE | Yes |
| HEAT | Forced Air, Natural Gas |
| LOT | 0 |
| LOT DIMENSIONS | 30x139 |
| PARKING | Detached, Garage |
| SEWER | Public Sewer |
| TAXES | 1546.65 |
| WATER | Public |
MORTGAGE CALCULATOR
TOTAL MONTHLY PAYMENT
0
P
I
*Estimate only
| SATELLITE VIEW |
| / | |
We respect your online privacy and will never spam you. By submitting this form with your telephone number
you are consenting for Humderto
Garcia to contact you even if your name is on a Federal or State
"Do not call List".
Listed with RE/MAX Mi Casa
The data relating to real estate for sale on this web site comes in part from the Broker ReciprocitySM Program of MRED. All real estate listings are marked with the Broker ReciprocitySM logo or the MRED Broker ReciprocitySM thumbnail logo (a little black house) and detailed information about them includes the name of the listing brokers.
The broker providing these data believes them to be correct, but advises interested parties to confirm them before relying on them in a purchase decision.
Copyright 2026 MRED. All rights reserved.

The broker providing these data believes them to be correct, but advises interested parties to confirm them before relying on them in a purchase decision.
Copyright 2026 MRED. All rights reserved.
This IDX solution is (c) Diverse Solutions 2026.