|
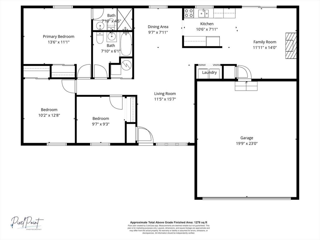
Welcome to this well-maintained 3-bedroom, 2-bathroom ranch home in desirable Southwood subdivision and located just blocks from Robeson School and Park! Perfectly positioned in a central location of town, this home offers both convenience and comfort. The open floor plan features a versatile living/dining room combination. The kitchen flows seamlessly into a cozy hearth room with a fireplace-perfect for relaxing evenings. Step through the patio doors to discover your private outdoor retreat: a spacious fenced backyard complete with a deck and charming gazebo ready for cook-outs or peaceful mornings with your coffee. Practical features include a 2-car attached garage and low-maintenance vinyl siding. For added peace of mind, this home has been pre-inspected and is move-in ready.
| DAYS ON MARKET | 25 | LAST UPDATED | 1/8/2026 |
|---|---|---|---|
| TRACT | Southwood | YEAR BUILT | 1978 |
| COMMUNITY | Champaign, Savoy | GARAGE SPACES | 2.0 |
| COUNTY | Champaign | STATUS | Active |
| PROPERTY TYPE(S) | Single Family |
| School District | Centennial High School |
|---|---|
| Elementary School | Champaign Elementary School |
| Jr. High School | Champaign Junior High School |
| High School | Centennial High School |
| ADDITIONAL DETAILS | |
| AIR | Central Air |
|---|---|
| AIR CONDITIONING | Yes |
| APPLIANCES | Dishwasher, Microwave, Range, Refrigerator |
| AREA | Champaign, Savoy |
| BASEMENT | Crawl Space |
| CONSTRUCTION | Vinyl Siding |
| GARAGE | Attached Garage, Yes |
| HEAT | Forced Air, Natural Gas |
| LOT | 0 |
| LOT DIMENSIONS | 43.28x31.76x100x75x101.49 |
| PARKING | Attached, Garage |
| SEWER | Public Sewer |
| STYLE | Ranch |
| SUBDIVISION | Southwood |
| WATER | Public |
MORTGAGE CALCULATOR
TOTAL MONTHLY PAYMENT
0
P
I
*Estimate only
| SATELLITE VIEW |
| / | |
We respect your online privacy and will never spam you. By submitting this form with your telephone number
you are consenting for Humderto
Garcia to contact you even if your name is on a Federal or State
"Do not call List".
Listed with Taylor Realty Associates
The data relating to real estate for sale on this web site comes in part from the Broker ReciprocitySM Program of MRED. All real estate listings are marked with the Broker ReciprocitySM logo or the MRED Broker ReciprocitySM thumbnail logo (a little black house) and detailed information about them includes the name of the listing brokers.
The broker providing these data believes them to be correct, but advises interested parties to confirm them before relying on them in a purchase decision.
Copyright 2026 MRED. All rights reserved.

The broker providing these data believes them to be correct, but advises interested parties to confirm them before relying on them in a purchase decision.
Copyright 2026 MRED. All rights reserved.
This IDX solution is (c) Diverse Solutions 2026.