|
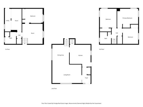
Fully updated split-level home featuring 3 main-level bedrooms, an additional lower-level bedroom, and 2 full bathrooms. Recent upgrades include new vinyl plank flooring, fresh interior paint, and sleek modern trim throughout. The home offers light-filled living areas, a spacious deck for relaxing or entertaining, a 2-car garage, and an extended driveway for extra parking. Tucked away on a quiet street yet conveniently close to parks, schools, shopping, and major highways. Truly turnkey and ideal for an owner-occupant or a strong cash-flow investment opportunity.
| DAYS ON MARKET | 22 | LAST UPDATED | 1/12/2026 |
|---|---|---|---|
| YEAR BUILT | 1968 | COMMUNITY | Calumet City |
| GARAGE SPACES | 2.0 | COUNTY | Cook |
| STATUS | Active | PROPERTY TYPE(S) | Single Family |
| ADDITIONAL DETAILS | |
| AIR | Central Air |
|---|---|
| AIR CONDITIONING | Yes |
| AREA | Calumet City |
| BASEMENT | Finished, Partial, Yes |
| CONSTRUCTION | Brick |
| GARAGE | Yes |
| HEAT | Baseboard |
| LOT | 5001 sq ft |
| LOT DIMENSIONS | 100X55 |
| PARKING | Detached, Garage |
| SEWER | Public Sewer |
| TAXES | 6240 |
| WATER | Public |
MORTGAGE CALCULATOR
TOTAL MONTHLY PAYMENT
0
P
I
*Estimate only
| SATELLITE VIEW |
| / | |
We respect your online privacy and will never spam you. By submitting this form with your telephone number
you are consenting for Humderto
Garcia to contact you even if your name is on a Federal or State
"Do not call List".
Listed with eXp Realty
The data relating to real estate for sale on this web site comes in part from the Broker ReciprocitySM Program of MRED. All real estate listings are marked with the Broker ReciprocitySM logo or the MRED Broker ReciprocitySM thumbnail logo (a little black house) and detailed information about them includes the name of the listing brokers.
The broker providing these data believes them to be correct, but advises interested parties to confirm them before relying on them in a purchase decision.
Copyright 2026 MRED. All rights reserved.

The broker providing these data believes them to be correct, but advises interested parties to confirm them before relying on them in a purchase decision.
Copyright 2026 MRED. All rights reserved.
This IDX solution is (c) Diverse Solutions 2026.