|
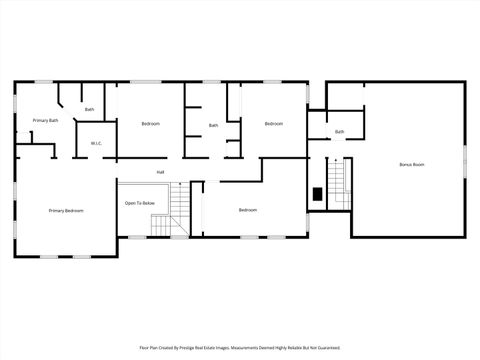
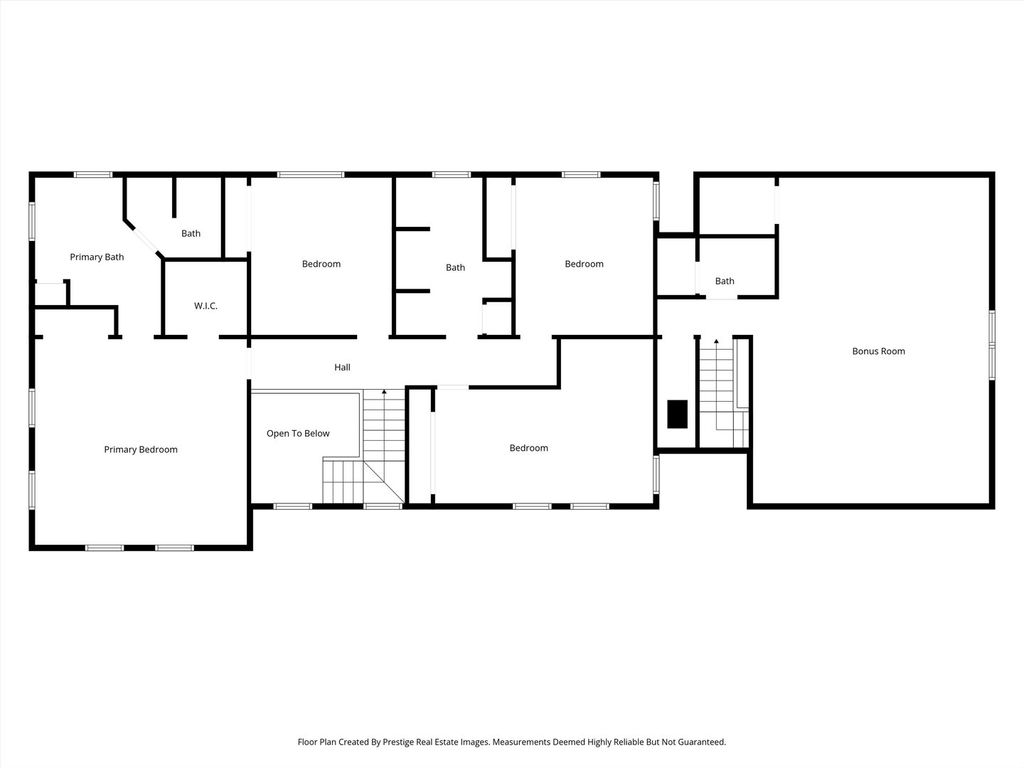
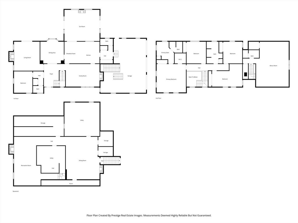
The sellers are ready to move on, creating a unique opportunity to purchase this home as-is. The property does not have known structural or mechanical issues, but it does require updating throughout, and pricing reflects its current condition. Sellers are open to serious offers. This expansive 6-bedroom, 3-full-bath, 2-half-bath home was built to be a true forever home and offers exceptional bones, thoughtful design, and a highly functional layout-providing an excellent foundation for renovation and customization. The home features generously sized rooms, multiple living areas, and flexibility to adapt to modern living needs. The sixth bedroom, an oversized den currently used as a bedroom, also works well as a playroom, home office, or flex space. The main level includes hardwood floors, detailed trim, and several gathering spaces, including a living room with a fireplace, a separate family room, and a formal dining room suited for entertaining. The kitchen is spacious and functional, with abundant cabinetry and counter space, ready for updating to match today's style and preferences. Upstairs, the bedrooms are well-sized with good natural light and storage. The primary suite is generously proportioned, and the additional bedrooms provide flexibility for family, guests, or work-from-home use. With three full baths and two half baths, the home is well-equipped for daily living and hosting. The finished lower level adds meaningful additional living space, featuring a large recreation area with a second fireplace-ideal for movie nights, game days, or casual gatherings-along with storage and room for future customization. While the home does need updates and is being sold as-is, it offers a rare combination of size, layout, and long-term potential. The sellers have enjoyed the home for many years but no longer need this much space, making this a compelling opportunity for the next owner to bring fresh vision and unlock its full potential.
| DAYS ON MARKET | 2 | LAST UPDATED | 4/17/2026 |
|---|---|---|---|
| YEAR BUILT | 1987 | COMMUNITY | Crystal Lake / Lakewood / Prairie Grove |
| GARAGE SPACES | 3.0 | COUNTY | McHenry |
| STATUS | Conditional | PROPERTY TYPE(S) | Single Family |
| School District | Prairie Ridge High School |
|---|---|
| Elementary School | Husmann Elementary School |
| Jr. High School | Hannah Beardsley Middle School |
| High School | Prairie Ridge High School |
| ADDITIONAL DETAILS | |
| AIR | Central Air |
|---|---|
| AIR CONDITIONING | Yes |
| AREA | Crystal Lake / Lakewood / Prairie Grove |
| BASEMENT | Finished, Full, Yes |
| CONSTRUCTION | Vinyl Siding |
| GARAGE | Attached Garage, Yes |
| HEAT | Natural Gas |
| LOT | 0.58 acre(s) |
| LOT DIMENSIONS | 248x103 |
| PARKING | Garage Door Opener, Attached, Garage |
| SEWER | Septic Tank |
| TAXES | 13303 |
| WATER | Public |
MORTGAGE CALCULATOR
TOTAL MONTHLY PAYMENT
0
P
I
*Estimate only
| SATELLITE VIEW |
| / | |
We respect your online privacy and will never spam you. By submitting this form with your telephone number
you are consenting for Humderto
Garcia to contact you even if your name is on a Federal or State
"Do not call List".
Listed with Marathon Realty Group
The data relating to real estate for sale on this web site comes in part from the Broker ReciprocitySM Program of MRED. All real estate listings are marked with the Broker ReciprocitySM logo or the MRED Broker ReciprocitySM thumbnail logo (a little black house) and detailed information about them includes the name of the listing brokers.
The broker providing these data believes them to be correct, but advises interested parties to confirm them before relying on them in a purchase decision.
Copyright 2026 MRED. All rights reserved.

The broker providing these data believes them to be correct, but advises interested parties to confirm them before relying on them in a purchase decision.
Copyright 2026 MRED. All rights reserved.
This IDX solution is (c) Diverse Solutions 2026.