|
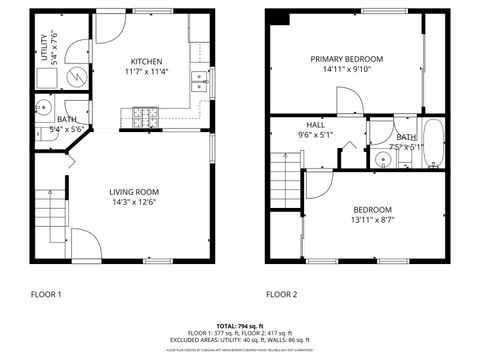
This Hanover Park duplex-style townhome has been thoughtfully updated throughout, offering a clean, modern feel with all the major improvements already completed for you. The home features fresh interior paint (Oct 2025), remodeled bathrooms, and brand-new stainless steel appliances (refrigerator, dishwasher, stove, washer, and dryer). Essential mechanical updates include a new furnace and HVAC system installed in Sept 2025 and all-new energy-efficient windows added in November 2025, improving comfort and efficiency. Located within the District 93 and Glenbard 87 school districts, the home is close to parks, shopping, dining, the Hanover Park Metra station, and I-390. With no HOA fees, you'll enjoy the freedom and flexibility of homeownership without added restrictions. Every major update comes with an active manufacturer warranty or transferable warranty, providing valuable peace of mind.
| DAYS ON MARKET | 20 | LAST UPDATED | 1/20/2026 |
|---|---|---|---|
| YEAR BUILT | 1982 | COMMUNITY | Hanover Park |
| COUNTY | DuPage | STATUS | Conditional |
| PROPERTY TYPE(S) | Condo/Townhouse/Co-Op |
| School District | Glenbard East High School |
|---|---|
| Elementary School | Elsie Johnson Elementary School |
| Jr. High School | Stratford Middle School |
| High School | Glenbard East High School |
| ADDITIONAL DETAILS | |
| AIR | Central Air |
|---|---|
| AIR CONDITIONING | Yes |
| AREA | Hanover Park |
| BASEMENT | None |
| CONSTRUCTION | Frame, Vinyl Siding |
| HEAT | Natural Gas |
| LOT | 0 |
| LOT DIMENSIONS | 100x35 |
| PARKING | Asphalt |
| SEWER | Public Sewer |
| STORIES | 2 |
| TAXES | 4785 |
MORTGAGE CALCULATOR
TOTAL MONTHLY PAYMENT
0
P
I
*Estimate only
| SATELLITE VIEW |
| / | |
We respect your online privacy and will never spam you. By submitting this form with your telephone number
you are consenting for Humderto
Garcia to contact you even if your name is on a Federal or State
"Do not call List".
Listed with eXp Realty
The data relating to real estate for sale on this web site comes in part from the Broker ReciprocitySM Program of MRED. All real estate listings are marked with the Broker ReciprocitySM logo or the MRED Broker ReciprocitySM thumbnail logo (a little black house) and detailed information about them includes the name of the listing brokers.
The broker providing these data believes them to be correct, but advises interested parties to confirm them before relying on them in a purchase decision.
Copyright 2026 MRED. All rights reserved.

The broker providing these data believes them to be correct, but advises interested parties to confirm them before relying on them in a purchase decision.
Copyright 2026 MRED. All rights reserved.
This IDX solution is (c) Diverse Solutions 2026.