|
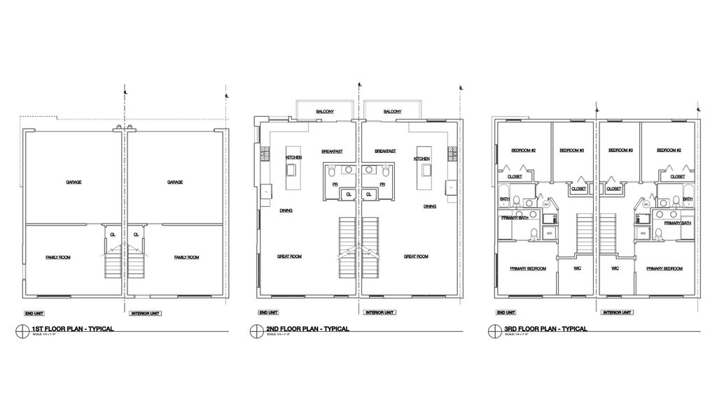
Phase 1 of the Beloit Collection is officially move in ready! Certificate of Occupancy is ready on the first 5 luxury townhome residences designed by SK Design Group. Each thoughtful floor plan consists of 3 beds, 2.5 baths that create nearly 2,289 square feet of living space. Each home has an additional den space that can serve as a family room, additional eat-in kitchen, outdoor space and a 2 car garage.The Beloit Collection incorporates sleek finishes, while offering functionality and comfort. Some of the luxury features include 9-inch wide plank flooring, a custom tri-color kitchen, LG appliance package, and 9-foot ceilings throughout. SK Design worked diligently with Studio 41, Elm Surfaces and other vendors to hand select all plumbing fixtures, stone selections and tile design.The exterior features Hardie siding, Rehau Tilt-Turn windows, multiple private outdoor spaces and an attached 2-car garage. Conveniently located across the street from Field-Stevenson Elementary School, blocks away from the Park District of Forest Park. This incredible park gives our boutique community access to tennis, pickleball, playgrounds, softball leagues, The Roos Recreation Center and so much more. This well-connected, suburban community offers tranquility away from busy living while being conveniently located near major expressways and public transport for quick access to Downtown Chicago.
| DAYS ON MARKET | 19 | LAST UPDATED | 1/14/2026 |
|---|---|---|---|
| YEAR BUILT | 2025 | COMMUNITY | Forest Park |
| GARAGE SPACES | 2.0 | COUNTY | Cook |
| STATUS | Active | PROPERTY TYPE(S) | Condo/Townhouse/Co-Op |
| ADDITIONAL DETAILS | |
| AIR | Central Air |
|---|---|
| AIR CONDITIONING | Yes |
| AREA | Forest Park |
| BASEMENT | None |
| CONSTRUCTION | Vinyl Siding |
| EXTERIOR | Balcony |
| GARAGE | Attached Garage, Yes |
| HEAT | Natural Gas |
| LOT | 0 |
| LOT DIMENSIONS | 000 |
| PARKING | Attached, Garage |
| SEWER | Public Sewer |
| STORIES | 3 |
| WATER | Public |
MORTGAGE CALCULATOR
TOTAL MONTHLY PAYMENT
0
P
I
*Estimate only
| SATELLITE VIEW |
| / | |
We respect your online privacy and will never spam you. By submitting this form with your telephone number
you are consenting for Humderto
Garcia to contact you even if your name is on a Federal or State
"Do not call List".
Listed with Compass
The data relating to real estate for sale on this web site comes in part from the Broker ReciprocitySM Program of MRED. All real estate listings are marked with the Broker ReciprocitySM logo or the MRED Broker ReciprocitySM thumbnail logo (a little black house) and detailed information about them includes the name of the listing brokers.
The broker providing these data believes them to be correct, but advises interested parties to confirm them before relying on them in a purchase decision.
Copyright 2026 MRED. All rights reserved.

The broker providing these data believes them to be correct, but advises interested parties to confirm them before relying on them in a purchase decision.
Copyright 2026 MRED. All rights reserved.
This IDX solution is (c) Diverse Solutions 2026.