|
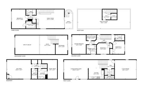
This stunning new construction custom home is truly one-of-a-kind-not just on its block, but across the entire neighborhood. Featuring a striking exterior design that looks as if it belongs on the pages of an architectural design magazine, this home immediately stands apart. Its most rare feature is a full third floor with a private rooftop deck and breathtaking Chicago skyline views, a distinction no other home nearby can claim. Offering 4 bedrooms, 4.1 bathrooms, multiple outdoor spaces, and an attached 2-car garage pre-wired for EV charging, this home combines luxury sleek design, sophisticated finishes, and smart functionality for modern city living. Step inside to soaring 13-foot ceilings, sun-drenched interiors, and floor-to-ceiling windows that flood the open layout with natural light. Hardwood flooring flows throughout the home, while formal living and dining spaces create an elegant yet welcoming atmosphere. At the heart of the main level is the chef's kitchen, complete with imported European cabinetry, quartz countertops, and top-of-the-line appliances. The living space extends seamlessly to the garage rooftop deck, perfect for entertaining or al fresco dining. The primary suite is your private retreat, featuring a spa-inspired bath with a steam shower, rain head, body sprays, and a dual vanity. Two additional bedrooms share a beautifully designed full bath with sleek tilework and tub/shower. The top floor is a showstopper-boasting a spacious guest suite with an en-suite bath, a rec room with wet bar, laundry, and access to the rooftop oasis where skyline views set the perfect backdrop.The lower level offers even more flexibility with a large family or media room, a full bathroom, and a second laundry space. Located in the heart of West Town, you'll enjoy proximity to neighborhood favorites like Publican Bakery, Beatnik, Breakfast House, Forbidden Root, and countless boutiques, breweries, and coffee shops-with quick access to public transit and downtown Chicago. This home is the ultimate blend of architectural beauty, functional design, and rare luxury in one of Chicago's most dynamic communities.New developments are popping up everywhere - but none compare to the unbelievable value of this luxury home. Thoughtfully designed with beautiful finishes, spacious layouts, and attention to every detail, this residence delivers the perfect balance of elegance and comfort in one of Chicago's most desirable locations.
| DAYS ON MARKET | 20 | LAST UPDATED | 1/14/2026 |
|---|---|---|---|
| YEAR BUILT | 2025 | COMMUNITY | CHI - West Town |
| GARAGE SPACES | 2.0 | COUNTY | Cook |
| STATUS | Active | PROPERTY TYPE(S) | Single Family |
| Elementary School | Talcott Elementary School |
|---|
| ADDITIONAL DETAILS | |
| AIR | Central Air, Zoned |
|---|---|
| AIR CONDITIONING | Yes |
| APPLIANCES | Dishwasher, Disposal, Microwave, Range, Range Hood, Refrigerator |
| AREA | CHI - West Town |
| BASEMENT | Daylight, Finished, Storage Space, Sump Pump, Yes |
| CONSTRUCTION | Other |
| GARAGE | Attached Garage, Yes |
| HEAT | Natural Gas |
| LOT | 0 |
| LOT DIMENSIONS | 23 X 80 |
| PARKING | Heated Garage, Attached, Garage |
| SEWER | Public Sewer |
| WATER | Public |
MORTGAGE CALCULATOR
TOTAL MONTHLY PAYMENT
0
P
I
*Estimate only
| SATELLITE VIEW |
| / | |
We respect your online privacy and will never spam you. By submitting this form with your telephone number
you are consenting for Humderto
Garcia to contact you even if your name is on a Federal or State
"Do not call List".
Listed with Compass
The data relating to real estate for sale on this web site comes in part from the Broker ReciprocitySM Program of MRED. All real estate listings are marked with the Broker ReciprocitySM logo or the MRED Broker ReciprocitySM thumbnail logo (a little black house) and detailed information about them includes the name of the listing brokers.
The broker providing these data believes them to be correct, but advises interested parties to confirm them before relying on them in a purchase decision.
Copyright 2026 MRED. All rights reserved.

The broker providing these data believes them to be correct, but advises interested parties to confirm them before relying on them in a purchase decision.
Copyright 2026 MRED. All rights reserved.
This IDX solution is (c) Diverse Solutions 2026.