|
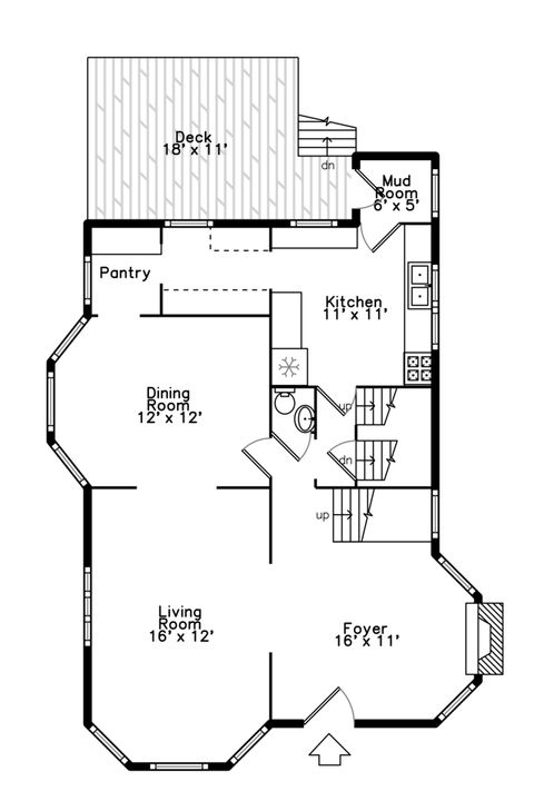
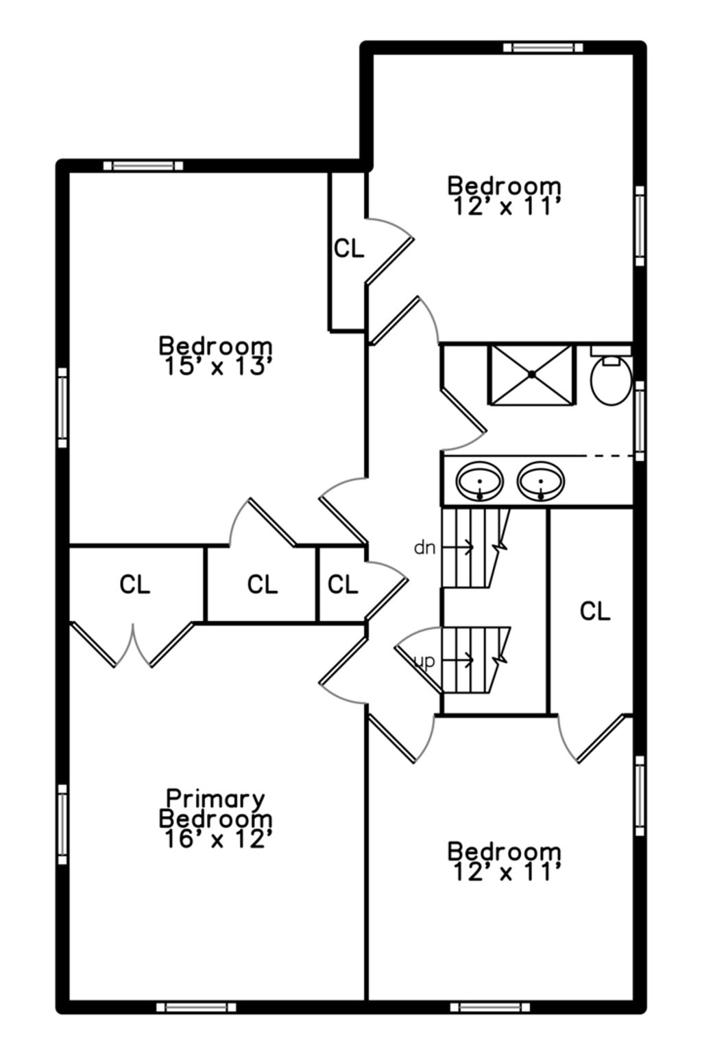
Welcome to 415 N Harvey! This is a 5 bed, 2.5 bath situated on an oversized 50x170 lot with tons of updates and improvements while maintaining that classic Oak Park charm! Step inside and you're welcomed to a combined living and dining area that is perfect for hosting and entertaining. The kitchen features a 2024 dishwasher, 2022 microwave, newly painted cabinets and 2024 backsplash. Once you step out of the kitchen, through the mudroom, and into the backyard, you will be greeted to one the largest backyards in the area! The standalone garage and basketball court was constructed in 2021. Imagine hosting large groups and parties during the warm spring and summer days! The second floor features four bedrooms and a full bath with soaking tub. One small flight upstairs leads you to a completely finished attic with additional storage. This space has its own dedicated heating source and is absolutely perfect for a WFH/office space. The finished walkout basement has a fifth bedroom - perfect for guests - along with a full bathroom also with a soaking tub. Additional upgrades throughout the home include a tankless water heater (2025), newer front porch (2022), remodeled first floor powder room (2025), all newer fencing (2020), SpacePak cooling system (2020), new electrical wiring in living, dining, foyer, and attic (2022), and all 34 windows were replaced in 2020 that includes a transferrable 20 year manufacturing warranty. This home is an entertainer's dream and won't last long!
| DAYS ON MARKET | 17 | LAST UPDATED | 1/17/2026 |
|---|---|---|---|
| YEAR BUILT | 1902 | COMMUNITY | Oak Park |
| GARAGE SPACES | 2.0 | COUNTY | Cook |
| STATUS | Conditional | PROPERTY TYPE(S) | Single Family |
| ADDITIONAL DETAILS | |
| AIR | Central Air |
|---|---|
| AIR CONDITIONING | Yes |
| APPLIANCES | Dishwasher, Disposal, Dryer, Freezer, Gas Cooktop, Microwave, Range, Refrigerator, Washer |
| AREA | Oak Park |
| BASEMENT | Exterior Entry, Finished, Walk-Out Access, Yes |
| CONSTRUCTION | Frame |
| FIREPLACE | Yes |
| GARAGE | Yes |
| HEAT | Hot Water, Natural Gas |
| INTERIOR | Entrance Foyer |
| LOT | 8551 sq ft |
| LOT DIMENSIONS | 50 X 171 |
| PARKING | Garage Door Opener, Detached, Garage |
| SEWER | Public Sewer |
| STYLE | American 4-Sq. |
| TAXES | 16907 |
| WATER | Public |
MORTGAGE CALCULATOR
TOTAL MONTHLY PAYMENT
0
P
I
*Estimate only
| SATELLITE VIEW |
| / | |
We respect your online privacy and will never spam you. By submitting this form with your telephone number
you are consenting for Humderto
Garcia to contact you even if your name is on a Federal or State
"Do not call List".
Listed with High Fidelity Realty
The data relating to real estate for sale on this web site comes in part from the Broker ReciprocitySM Program of MRED. All real estate listings are marked with the Broker ReciprocitySM logo or the MRED Broker ReciprocitySM thumbnail logo (a little black house) and detailed information about them includes the name of the listing brokers.
The broker providing these data believes them to be correct, but advises interested parties to confirm them before relying on them in a purchase decision.
Copyright 2026 MRED. All rights reserved.

The broker providing these data believes them to be correct, but advises interested parties to confirm them before relying on them in a purchase decision.
Copyright 2026 MRED. All rights reserved.
This IDX solution is (c) Diverse Solutions 2026.