|
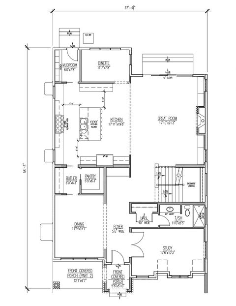
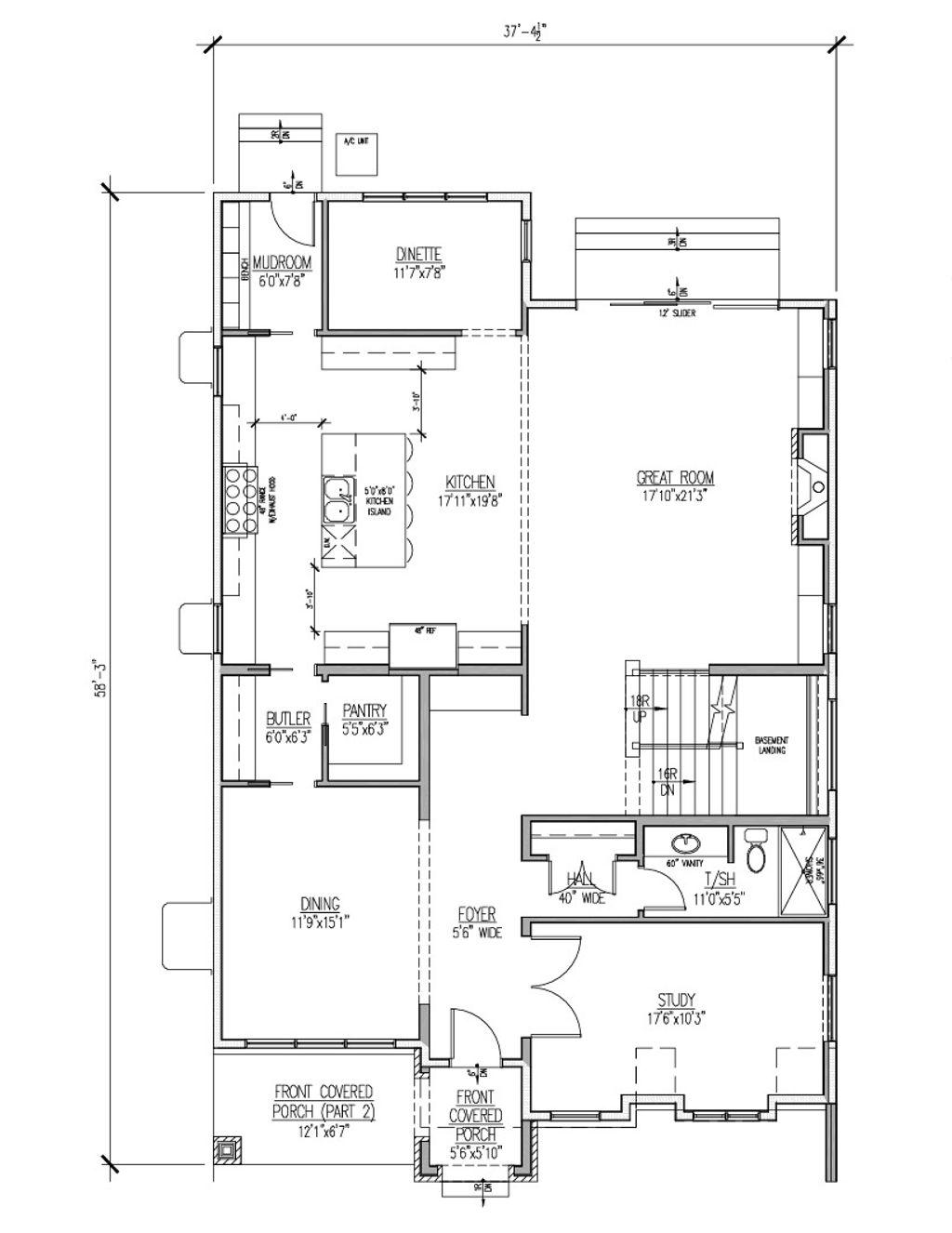
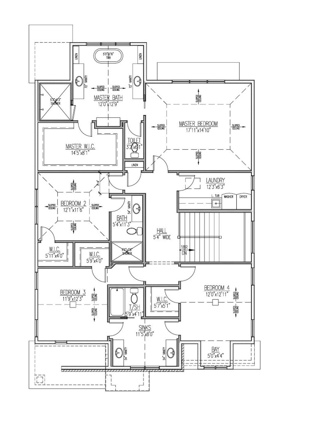
CONSTRUCTION IS UNDERWAY with Fall 2026 Delivery. Experience luxury NEW CONSTRUCTION just steps from the vibrant downtown La Grange! This beautifully crafted 5-bedroom, 4-bath home offers both elegance and convenience, only blocks from shopping, dining, and the Metra line for easy commuting. The first floor features a versatile front room perfect as a guest room or home office, as well as a formal dining room for entertaining. The heart of the home is the chef-inspired kitchen that opens seamlessly to the family room and relax in the sunroom looking out to an expansive backyard. The kitchen will be complete with high-end Wolf and Sub-Zero appliances, a spacious butler's pantry and walk-in pantry. A thoughtfully designed mudroom off the back entry adds everyday convenience. Upstairs, you'll find four additional bedrooms, each with vaulted ceilings. The primary suite is a private oasis, offering a spa-like bathroom and generous walk-in closet. With a conveniently located laundry room on the upper level, daily tasks are a breeze. This exceptional home offers luxurious finishes, with time to still customize, a thoughtful layout, and unbeatable location-everything you need for modern La Grange living!
| DAYS ON MARKET | 109 | LAST UPDATED | 2/13/2026 |
|---|---|---|---|
| YEAR BUILT | 2026 | COMMUNITY | La Grange |
| GARAGE SPACES | 2.0 | COUNTY | Cook |
| STATUS | Conditional | PROPERTY TYPE(S) | Single Family |
| School District | Lyons Twp High School |
|---|---|
| Elementary School | Cossitt Avenue Elementary School |
| Jr. High School | Park Junior High School |
| High School | Lyons Twp High School |
| ADDITIONAL DETAILS | |
| AIR | Central Air |
|---|---|
| AIR CONDITIONING | Yes |
| APPLIANCES | Dishwasher, Disposal, Microwave, Range |
| AREA | La Grange |
| BASEMENT | Bath/Stubbed, Full, Unfinished, Yes |
| CONSTRUCTION | Brick, Stucco |
| FIREPLACE | Yes |
| GARAGE | Yes |
| HEAT | Natural Gas |
| INTERIOR | Cathedral Ceiling(s), In-Law Floorplan, Pantry, Walk-In Closet(s) |
| LOT | 0 |
| LOT DIMENSIONS | 50X204 |
| PARKING | Concrete, Garage Door Opener, Detached, Garage |
| SEWER | Public Sewer |
| TAXES | 5296.94 |
MORTGAGE CALCULATOR
TOTAL MONTHLY PAYMENT
0
P
I
*Estimate only
| SATELLITE VIEW |
| / | |
We respect your online privacy and will never spam you. By submitting this form with your telephone number
you are consenting for Humderto
Garcia to contact you even if your name is on a Federal or State
"Do not call List".
Listed with Jameson Sotheby's International Realty
The data relating to real estate for sale on this web site comes in part from the Broker ReciprocitySM Program of MRED. All real estate listings are marked with the Broker ReciprocitySM logo or the MRED Broker ReciprocitySM thumbnail logo (a little black house) and detailed information about them includes the name of the listing brokers.
The broker providing these data believes them to be correct, but advises interested parties to confirm them before relying on them in a purchase decision.
Copyright 2026 MRED. All rights reserved.

The broker providing these data believes them to be correct, but advises interested parties to confirm them before relying on them in a purchase decision.
Copyright 2026 MRED. All rights reserved.
This IDX solution is (c) Diverse Solutions 2026.