|
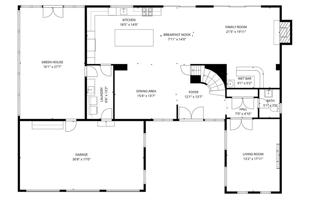
Nestled in the highly sought-after, award-winning Stevenson High School district, this beautifully updated 4-bedroom, 3.1-bath home combines timeless design with modern luxury. Completely renovated with high-quality finishes and thoughtful updates, this residence offers both elegance and comfort throughout. The home boasts a 2022 custom kitchen, remodeled bathrooms completed in 2021, and a newer roof installed in 2018, ensuring peace of mind and move-in-ready living. This beautifully maintained residence offers an ideal blend of elegance, functionality, and comfort, perfect for both everyday living and entertaining. As you step through the front door, you're greeted by a grand two-story foyer that sets the tone for the home's spacious and inviting layout. To your left, the formal dining room offers a perfect space for family gatherings or dinner parties. The living room exudes warmth with its cozy fireplace and large windows that fill the space with natural light. The heart of the home is the open-concept kitchen, thoughtfully designed with a large island, ample cabinetry for storage, and sleek stainless-steel appliances. A bright and airy eating area offers exterior access to the deck, creating an easy flow between indoor and outdoor living. Just off the kitchen, the expansive family room provides a warm and inviting atmosphere, highlighted by a second fireplace and a convenient wet bar-perfect for entertaining or family movie nights. The main level also includes a well-equipped laundry room, a stylish half bath, and a delightful greenhouse-an unexpected feature that brings the outdoors in and provides a serene space for your favorite plants or quiet reflection. Upstairs, the luxurious primary suite is your private retreat, featuring a spacious walk-in closet and a spa-like ensuite bathroom with a double vanity, soaking tub, and separate shower. Three additional generously sized bedrooms and a full hallway bath complete the second level, providing ample space for family members or guests. The fully finished lower level adds incredible versatility, offering a second kitchen, a large recreational area with a fireplace, a full bath, and abundant storage space. Step outside to the beautiful backyard, where a large deck overlooks a peaceful pond-ideal for outdoor dining, summer barbecues, or simply relaxing while taking in the serene view. Don't miss the opportunity to make this impressive property your new home.
| DAYS ON MARKET | 16 | LAST UPDATED | 1/30/2026 |
|---|---|---|---|
| TRACT | Country Club Estates | YEAR BUILT | 1980 |
| COMMUNITY | Hawthorn Woods / Lake Zurich / Kildeer / Long Gro | GARAGE SPACES | 3.0 |
| COUNTY | Lake | STATUS | Active |
| PROPERTY TYPE(S) | Single Family |
| School District | Adlai E Stevenson High School |
|---|---|
| Elementary School | Kildeer Countryside Elementary S |
| Jr. High School | Woodlawn Middle School |
| High School | Adlai E Stevenson High School |
| PRICE HISTORY | |
| Prior to Jan 30, '26 | $1,299,000 |
|---|---|
| Jan 30, '26 - Today | $1,250,000 |
| ADDITIONAL DETAILS | |
| AIR | Ceiling Fan(s), Central Air, Zoned |
|---|---|
| AIR CONDITIONING | Yes |
| APPLIANCES | Bar Fridge, Dishwasher, Dryer, Humidifier, Microwave, Range, Range Hood, Stainless Steel Appliance(s), Washer, Water Softener |
| AREA | Hawthorn Woods / Lake Zurich / Kildeer / Long Gro |
| BASEMENT | Finished, Full, Sump Pump, Yes |
| CONSTRUCTION | Brick |
| EXTERIOR | Balcony, Barbecue, Outdoor Grill |
| FIREPLACE | Yes |
| GARAGE | Attached Garage, Yes |
| HEAT | Forced Air, Natural Gas, Zoned |
| INTERIOR | Built-in Features, Entrance Foyer, Open Floorplan, Walk-In Closet(s), Wet Bar |
| LOT | 0.94 acre(s) |
| LOT DESCRIPTION | Landscaped, On Golf Course |
| LOT DIMENSIONS | 417x193x288x50 |
| PARKING | Circular Driveway, Garage Door Opener, Attached, Garage, Driveway |
| SEWER | Septic Tank |
| SUBDIVISION | Country Club Estates |
| TAXES | 20222.22 |
| VIEW | Yes |
| VIEW DESCRIPTION | Water |
| WATER | Well |
| WATERFRONT DESCRIPTION | Pond |
MORTGAGE CALCULATOR
TOTAL MONTHLY PAYMENT
0
P
I
*Estimate only
| SATELLITE VIEW |
| / | |
We respect your online privacy and will never spam you. By submitting this form with your telephone number
you are consenting for Humderto
Garcia to contact you even if your name is on a Federal or State
"Do not call List".
Listed with RE/MAX Top Performers
The data relating to real estate for sale on this web site comes in part from the Broker ReciprocitySM Program of MRED. All real estate listings are marked with the Broker ReciprocitySM logo or the MRED Broker ReciprocitySM thumbnail logo (a little black house) and detailed information about them includes the name of the listing brokers.
The broker providing these data believes them to be correct, but advises interested parties to confirm them before relying on them in a purchase decision.
Copyright 2026 MRED. All rights reserved.

The broker providing these data believes them to be correct, but advises interested parties to confirm them before relying on them in a purchase decision.
Copyright 2026 MRED. All rights reserved.
This IDX solution is (c) Diverse Solutions 2026.