|
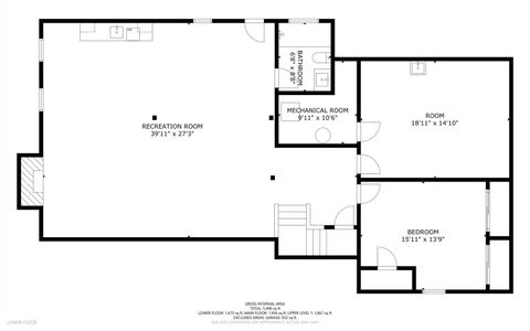
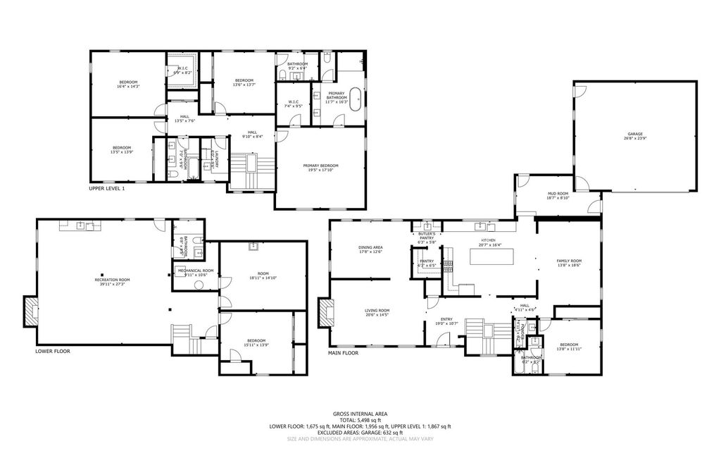
Impeccably built home on an impressive 100' X 175' lot in the desirable and vibrant Oak Park community! Meticulously designed to perfection, this residence stands as a testament to luxurious living and is situated steps from Lindberg Park. Mann school district. Approximately 5700 sq feet of finished living space, including the basement. Six spacious bedrooms, four on the upper level, one on the main level and one in the basement. Five full baths and one half bath. Gourmet kitchen with large walk-in pantry and a butler's pantry leading to the separate formal dining room. Mudroom off the kitchen leading to a spacious attached garage. Finished walkout basement with a gas fireplace, a wet bar and a full bath. Fire sprinkler system. Dual-zoned HVAC system. White oak flooring throughout the main and upper levels. Marvin windows. Large backyard.
| DAYS ON MARKET | 37 | LAST UPDATED | 2/5/2026 |
|---|---|---|---|
| YEAR BUILT | 2025 | COMMUNITY | Oak Park |
| GARAGE SPACES | 2.0 | COUNTY | Cook |
| STATUS | Active | PROPERTY TYPE(S) | Single Family |
| School District | Oak Park & River Forest High Sch |
|---|---|
| Elementary School | Horace Mann Elementary School |
| High School | Oak Park & River Forest High Sch |
| PRICE HISTORY | |
| Prior to Feb 5, '26 | $1,950,000 |
|---|---|
| Feb 5, '26 - Today | $1,895,000 |
| ADDITIONAL DETAILS | |
| AIR | Central Air, Dual |
|---|---|
| AIR CONDITIONING | Yes |
| APPLIANCES | Dishwasher, Microwave, Range, Range Hood, Refrigerator, Stainless Steel Appliance(s), Wine Refrigerator |
| AREA | Oak Park |
| BASEMENT | Finished, Full, Walk-Out Access, Yes |
| CONSTRUCTION | Brick, Wood Siding |
| FIREPLACE | Yes |
| GARAGE | Attached Garage, Yes |
| HEAT | Forced Air, Natural Gas |
| INTERIOR | Entrance Foyer, High Ceilings, Pantry, Vaulted Ceiling(s), Walk-In Closet(s), Wet Bar |
| LOT | 0 |
| LOT DIMENSIONS | 100 X 175 |
| PARKING | Concrete, Garage Door Opener, Attached, Garage, Driveway |
| SEWER | Public Sewer |
| TAXES | 20748.24 |
| WATER | Public |
MORTGAGE CALCULATOR
TOTAL MONTHLY PAYMENT
0
P
I
*Estimate only
| SATELLITE VIEW |
| / | |
We respect your online privacy and will never spam you. By submitting this form with your telephone number
you are consenting for Humderto
Garcia to contact you even if your name is on a Federal or State
"Do not call List".
Listed with Luna Realty Group
The data relating to real estate for sale on this web site comes in part from the Broker ReciprocitySM Program of MRED. All real estate listings are marked with the Broker ReciprocitySM logo or the MRED Broker ReciprocitySM thumbnail logo (a little black house) and detailed information about them includes the name of the listing brokers.
The broker providing these data believes them to be correct, but advises interested parties to confirm them before relying on them in a purchase decision.
Copyright 2026 MRED. All rights reserved.

The broker providing these data believes them to be correct, but advises interested parties to confirm them before relying on them in a purchase decision.
Copyright 2026 MRED. All rights reserved.
This IDX solution is (c) Diverse Solutions 2026.