|
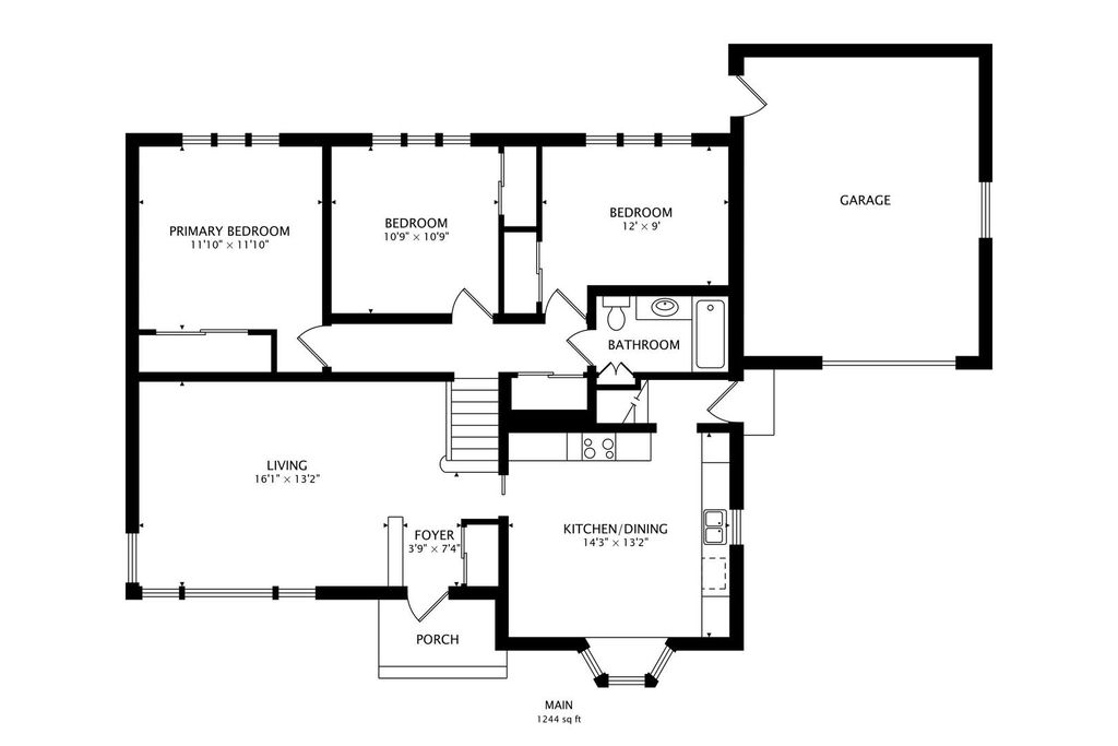
Lovingly maintained by its original owners, this beautifully cared-for home offers 3 bedrooms and 2 full bathrooms with thoughtful updates throughout. Hardwood floors lie beneath the carpeting throughout the second level, where three generously sized bedrooms provide comfortable and versatile living space. The light-filled kitchen has been tastefully renovated with Corian countertops, a Sub-Zero refrigerator, Thermador double oven, pecan cherry cabinets, pull-out pantry, and pull-out cabinet drawers-perfectly blending functionality and style. Andersen windows enhance the bedrooms and kitchen, bringing in abundant natural light. The finished basement expands the home's living area with a spacious recreation room, stunning brick wood-burning fireplace, ample storage and crawlspace, plus a full bathroom with shower. A large laundry room with utility sink completes the lower level. Step outside to a true backyard oasis featuring a beautiful in-ground pool, paver patio, mature perennials, irrigation system, and a fully fenced yard-ideal for entertaining or relaxing. Additional highlights include a one-car garage and a quiet interior street location. All this just a short distance to the Glenview Metra Station, The Glen Town Center, award-winning schools, and vibrant downtown Glenview. A wonderful opportunity in an exceptional location.
| DAYS ON MARKET | 9 | LAST UPDATED | 3/9/2026 |
|---|---|---|---|
| YEAR BUILT | 1957 | COMMUNITY | Glenview / Golf |
| GARAGE SPACES | 1.0 | COUNTY | Cook |
| STATUS | Conditional | PROPERTY TYPE(S) | Single Family |
| School District | Glenbrook South High School |
|---|---|
| Elementary School | Hoffman Elementary School |
| Jr. High School | Springman Middle School |
| High School | Glenbrook South High School |
| ADDITIONAL DETAILS | |
| AIR | Ceiling Fan(s), Central Air |
|---|---|
| AIR CONDITIONING | Yes |
| APPLIANCES | Cooktop, Dishwasher, Disposal, Double Oven, Dryer, Microwave, Washer |
| AREA | Glenview / Golf |
| BASEMENT | Crawl Space, Daylight, Finished, Storage Space, Sump Pump, Yes |
| CONSTRUCTION | Brick, Vinyl Siding |
| FIREPLACE | Yes |
| GARAGE | Attached Garage, Yes |
| HEAT | Forced Air, Natural Gas |
| INTERIOR | Entrance Foyer, Pantry, Walk-In Closet(s) |
| LOT | 9618 sq ft |
| LOT DIMENSIONS | 132 x 74 x 131 x 74 |
| PARKING | Asphalt, Garage Door Opener, Attached, Garage |
| POOL DESCRIPTION | In Ground |
| SEWER | Public Sewer |
| TAXES | 6684 |
| WATER | Public |
MORTGAGE CALCULATOR
TOTAL MONTHLY PAYMENT
0
P
I
*Estimate only
| SATELLITE VIEW |
| / | |
We respect your online privacy and will never spam you. By submitting this form with your telephone number
you are consenting for Humderto
Garcia to contact you even if your name is on a Federal or State
"Do not call List".
Listed with @properties Christie's International Real Estate
The data relating to real estate for sale on this web site comes in part from the Broker ReciprocitySM Program of MRED. All real estate listings are marked with the Broker ReciprocitySM logo or the MRED Broker ReciprocitySM thumbnail logo (a little black house) and detailed information about them includes the name of the listing brokers.
The broker providing these data believes them to be correct, but advises interested parties to confirm them before relying on them in a purchase decision.
Copyright 2026 MRED. All rights reserved.

The broker providing these data believes them to be correct, but advises interested parties to confirm them before relying on them in a purchase decision.
Copyright 2026 MRED. All rights reserved.
This IDX solution is (c) Diverse Solutions 2026.