|
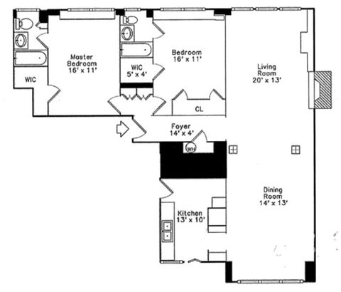
Designer inspired co-op with the charm of the 1920's - live at the corner of Elm and Lake Shore Drive in this elegant 2-bedroom, 2 bath home with the highest level of finishes that was professionally renovated in 2014. A private elevator foyer greets you as you enter through a formal foyer with custom millwork leading to the stunning living room with a gas fireplace with custom built-ins as your focal point. Enjoy the lake views from the bay window. Separate formal dining room is perfectly sized for entertaining. The thoughtfully designed kitchen includes classic white cabinetry, upper & lower, Miele dishwasher, Dacor induction stove/oven, Sub Zero Refrigerator. Gorgeous Tuscan Super White Stone on counters & back wall. Creative butler's pantry for extra storage with glass upper cabinets with lighting. The primary suite includes a generously proportioned updated bath with large shower with frame-less glass surround and crisp Carrera marble. The 2nd bedroom also has a new en suite bath. Live with ease with new AC and, best of all, an in-unit Miele washer and dryer. Other high-end features include a Creston master panel that controls lights, music, and shades in all rooms along with the AC, and some AV. The closet has charging area for electronics and lights up when doors open to make your life simple and easy. This stunning Chicago co-op offers attentive 24-hour door staff, modern fitness gym, common outdoor space, and bike storage. Two pets allowed, no weight limit. Rental parking available next door at 1150 N LSD for $500/month. Walk to Oak Street Beach, world class shopping, five-star dining, parks, playgrounds, public transit and everything the Gold Coast has to offer. Real estate tax is included in the monthly assessment.
| DAYS ON MARKET | 9 | LAST UPDATED | 3/12/2026 |
|---|---|---|---|
| YEAR BUILT | 1924 | COMMUNITY | CHI - Near North Side |
| GARAGE SPACES | 1.0 | COUNTY | Cook |
| STATUS | Active | PROPERTY TYPE(S) | Condo/Townhouse/Co-Op |
| School District | Lincoln Park High School |
|---|---|
| Elementary School | Ogden Elementary |
| Jr. High School | Ogden Elementary |
| High School | Lincoln Park High School |
| PRICE HISTORY | |
| Prior to Mar 12, '26 | $599,000 |
|---|---|
| Mar 12, '26 - Today | $575,000 |
| ADDITIONAL DETAILS | |
| AMENITIES | Electricity, Gas, Insurance, Security, Snow Removal, Water |
|---|---|
| APPLIANCES | Dishwasher, Range, Refrigerator |
| AREA | CHI - Near North Side |
| BASEMENT | None |
| CONSTRUCTION | Brick |
| FIREPLACE | Yes |
| GARAGE | Yes |
| HEAT | Hot Water |
| HOA DUES | 3040 |
| INTERIOR | Built-in Features, Elevator, Entrance Foyer, Walk-In Closet(s) |
| LOT | 0 |
| LOT DIMENSIONS | COMMON |
| PARKING | Off Site, Leased, Detached, Garage |
| SEWER | Public Sewer |
| STORIES | 18 |
| VIEW | Yes |
| VIEW DESCRIPTION | Water |
MORTGAGE CALCULATOR
TOTAL MONTHLY PAYMENT
0
P
I
*Estimate only
| SATELLITE VIEW |
| / | |
We respect your online privacy and will never spam you. By submitting this form with your telephone number
you are consenting for Humderto
Garcia to contact you even if your name is on a Federal or State
"Do not call List".
Listed with @properties Christie's International Real Estate
The data relating to real estate for sale on this web site comes in part from the Broker ReciprocitySM Program of MRED. All real estate listings are marked with the Broker ReciprocitySM logo or the MRED Broker ReciprocitySM thumbnail logo (a little black house) and detailed information about them includes the name of the listing brokers.
The broker providing these data believes them to be correct, but advises interested parties to confirm them before relying on them in a purchase decision.
Copyright 2026 MRED. All rights reserved.

The broker providing these data believes them to be correct, but advises interested parties to confirm them before relying on them in a purchase decision.
Copyright 2026 MRED. All rights reserved.
This IDX solution is (c) Diverse Solutions 2026.