|
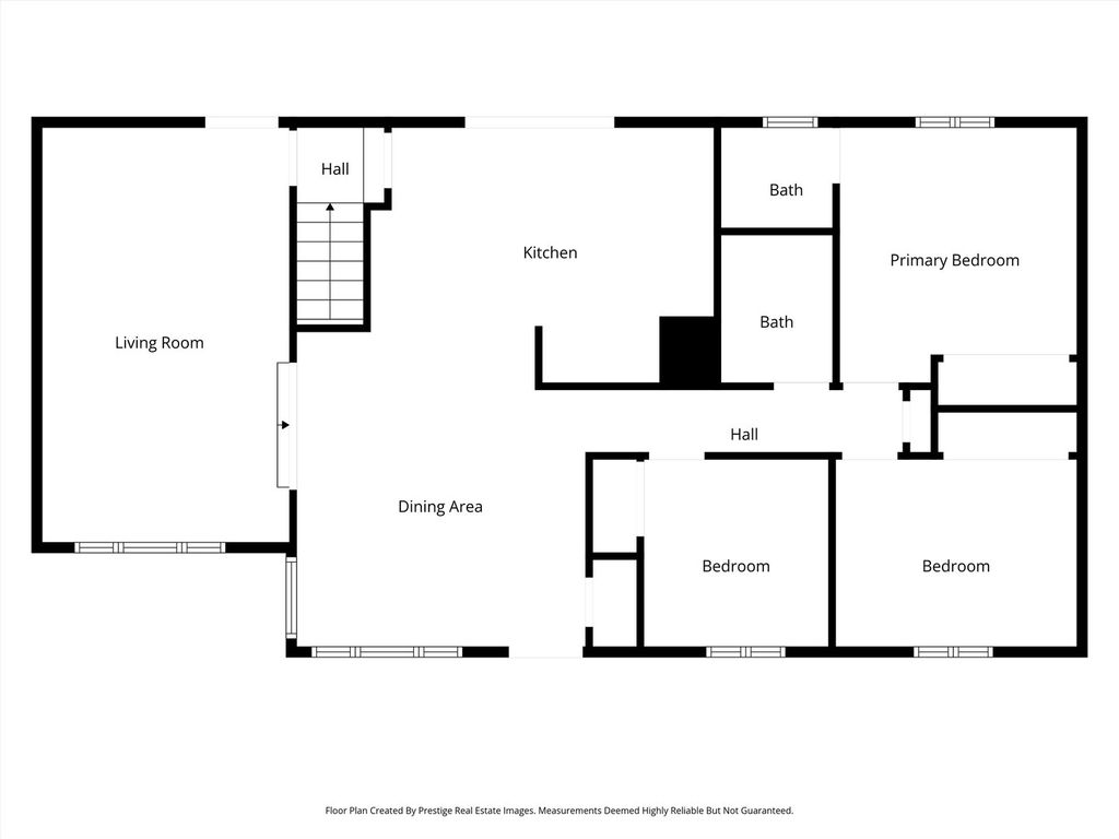
Ranch home located in desirable Fairway Estates. This four-bedroom, 1.5-bath residence offers a functional layout with additional living space in the full basement. The main level features an updated kitchen with an island, providing ample workspace and storage, and flows comfortably into the living and dining areas. Three bedrooms and a full bath are located on the main floor, with the primary bedroom offering an additional half bath for convenience. The finished basement expands the living area with a family room and a fourth bedroom, offering flexibility for guests, a home office, or extended living needs. The remaining basement space provides additional storage, utility, and laundry areas. Exterior highlights include a side drive leading to a 2.5-car garage, a spacious backyard, an above-ground pool, a playset, and a storage shed. The yard offers plenty of room for outdoor enjoyment, entertaining, or gardening. This home presents a solid opportunity for buyers seeking a ranch-style layout with a basement, outdoor space, and practical updates in an established neighborhood. Conveniently located near local amenities, schools, and transportation. Some cosmetic painting may be desired.
| DAYS ON MARKET | 13 | LAST UPDATED | 1/24/2026 |
|---|---|---|---|
| TRACT | Fairway | YEAR BUILT | 1961 |
| COMMUNITY | Orland Park | GARAGE SPACES | 2.5 |
| COUNTY | Cook | STATUS | Conditional |
| PROPERTY TYPE(S) | Single Family |
| ADDITIONAL DETAILS | |
| AIR | Central Air |
|---|---|
| AIR CONDITIONING | Yes |
| AREA | Orland Park |
| BASEMENT | Finished, Full, Yes |
| CONSTRUCTION | Vinyl Siding |
| GARAGE | Yes |
| HEAT | Forced Air, Natural Gas |
| LOT | 0 |
| LOT DIMENSIONS | 82x98x121x131 |
| PARKING | Concrete, Garage Door Opener, Detached, Garage, Driveway |
| POOL DESCRIPTION | Above Ground |
| SEWER | Public Sewer |
| STYLE | Ranch |
| SUBDIVISION | Fairway |
| TAXES | 6507 |
| WATER | Public |
MORTGAGE CALCULATOR
TOTAL MONTHLY PAYMENT
0
P
I
*Estimate only
| SATELLITE VIEW |
| / | |
We respect your online privacy and will never spam you. By submitting this form with your telephone number
you are consenting for Humderto
Garcia to contact you even if your name is on a Federal or State
"Do not call List".
Listed with RE/MAX 10
The data relating to real estate for sale on this web site comes in part from the Broker ReciprocitySM Program of MRED. All real estate listings are marked with the Broker ReciprocitySM logo or the MRED Broker ReciprocitySM thumbnail logo (a little black house) and detailed information about them includes the name of the listing brokers.
The broker providing these data believes them to be correct, but advises interested parties to confirm them before relying on them in a purchase decision.
Copyright 2026 MRED. All rights reserved.

The broker providing these data believes them to be correct, but advises interested parties to confirm them before relying on them in a purchase decision.
Copyright 2026 MRED. All rights reserved.
This IDX solution is (c) Diverse Solutions 2026.