|
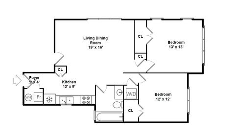
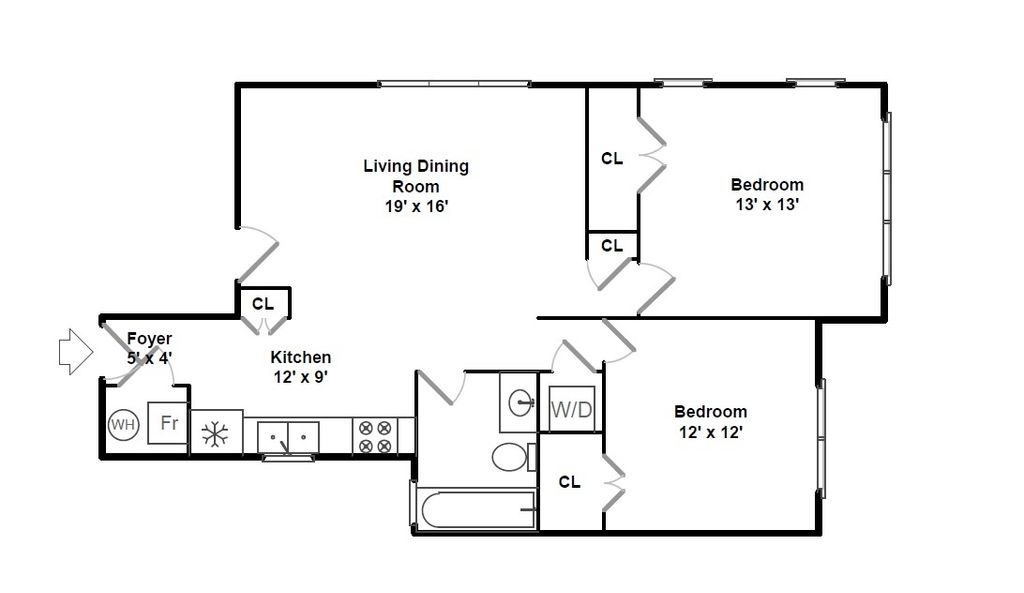
Welcome home to this top-floor unit with no shared walls, offering privacy and abundant natural light. This move-in-ready home features an open floor plan with hardwood floors throughout, two generously sized bedrooms, and one full bathroom updated in 2023. Enjoy the convenience of in-unit laundry (new in 2021) and a beautifully updated kitchen (2023) with granite countertops, 42" cabinets, and stainless steel appliances, including a newer stove (2022) and refrigerator (2023). The unit includes one parking garage spot and additional storage (5x7), along with access to a shared outdoor space in the rear. The building is investor-friendly (rentals allowed) and pet-friendly. Permit street parking ensures ample additional parking options. Ideally located with easy access to the highway, Metra, and the Blue Line-all you have to do is move in! Property is being sold as-is.
| DAYS ON MARKET | 57 | LAST UPDATED | 1/28/2026 |
|---|---|---|---|
| YEAR BUILT | 1924 | COMMUNITY | CHI - Irving Park |
| GARAGE SPACES | 1.0 | COUNTY | Cook |
| STATUS | Conditional | PROPERTY TYPE(S) | Condo/Townhouse/Co-Op |
| ADDITIONAL DETAILS | |
| AIR | Ceiling Fan(s), Central Air |
|---|---|
| AIR CONDITIONING | Yes |
| AMENITIES | Snow Removal |
| APPLIANCES | Dishwasher, Double Oven, Dryer, Freezer, Microwave, Refrigerator, Washer |
| AREA | CHI - Irving Park |
| BASEMENT | None |
| CONSTRUCTION | Brick |
| GARAGE | Yes |
| HEAT | Forced Air, Natural Gas |
| HOA DUES | 365 |
| INTERIOR | Cathedral Ceiling(s), Storage |
| LOT | 0 |
| LOT DIMENSIONS | COMMON |
| PARKING | Garage Door Opener, Detached, Garage |
| SEWER | Public Sewer |
| STORIES | 2 |
| TAXES | 4447.03 |
| UTILITIES | Cable Available |
| WATER | Public |
MORTGAGE CALCULATOR
TOTAL MONTHLY PAYMENT
0
P
I
*Estimate only
| SATELLITE VIEW |
| / | |
We respect your online privacy and will never spam you. By submitting this form with your telephone number
you are consenting for Humderto
Garcia to contact you even if your name is on a Federal or State
"Do not call List".
Listed with Alpine Real Estate Partners In
The data relating to real estate for sale on this web site comes in part from the Broker ReciprocitySM Program of MRED. All real estate listings are marked with the Broker ReciprocitySM logo or the MRED Broker ReciprocitySM thumbnail logo (a little black house) and detailed information about them includes the name of the listing brokers.
The broker providing these data believes them to be correct, but advises interested parties to confirm them before relying on them in a purchase decision.
Copyright 2026 MRED. All rights reserved.

The broker providing these data believes them to be correct, but advises interested parties to confirm them before relying on them in a purchase decision.
Copyright 2026 MRED. All rights reserved.
This IDX solution is (c) Diverse Solutions 2026.