|
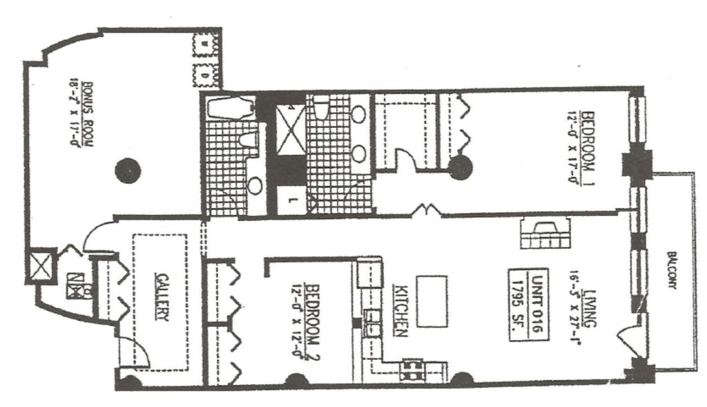
Spacious and stunning 2bed 2bath + bonus room loft located in Randolph Place - Offering 1,795 square feet - this east-facing home showcases river views and abundant natural light throughout the living areas and primary bedroom. The open-concept floor plan features a generous island kitchen with 42" maple cabinetry and granite countertops, seamlessly flowing into the living room highlighted by a gas ventless fireplace with granite surround. Hardwood floors run throughout the home. Additional features include in-unit washer and dryer, ceiling fans, and a private balcony overlooking the river. Both bedrooms are spacious, with the primary suite offering a walk-in closet, ample storage, and an en-suite bath with dual marble vanities. The expansive bonus room provides exceptional flexibility-ideal for a home office, den, third bedroom, wine room, or additional storage. Randolph Place is a full-amenity, pet-friendly building featuring a door person, fitness center, bike room, receiving room, valet/cleaner services, and more. Enjoy a premier downtown location just steps from the Riverwalk, dining, theater, transit, groceries, and the Loop. A perfect urban retreat filled with beautiful morning light. One deeded parking space (P29) is included. Assessment breakdown: unit 815.83, cable/internet 71.55, parking 58.66
| DAYS ON MARKET | 9 | LAST UPDATED | 2/2/2026 |
|---|---|---|---|
| TRACT | Randolph Place | YEAR BUILT | 1910 |
| COMMUNITY | CHI - Near West Side | GARAGE SPACES | 1.0 |
| COUNTY | Cook | STATUS | Conditional |
| PROPERTY TYPE(S) | Condo/Townhouse/Co-Op |
| ADDITIONAL DETAILS | |
| AIR | Central Air |
|---|---|
| AIR CONDITIONING | Yes |
| AMENITIES | Insurance, Internet, Security, Snow Removal, Water |
| APPLIANCES | Dishwasher, Disposal, Dryer, Microwave, Range, Refrigerator, Washer |
| AREA | CHI - Near West Side |
| BASEMENT | None |
| CONSTRUCTION | Brick |
| FIREPLACE | Yes |
| GARAGE | Attached Garage, Yes |
| HEAT | Forced Air, Natural Gas |
| HOA DUES | 946 |
| INTERIOR | Elevator, Granite Counters, Storage, Walk-In Closet(s) |
| LOT | 0 |
| LOT DIMENSIONS | CONDO |
| PARKING | Attached, Garage |
| SEWER | Public Sewer |
| STORIES | 17 |
| SUBDIVISION | Randolph Place |
| TAXES | 9739.09 |
| VIEW | Yes |
| VIEW DESCRIPTION | Water |
| WATER | Public |
| WATERFRONT | Yes |
MORTGAGE CALCULATOR
TOTAL MONTHLY PAYMENT
0
P
I
*Estimate only
| SATELLITE VIEW |
| / | |
We respect your online privacy and will never spam you. By submitting this form with your telephone number
you are consenting for Humderto
Garcia to contact you even if your name is on a Federal or State
"Do not call List".
Listed with Jameson Sotheby's Intl Realty
The data relating to real estate for sale on this web site comes in part from the Broker ReciprocitySM Program of MRED. All real estate listings are marked with the Broker ReciprocitySM logo or the MRED Broker ReciprocitySM thumbnail logo (a little black house) and detailed information about them includes the name of the listing brokers.
The broker providing these data believes them to be correct, but advises interested parties to confirm them before relying on them in a purchase decision.
Copyright 2026 MRED. All rights reserved.

The broker providing these data believes them to be correct, but advises interested parties to confirm them before relying on them in a purchase decision.
Copyright 2026 MRED. All rights reserved.
This IDX solution is (c) Diverse Solutions 2026.