|
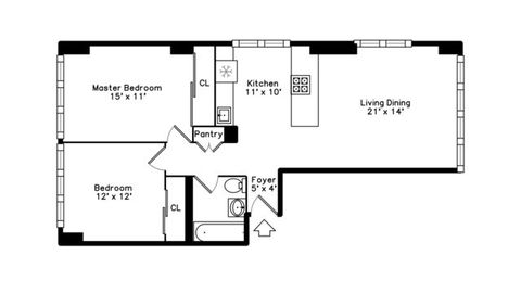
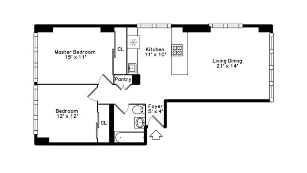
Stunning fully renovated corner 2-bedroom, 1-bath residence with a sleek open-concept layout in the heart of Lakeview. The chef's kitchen features crisp white cabinetry, quartz countertops, stainless steel appliances, and a dramatic waterfall island with seating-perfect for entertaining. Wide-plank flooring flows throughout, creating a bright and modern feel. The spacious living area is filled with natural light from oversized windows and offers beautiful city and neighborhood views. Both bedrooms feature custom closet systems, and the home offers abundant storage with custom closets throughout. Enjoy a beautifully remodeled spa-like bathroom and truly move-in-ready condition. Full-amenity, well-managed building with newly renovated rooftop deck and panoramic lake views, common patio with grills, fitness center, 24-hour door staff, on-site engineer and convenience store. Prime location steps to the lakefront, Red Line, Montrose Beach and Harbor, golf course, running and biking trails, Wrigley Field, Whole Foods, Jewel, and all the dining, shopping, and nightlife of Lakeview and Wrigleyville. Although the monthly assessment may seem high, it covers everything-so there are no additional utility costs. Owners are allowed to rent.
| DAYS ON MARKET | 11 | LAST UPDATED | 1/22/2026 |
|---|---|---|---|
| YEAR BUILT | 1957 | COMMUNITY | CHI - Lake View |
| GARAGE SPACES | 1.0 | COUNTY | Cook |
| STATUS | Active | PROPERTY TYPE(S) | Condo/Townhouse/Co-Op |
| School District | Lake View High School |
|---|---|
| Elementary School | Brenneman Elementary School |
| High School | Lake View High School |
| ADDITIONAL DETAILS | |
| AIR | Wall Unit(s) |
|---|---|
| AIR CONDITIONING | Yes |
| AMENITIES | Electricity, Gas, Insurance, Internet, Snow Removal, Water |
| APPLIANCES | Dishwasher, Microwave, Range, Range Hood, Refrigerator |
| AREA | CHI - Lake View |
| BASEMENT | None |
| CONSTRUCTION | Brick, Concrete |
| GARAGE | Attached Garage, Yes |
| HEAT | Natural Gas |
| HOA DUES | 940 |
| INTERIOR | Elevator |
| LOT | 0 |
| LOT DESCRIPTION | Landscaped |
| LOT DIMENSIONS | COMMON |
| PARKING | Leased, Attached, Garage |
| SEWER | Public Sewer |
| STORIES | 23 |
| TAXES | 2672 |
| VIEW | Yes |
| VIEW DESCRIPTION | Water |
| WATERFRONT | Yes |
MORTGAGE CALCULATOR
TOTAL MONTHLY PAYMENT
0
P
I
*Estimate only
| SATELLITE VIEW |
| / | |
We respect your online privacy and will never spam you. By submitting this form with your telephone number
you are consenting for Humderto
Garcia to contact you even if your name is on a Federal or State
"Do not call List".
Listed with RE/MAX Premier
The data relating to real estate for sale on this web site comes in part from the Broker ReciprocitySM Program of MRED. All real estate listings are marked with the Broker ReciprocitySM logo or the MRED Broker ReciprocitySM thumbnail logo (a little black house) and detailed information about them includes the name of the listing brokers.
The broker providing these data believes them to be correct, but advises interested parties to confirm them before relying on them in a purchase decision.
Copyright 2026 MRED. All rights reserved.

The broker providing these data believes them to be correct, but advises interested parties to confirm them before relying on them in a purchase decision.
Copyright 2026 MRED. All rights reserved.
This IDX solution is (c) Diverse Solutions 2026.