|
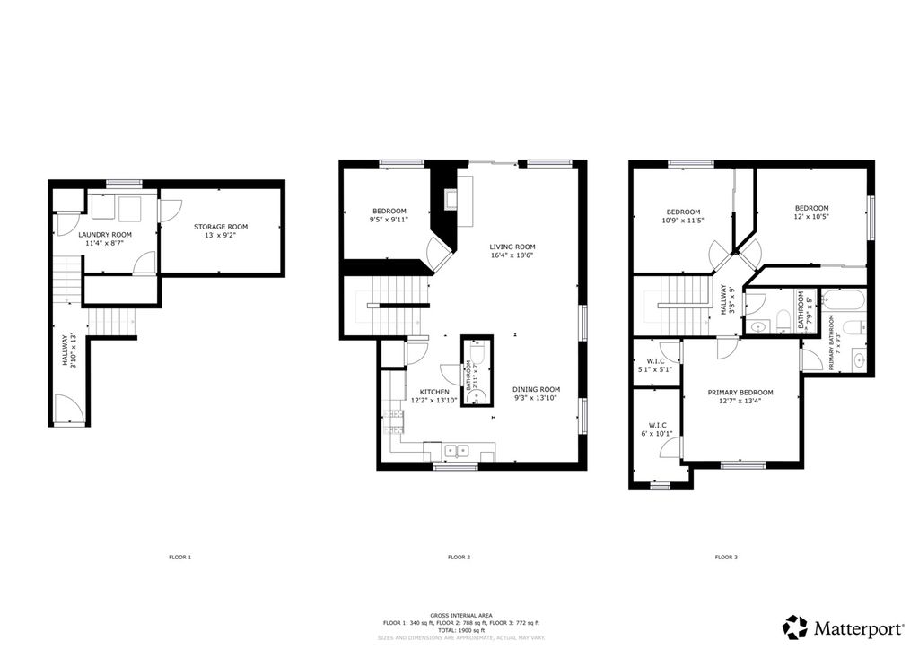
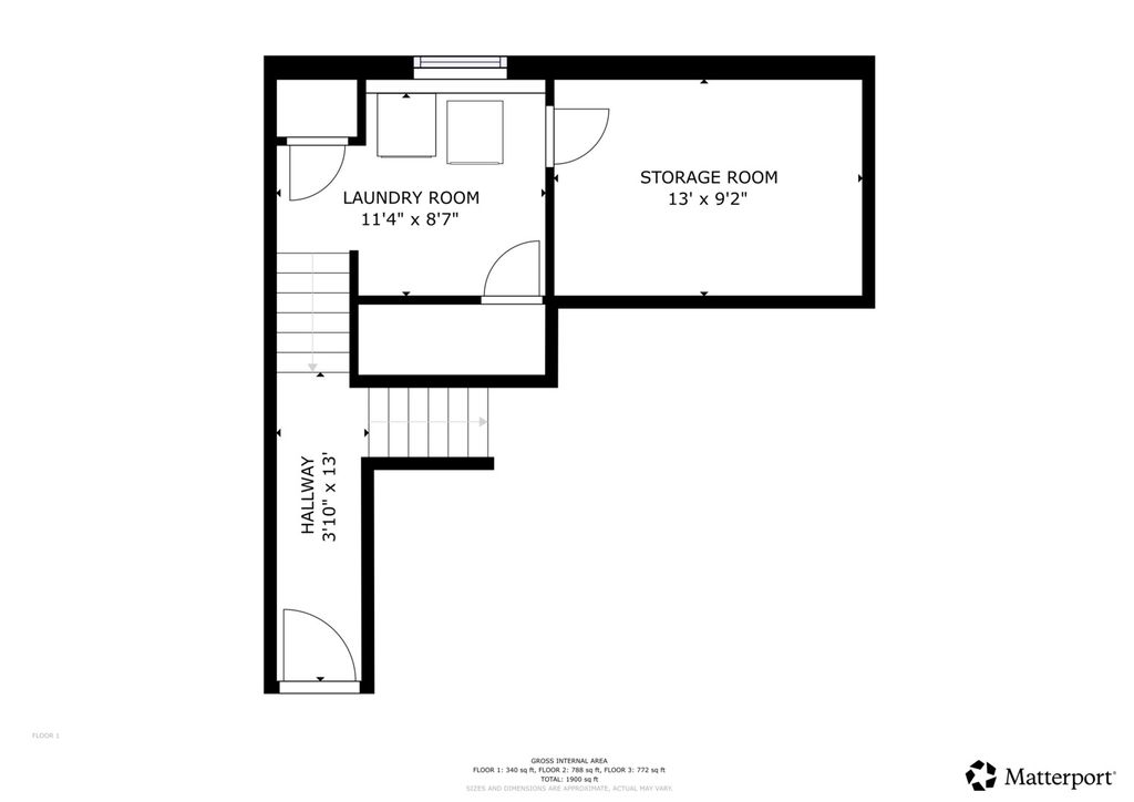
Welcome to this bright and spacious end-unit townhome offering one of the largest floor plans in the community. With 3 bedrooms and 2.5 bathrooms. This well-maintained home delivers comfort, flexibility, and low-maintenance living in a desirable Streamwood location. The main level features an open, inviting layout, crown molding, and a cozy fireplace anchoring the living and dining areas. A first-floor office or den provides the perfect space for remote work, a playroom, or a quiet retreat. The kitchen is well-appointed with stainless steel appliances and generous cabinetry, ideal for everyday living and entertaining. Step outside onto the balcony and enjoy. Upstairs, the primary suite offers a private bath and ample space to unwind. Two additional large bedrooms and full bathroom. Other highlights include lower-level laundry, abundant storage, and a large two-car attached garage. Excellent location situated near shopping, dining, schools, parks, a pond, and walking paths, this home combines space, privacy, and convenience-don't miss out!
| DAYS ON MARKET | 10 | LAST UPDATED | 1/28/2026 |
|---|---|---|---|
| TRACT | Southwicke | YEAR BUILT | 2000 |
| COMMUNITY | Streamwood | GARAGE SPACES | 2.0 |
| COUNTY | Cook | STATUS | Conditional |
| PROPERTY TYPE(S) | Condo/Townhouse/Co-Op |
| School District | Streamwood High School |
|---|---|
| Elementary School | Hilltop Elementary School |
| Jr. High School | Canton Middle School |
| High School | Streamwood High School |
| ADDITIONAL DETAILS | |
| AIR | Central Air |
|---|---|
| AIR CONDITIONING | Yes |
| AMENITIES | Insurance, Snow Removal |
| APPLIANCES | Dishwasher, Dryer, Range, Refrigerator, Washer |
| AREA | Streamwood |
| BASEMENT | Daylight, Partial, Partially Finished, Yes |
| CONSTRUCTION | Aluminum Siding, Brick |
| EXTERIOR | Balcony |
| FIREPLACE | Yes |
| GARAGE | Attached Garage, Yes |
| HEAT | Forced Air, Natural Gas |
| HOA DUES | 220 |
| INTERIOR | Storage |
| LOT | 0 |
| LOT DESCRIPTION | Landscaped |
| LOT DIMENSIONS | COMMON |
| PARKING | Asphalt, Garage Door Opener, Attached, Garage |
| SEWER | Public Sewer |
| STORIES | 3 |
| SUBDIVISION | Southwicke |
| TAXES | 6572 |
| WATER | Public |
MORTGAGE CALCULATOR
TOTAL MONTHLY PAYMENT
0
P
I
*Estimate only
| SATELLITE VIEW |
| / | |
We respect your online privacy and will never spam you. By submitting this form with your telephone number
you are consenting for Humderto
Garcia to contact you even if your name is on a Federal or State
"Do not call List".
Listed with xr realty
The data relating to real estate for sale on this web site comes in part from the Broker ReciprocitySM Program of MRED. All real estate listings are marked with the Broker ReciprocitySM logo or the MRED Broker ReciprocitySM thumbnail logo (a little black house) and detailed information about them includes the name of the listing brokers.
The broker providing these data believes them to be correct, but advises interested parties to confirm them before relying on them in a purchase decision.
Copyright 2026 MRED. All rights reserved.

The broker providing these data believes them to be correct, but advises interested parties to confirm them before relying on them in a purchase decision.
Copyright 2026 MRED. All rights reserved.
This IDX solution is (c) Diverse Solutions 2026.