|
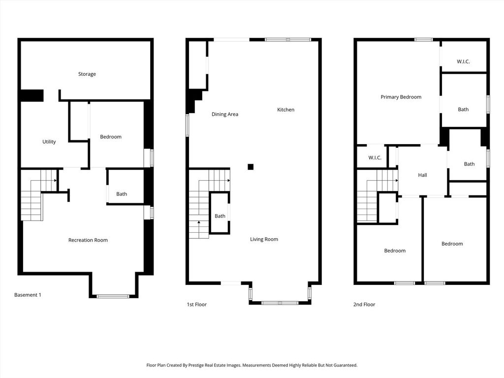
Welcome home to this classic, Chicago Workers Cottage. Built in 1891 and gut renovated in 2018, buyers get the best of both worlds with classic charm plus 21st century upgrades. This sun-drenched home features 4 bedrooms and 3.5 baths, across 3 levels of living space. The main floor provides a fully open concept. Gleaming, hardwood floors flow seamlessly throughout. The next owners will love making meals (and memories) in the chef's kitchen, featuring quartz countertops, 42" white shaker cabinets and stainless appliances. There's room for the whole family in the large living/dining space, with a convenient half bath for guests. Sliders take you out to a comfy deck and a fully fenced yard. When it's time for movie night or the big game, head downstairs to the cozy, finished basement, where you'll find an additional living space, a bedroom and a full bath with high end finishes. Generous, hidden storage and laundry round out the lower level. The primary bedroom and en-suite bath are on the top floor, along with two additional bedrooms and a shared, full bath. A two-car garage keeps your vehicles protected from the elements. The best part about this home? NOTHING is more than 8 years old. This is a no-brainer for anyone looking for a truly, turnkey property. Logan Square is the GEM of Chicago's west side. We have Michelin star restaurants, hip concert venues and thee best farmers market in the city. Step outside your front door and you will find easy access to the Metra (Healy Station), multiple CTA bus options, the McCormick YMCA and the 606 Trail. Stay tuned for additional photos and activation date. No showings prior to MLS activation
| DAYS ON MARKET | 62 | LAST UPDATED | 2/25/2026 |
|---|---|---|---|
| YEAR BUILT | 1893 | COMMUNITY | CHI - Humboldt Park |
| GARAGE SPACES | 2.0 | COUNTY | Cook |
| STATUS | Conditional | PROPERTY TYPE(S) | Single Family |
| Elementary School | Mcauliffe Elementary School |
|---|
| ADDITIONAL DETAILS | |
| AIR | Central Air |
|---|---|
| AIR CONDITIONING | Yes |
| APPLIANCES | Dishwasher, Dryer, Microwave, Range, Refrigerator, Stainless Steel Appliance(s), Washer |
| AREA | CHI - Humboldt Park |
| BASEMENT | Finished, Full, Yes |
| CONSTRUCTION | Aluminum Siding |
| GARAGE | Yes |
| HEAT | Natural Gas |
| INTERIOR | Entrance Foyer, Walk-In Closet(s) |
| LOT | 0 |
| LOT DIMENSIONS | 25X125 |
| PARKING | Detached, Garage |
| SEWER | Public Sewer |
| TAXES | 6071 |
MORTGAGE CALCULATOR
TOTAL MONTHLY PAYMENT
0
P
I
*Estimate only
| SATELLITE VIEW |
| / | |
We respect your online privacy and will never spam you. By submitting this form with your telephone number
you are consenting for Humderto
Garcia to contact you even if your name is on a Federal or State
"Do not call List".
Listed with eXp Realty
The data relating to real estate for sale on this web site comes in part from the Broker ReciprocitySM Program of MRED. All real estate listings are marked with the Broker ReciprocitySM logo or the MRED Broker ReciprocitySM thumbnail logo (a little black house) and detailed information about them includes the name of the listing brokers.
The broker providing these data believes them to be correct, but advises interested parties to confirm them before relying on them in a purchase decision.
Copyright 2026 MRED. All rights reserved.

The broker providing these data believes them to be correct, but advises interested parties to confirm them before relying on them in a purchase decision.
Copyright 2026 MRED. All rights reserved.
This IDX solution is (c) Diverse Solutions 2026.