|
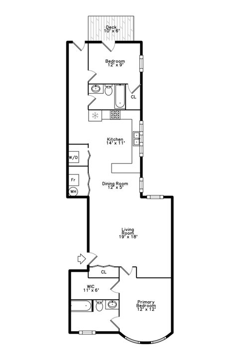
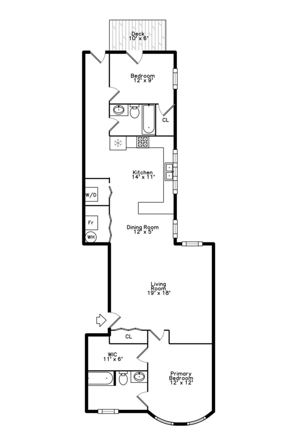
Step into this exceptionally spacious two-bedroom, two-bath residence featuring a desirable split-bedroom floor plan and included parking, perfectly tucked away on a quiet, tree-lined block bordering Hyde Park and Kenwood. Gleaming hardwood floors flow throughout an expansive open layout designed for both everyday living and effortless entertaining. The chef-inspired kitchen boasts a generous island with breakfast bar seating, while the serene primary suite offers a massive walk-in closet, charming bay window, and direct access to a private rear deck-your own peaceful retreat. Thoughtfully and extensively updated, this home provides true peace of mind: all new windows throughout, a new automatic parking gate, recent roof maintenance with 10-15 years of life remaining, and numerous mechanical upgrades including a new hot water tank and dishwasher (2022), HVAC system and refrigerator (2023), and washer/dryer (2025). The primary bath has also been beautifully refreshed with new tile, vanity, mirror, lighting, and toilet. Adding even more value, a newly constructed Northwestern Medicine and medical office building sits just beyond the alley, offering 24-hour security monitoring. Rentals allowed, Investors welcome. This is a rare opportunity to own a move-in-ready home that combines space, style, and location-come see it for yourself and fall in love.
| DAYS ON MARKET | 6 | LAST UPDATED | 1/27/2026 |
|---|---|---|---|
| YEAR BUILT | 0 | COMMUNITY | CHI - Grand Boulevard |
| COUNTY | Cook | STATUS | Active |
| PROPERTY TYPE(S) | Condo/Townhouse/Co-Op |
| ADDITIONAL DETAILS | |
| AIR | Central Air |
|---|---|
| AIR CONDITIONING | Yes |
| AMENITIES | Insurance, Snow Removal, Water |
| AREA | CHI - Grand Boulevard |
| BASEMENT | None |
| CONSTRUCTION | Brick |
| HEAT | Forced Air, Natural Gas |
| HOA DUES | 385 |
| INTERIOR | Walk-In Closet(s) |
| LOT | 0 |
| LOT DIMENSIONS | COMMON |
| PARKING | Assigned |
| SEWER | Public Sewer |
| STORIES | 3 |
| TAXES | 3519 |
| WATER | Public |
MORTGAGE CALCULATOR
TOTAL MONTHLY PAYMENT
0
P
I
*Estimate only
| SATELLITE VIEW |
| / | |
We respect your online privacy and will never spam you. By submitting this form with your telephone number
you are consenting for Humderto
Garcia to contact you even if your name is on a Federal or State
"Do not call List".
Listed with Option Premier LLC
The data relating to real estate for sale on this web site comes in part from the Broker ReciprocitySM Program of MRED. All real estate listings are marked with the Broker ReciprocitySM logo or the MRED Broker ReciprocitySM thumbnail logo (a little black house) and detailed information about them includes the name of the listing brokers.
The broker providing these data believes them to be correct, but advises interested parties to confirm them before relying on them in a purchase decision.
Copyright 2026 MRED. All rights reserved.

The broker providing these data believes them to be correct, but advises interested parties to confirm them before relying on them in a purchase decision.
Copyright 2026 MRED. All rights reserved.
This IDX solution is (c) Diverse Solutions 2026.