|
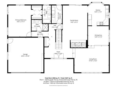
Spacious, functional, and built for real life. This 2-story home in the heart of Beecher sits on a DOUBLE lot, delivers a beautiful entryway, multiple living areas, and a full finished basement designed for entertaining. The main level offers a large living room with fireplace, an additional family room, formal dining space, and a main-floor primary bedroom for added flexibility. Upstairs features three generous bedrooms plus a hidden bonus room tucked into the attic space-perfect for a playroom, office, or extra storage. The finished basement includes brand-new carpet, open recreation space, wet bar with sink, and an additional bathroom, making it ideal for game nights, movie nights, and gatherings. Outside, enjoy a huge lot and an oversized back deck that shines in the summer and fall. The backyard tractor in the shed is included. New Culligan water softener. Excellent location close to schools, dining, and nightlife. A true gathering home with space where it matters.
| DAYS ON MARKET | 58 | LAST UPDATED | 2/11/2026 |
|---|---|---|---|
| YEAR BUILT | 1987 | COMMUNITY | Beecher |
| GARAGE SPACES | 2.0 | COUNTY | Will |
| STATUS | Active | PROPERTY TYPE(S) | Single Family |
| ADDITIONAL DETAILS | |
| AIR | Central Air |
|---|---|
| AIR CONDITIONING | Yes |
| APPLIANCES | Dishwasher, Dryer, Microwave, Range, Refrigerator, Washer, Water Softener |
| AREA | Beecher |
| BASEMENT | Finished, Full, Yes |
| CONSTRUCTION | Brick, Cedar |
| FIREPLACE | Yes |
| GARAGE | Attached Garage, Yes |
| HEAT | Forced Air, Natural Gas |
| INTERIOR | Cathedral Ceiling(s), Walk-In Closet(s) |
| LOT | 0 |
| LOT DIMENSIONS | 75 x 135 |
| PARKING | Concrete, Attached, Garage |
| SEWER | Public Sewer |
| TAXES | 10948 |
| WATER | Public |
MORTGAGE CALCULATOR
TOTAL MONTHLY PAYMENT
0
P
I
*Estimate only
| SATELLITE VIEW |
| / | |
We respect your online privacy and will never spam you. By submitting this form with your telephone number
you are consenting for Humderto
Garcia to contact you even if your name is on a Federal or State
"Do not call List".
Listed with Keller Williams Preferred Rlty
The data relating to real estate for sale on this web site comes in part from the Broker ReciprocitySM Program of MRED. All real estate listings are marked with the Broker ReciprocitySM logo or the MRED Broker ReciprocitySM thumbnail logo (a little black house) and detailed information about them includes the name of the listing brokers.
The broker providing these data believes them to be correct, but advises interested parties to confirm them before relying on them in a purchase decision.
Copyright 2026 MRED. All rights reserved.

The broker providing these data believes them to be correct, but advises interested parties to confirm them before relying on them in a purchase decision.
Copyright 2026 MRED. All rights reserved.
This IDX solution is (c) Diverse Solutions 2026.