|
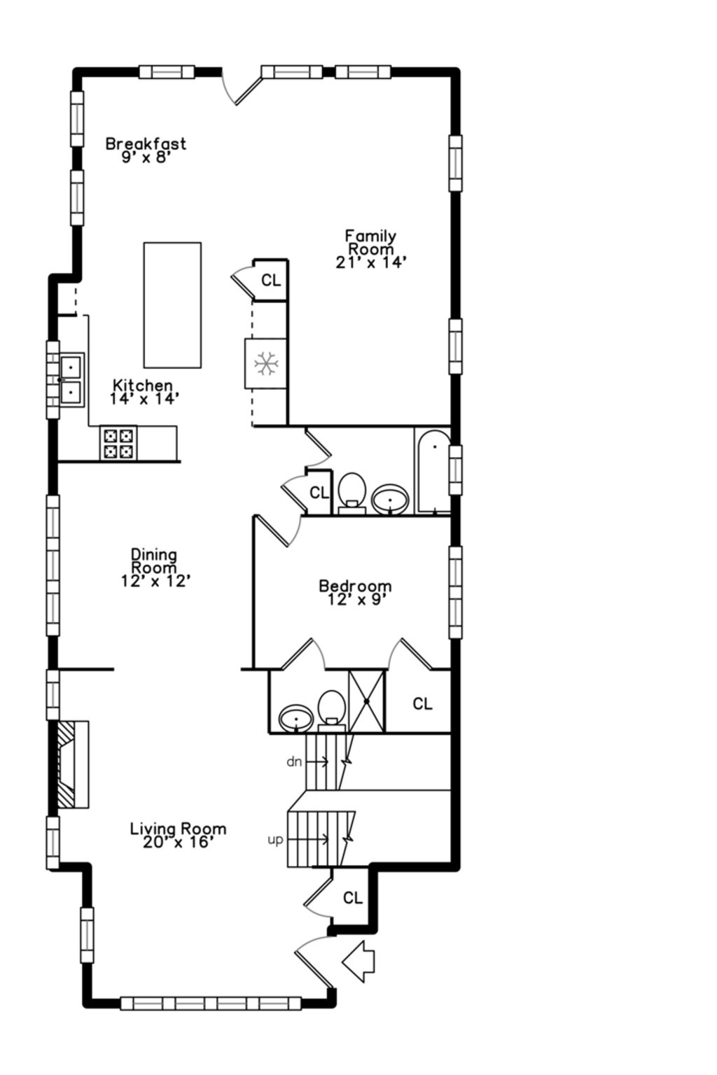
Nestled in the heart of La Grange, 120 S Stone Ave effortlessly blends timeless charm with modern updates in an unbeatable location. From the moment you step inside, you'll feel the thoughtful balance of character and convenience that makes this home truly special. This residence has been meticulously updated to ensure both comfort and ease. Recent upgrades include roof (2022 with GAF Timberline HDZ Class 3 shingles), furnace (2022), and AC (2019 and 2022), offering peace of mind for years to come. Zoned heating and cooling provide personalized comfort in every season, while modern amenities like a 2024 washer and dryer, a 2025 refrigerator, and dual water heaters (2019 and 2025) make daily living refreshingly simple. A family friendly layout offers multiple living spaces including a finished basement where you can enjoy the warmth of a built in sauna on those chilly winter days, 1 bedroom on the first floor, 3 bedrooms on the second floor (including the primary bedroom), and a third floor space that offers options for office, den, 5th bedroom, or all of them combined! Along with 4 full bathrooms! The location is a standout feature. Just two houses away from Elm Park, you'll have easy access to a sledding hill, playgrounds, and open spaces perfect for outdoor enjoyment. Commuters will appreciate being just a 3-minute walk to the Metra Train, and the walkable proximity to excellent schools, shopping, and dining adds even more appeal to this sought after neighborhood. Don't let this rare opportunity slip away. Schedule your showing today and discover the lifestyle that awaits at 120 S Stone Ave!
| DAYS ON MARKET | 46 | LAST UPDATED | 2/6/2026 |
|---|---|---|---|
| YEAR BUILT | 1924 | COMMUNITY | La Grange |
| GARAGE SPACES | 2.0 | COUNTY | Cook |
| STATUS | Conditional | PROPERTY TYPE(S) | Single Family |
| School District | Lyons Twp High School |
|---|---|
| Elementary School | Cossitt Avenue Elementary School |
| Jr. High School | Park Junior High School |
| High School | Lyons Twp High School |
| PRICE HISTORY | |
| Prior to Feb 4, '26 | $1,125,000 |
|---|---|
| Feb 4, '26 - Today | $1,099,000 |
| ADDITIONAL DETAILS | |
| AIR | Ceiling Fan(s), Central Air, Zoned |
|---|---|
| AIR CONDITIONING | Yes |
| APPLIANCES | Dishwasher, Disposal, Dryer, Humidifier, Microwave, Range, Refrigerator, Washer |
| AREA | La Grange |
| BASEMENT | Crawl Space, Finished, Full, Storage Space, Sump Pump, Yes |
| CONSTRUCTION | Synthetic Stucco |
| FIREPLACE | Yes |
| GARAGE | Yes |
| HEAT | Forced Air, Natural Gas, Zoned |
| INTERIOR | Cathedral Ceiling(s), Sauna |
| LOT | 6120 sq ft |
| LOT DESCRIPTION | Garden, Landscaped, Level |
| LOT DIMENSIONS | 45X136 |
| PARKING | Concrete, Garage Door Opener, Detached, Garage |
| SEWER | Public Sewer |
| STYLE | Contemporary |
| TAXES | 20251 |
MORTGAGE CALCULATOR
TOTAL MONTHLY PAYMENT
0
P
I
*Estimate only
| SATELLITE VIEW |
| / | |
We respect your online privacy and will never spam you. By submitting this form with your telephone number
you are consenting for Humderto
Garcia to contact you even if your name is on a Federal or State
"Do not call List".
Listed with Compass
The data relating to real estate for sale on this web site comes in part from the Broker ReciprocitySM Program of MRED. All real estate listings are marked with the Broker ReciprocitySM logo or the MRED Broker ReciprocitySM thumbnail logo (a little black house) and detailed information about them includes the name of the listing brokers.
The broker providing these data believes them to be correct, but advises interested parties to confirm them before relying on them in a purchase decision.
Copyright 2026 MRED. All rights reserved.

The broker providing these data believes them to be correct, but advises interested parties to confirm them before relying on them in a purchase decision.
Copyright 2026 MRED. All rights reserved.
This IDX solution is (c) Diverse Solutions 2026.