|
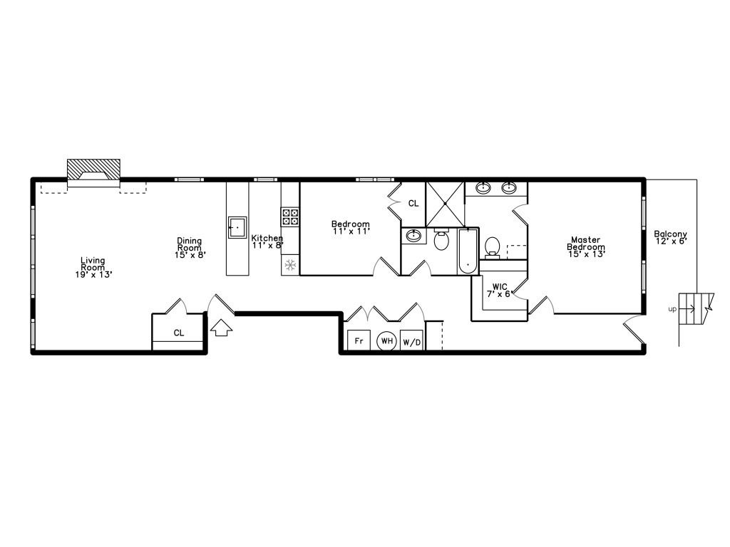
Enjoy elegant appointments and unmatched craftsmanship in this extra-wide 2-bedroom, 2-bath Lincoln Park residence. This unique home is quiet and serene due to soundproof barriers between floors and features oversized windows from three exposures, ushering in an abundance of natural light. The living/dining room features crown molding, detailed ceilings, built-in shelving, and a gas fireplace. A chef's kitchen offers custom cabinetry, quartz counters, Sub-Zero, Wolf, and Bosch appliances. Unwind on the spacious private outdoor terrace, the perfect spot to capture a summer sunset. A sumptuous primary suite offers a custom walk-in closet and an ensuite bath with heated floors, dual vanity, soapstone counters, and marble accents. A graciously sized second bedroom with large closet enjoys quick access to a full hall bath with tub/shower. A laundry closet with Electrolux WD and a mudroom completes this special home. One detached garage parking space included in the price. Located within close proximity to Oz Park, grocery stores, shops, dining, entertainment, schools, and public transportation. Welcome home!
| DAYS ON MARKET | 5 | LAST UPDATED | 1/30/2026 |
|---|---|---|---|
| YEAR BUILT | 2019 | COMMUNITY | CHI - Lincoln Park |
| GARAGE SPACES | 1.0 | COUNTY | Cook |
| STATUS | Conditional | PROPERTY TYPE(S) | Condo/Townhouse/Co-Op |
| School District | Lincoln Park High School |
|---|---|
| Elementary School | Oscar Mayer Elementary School |
| Jr. High School | Oscar Mayer Elementary School |
| High School | Lincoln Park High School |
| ADDITIONAL DETAILS | |
| AIR | Central Air |
|---|---|
| AIR CONDITIONING | Yes |
| AMENITIES | Insurance, Security, Water |
| APPLIANCES | Dishwasher, Disposal, Dryer, Freezer, Microwave, Range, Refrigerator, Stainless Steel Appliance(s), Washer |
| AREA | CHI - Lincoln Park |
| BASEMENT | None |
| CONSTRUCTION | Brick, Concrete |
| EXTERIOR | Balcony |
| FIREPLACE | Yes |
| GARAGE | Yes |
| HEAT | Natural Gas, Radiant Floor |
| HOA DUES | 320 |
| INTERIOR | Walk-In Closet(s) |
| LOT | 0 |
| LOT DIMENSIONS | COMMON |
| PARKING | Concrete, Garage Door Opener, Detached, Garage |
| SEWER | Public Sewer |
| STORIES | 1 |
| TAXES | 15010.31 |
MORTGAGE CALCULATOR
TOTAL MONTHLY PAYMENT
0
P
I
*Estimate only
| SATELLITE VIEW |
| / | |
We respect your online privacy and will never spam you. By submitting this form with your telephone number
you are consenting for Humderto
Garcia to contact you even if your name is on a Federal or State
"Do not call List".
Listed with @properties Christie's International Real Estate
The data relating to real estate for sale on this web site comes in part from the Broker ReciprocitySM Program of MRED. All real estate listings are marked with the Broker ReciprocitySM logo or the MRED Broker ReciprocitySM thumbnail logo (a little black house) and detailed information about them includes the name of the listing brokers.
The broker providing these data believes them to be correct, but advises interested parties to confirm them before relying on them in a purchase decision.
Copyright 2026 MRED. All rights reserved.

The broker providing these data believes them to be correct, but advises interested parties to confirm them before relying on them in a purchase decision.
Copyright 2026 MRED. All rights reserved.
This IDX solution is (c) Diverse Solutions 2026.