|
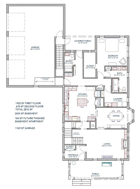
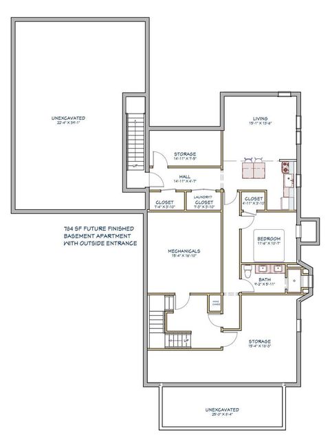
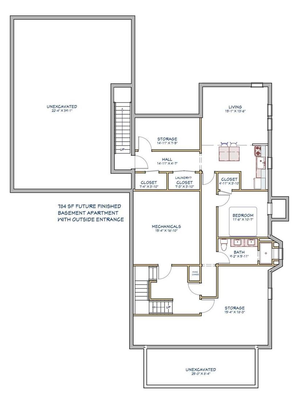
PROPOSED CONSTRUCTION Multigenerational Family Home. This unique plan -Ode To The Chicago Bungalow-shows a spacious, accessible main floor plan with 9 foot ceiling height and first floor primary suite, 626 SF on the second floor adds two more bedrooms plus full bath and the daylight basement with separate outside entrance is a complete additional 784 SF 1 bedroom apartment, with connection to the main floor. The plan is designed especially for this lot with a passive solar orientation. Net-zero-energy-ready options are available. customization of the plan is welcome, additional multigenerational plans also available for this orientation, and various exterior finishes. Actual final price will be determined by options chosen (some depicted in the renderings) and market prices at the time of construction. Brickhouses Road provides large lots for you to live and grow on, very low county taxes, sustainable living, surrounded by open spaces and nature, located NE of Urbana in the historic Big Grove area. All city services available except sewer, standard septic system is required. No HOA, but building covenants are in place. Recessive garages required and no vinyl siding is permitted. Let us help you build your new forever home here.
| DAYS ON MARKET | 48 | LAST UPDATED | 1/28/2026 |
|---|---|---|---|
| YEAR BUILT | 2026 | COMMUNITY | Urbana |
| GARAGE SPACES | 3.0 | COUNTY | Champaign |
| STATUS | Active | PROPERTY TYPE(S) | Single Family |
| ADDITIONAL DETAILS | |
| AIR | Central Air |
|---|---|
| AIR CONDITIONING | Yes |
| AREA | Urbana |
| BASEMENT | Daylight, Full, Walk-Up Access, Yes |
| CONSTRUCTION | Brick |
| GARAGE | Attached Garage, Yes |
| HEAT | Zoned |
| LOT | 1.02 acre(s) |
| LOT DIMENSIONS | 253x176 |
| PARKING | Attached, Garage |
| SEWER | Septic Tank |
| TAXES | 12.66 |
| WATER | Public |
MORTGAGE CALCULATOR
TOTAL MONTHLY PAYMENT
0
P
I
*Estimate only
| SATELLITE VIEW |
| / | |
We respect your online privacy and will never spam you. By submitting this form with your telephone number
you are consenting for Humderto
Garcia to contact you even if your name is on a Federal or State
"Do not call List".
Listed with Beycome brokerage realty LLC
The data relating to real estate for sale on this web site comes in part from the Broker ReciprocitySM Program of MRED. All real estate listings are marked with the Broker ReciprocitySM logo or the MRED Broker ReciprocitySM thumbnail logo (a little black house) and detailed information about them includes the name of the listing brokers.
The broker providing these data believes them to be correct, but advises interested parties to confirm them before relying on them in a purchase decision.
Copyright 2026 MRED. All rights reserved.

The broker providing these data believes them to be correct, but advises interested parties to confirm them before relying on them in a purchase decision.
Copyright 2026 MRED. All rights reserved.
This IDX solution is (c) Diverse Solutions 2026.