|
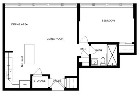
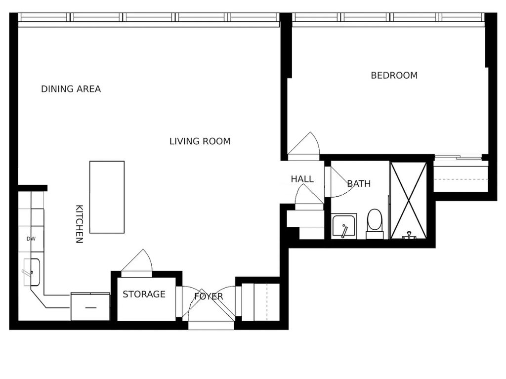
Rarely available one-bedroom condo located on the 5th floor in the heart of Chicago's Lakeview neighborhood. This spacious unit features lake views from every room, wood laminate flooring, white trim, and abundant natural light throughout. The living area is generously sized and includes space for a home office. The updated eat-in kitchen offers an open layout with a large island, newer appliances, and ample cabinet storage. The bedroom provides a comfortable retreat with multiple closets. Brand new air conditioning units installed this year. Storage is a standout feature, with several closets throughout the unit plus an additional private storage unit in the basement. Building amenities include a rooftop deck with panoramic city views, grills, an indoor solarium, 24-hour door staff, on-site management, laundry facilities, and a receiving room. Conveniently located near shopping, dining, beaches, recreation, and public transportation. HOA includes heat, water, TV/cable and high speed internet.
| DAYS ON MARKET | 5 | LAST UPDATED | 1/28/2026 |
|---|---|---|---|
| YEAR BUILT | 1958 | COMMUNITY | CHI - Lake View |
| GARAGE SPACES | 1.0 | COUNTY | Cook |
| STATUS | Active | PROPERTY TYPE(S) | Condo/Townhouse/Co-Op |
| ADDITIONAL DETAILS | |
| AIR | Wall Unit(s) |
|---|---|
| AIR CONDITIONING | Yes |
| AMENITIES | Gas, Internet, Water |
| APPLIANCES | Dishwasher, Microwave, Range, Refrigerator |
| AREA | CHI - Lake View |
| BASEMENT | None |
| CONSTRUCTION | Brick |
| GARAGE | Attached Garage, Yes |
| HEAT | Steam |
| HOA DUES | 864 |
| INTERIOR | Elevator |
| LOT | 0 |
| LOT DIMENSIONS | CONDO |
| PARKING | Concrete, Heated Garage, Leased, Attached, Garage |
| SEWER | Other |
| STORIES | 25 |
| TAXES | 1879 |
MORTGAGE CALCULATOR
TOTAL MONTHLY PAYMENT
0
P
I
*Estimate only
| SATELLITE VIEW |
| / | |
We respect your online privacy and will never spam you. By submitting this form with your telephone number
you are consenting for Humderto
Garcia to contact you even if your name is on a Federal or State
"Do not call List".
Listed with Core Realty & Investments Inc.
The data relating to real estate for sale on this web site comes in part from the Broker ReciprocitySM Program of MRED. All real estate listings are marked with the Broker ReciprocitySM logo or the MRED Broker ReciprocitySM thumbnail logo (a little black house) and detailed information about them includes the name of the listing brokers.
The broker providing these data believes them to be correct, but advises interested parties to confirm them before relying on them in a purchase decision.
Copyright 2026 MRED. All rights reserved.

The broker providing these data believes them to be correct, but advises interested parties to confirm them before relying on them in a purchase decision.
Copyright 2026 MRED. All rights reserved.
This IDX solution is (c) Diverse Solutions 2026.