|
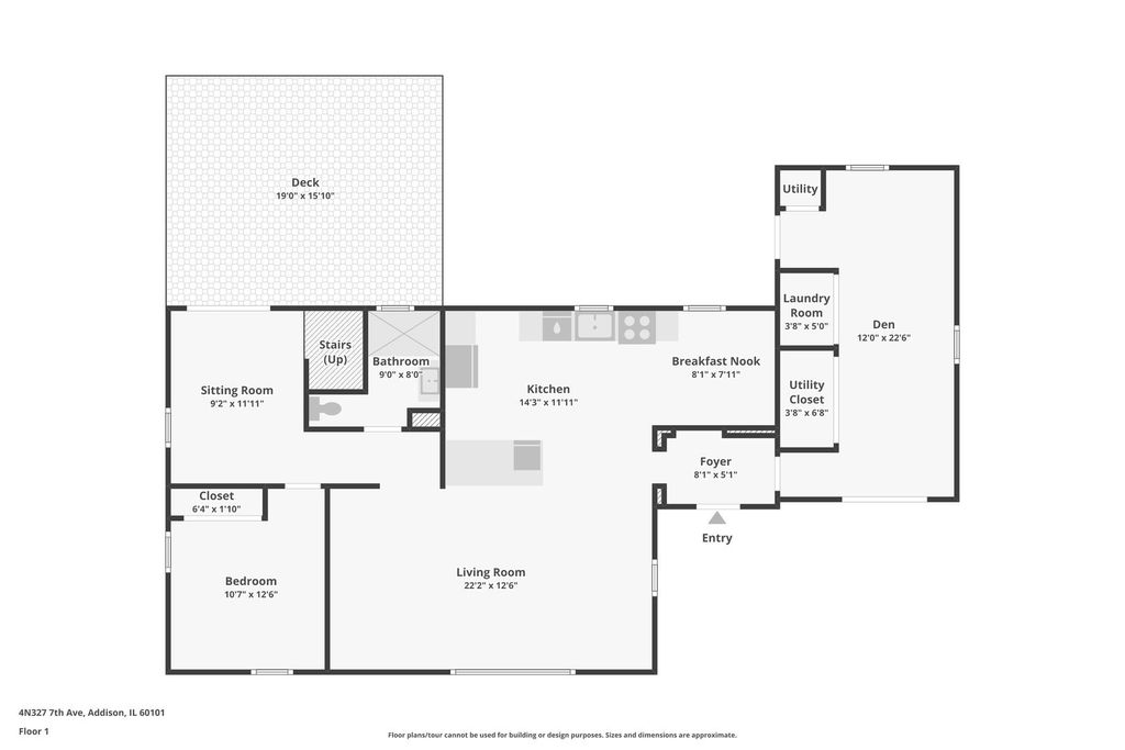
This beautifully renovated two-story home offers 4 spacious bedrooms and 3 full bathrooms approximately 2,208 sqft of modern living space. Step inside to a sun-lit foyer and a large living room with can lights, complemented by new laminate floors on the main level. The open kitchen features white cabinets, quartz countertops, and upgraded stainless steel appliances, while a first-floor bedroom and full bath provide convenience. Upstairs, you'll find 3 generous bedrooms, including a master suite with an attached bath and walk-in closet, along with a hallway bath with a new double vanity and stylish tile work. The spacious backyard with a wooden deck is ideal for summer entertaining, and a large main-floor work area with washer and dryer adds practicality. The home also includes a 2-car garage, new roof, and gutters, making it a perfect place to call home.
| DAYS ON MARKET | 4 | LAST UPDATED | 1/29/2026 |
|---|---|---|---|
| YEAR BUILT | 1957 | COMMUNITY | Addison |
| GARAGE SPACES | 2.0 | COUNTY | DuPage |
| STATUS | Active | PROPERTY TYPE(S) | Single Family |
| School District | Addison Trail High School |
|---|---|
| Elementary School | Wesley Elementary School |
| Jr. High School | Indian Trail Junior High School |
| High School | Addison Trail High School |
| ADDITIONAL DETAILS | |
| AIR | Ceiling Fan(s), Central Air |
|---|---|
| AIR CONDITIONING | Yes |
| APPLIANCES | Dishwasher, Microwave, Range, Refrigerator, Stainless Steel Appliance(s), Wine Refrigerator |
| AREA | Addison |
| BASEMENT | None, Sump Pump, Yes |
| CONSTRUCTION | Brick, Vinyl Siding |
| GARAGE | Yes |
| HEAT | Forced Air, Natural Gas |
| LOT | 0.3534 acre(s) |
| LOT DIMENSIONS | 15390 |
| PARKING | Asphalt, No Garage, Detached, Garage |
| SEWER | Septic Tank |
| STYLE | Other |
| TAXES | 8513 |
| WATER | Well |
MORTGAGE CALCULATOR
TOTAL MONTHLY PAYMENT
0
P
I
*Estimate only
| SATELLITE VIEW |
| / | |
We respect your online privacy and will never spam you. By submitting this form with your telephone number
you are consenting for Humderto
Garcia to contact you even if your name is on a Federal or State
"Do not call List".
Listed with Sky High Real Estate Inc.
The data relating to real estate for sale on this web site comes in part from the Broker ReciprocitySM Program of MRED. All real estate listings are marked with the Broker ReciprocitySM logo or the MRED Broker ReciprocitySM thumbnail logo (a little black house) and detailed information about them includes the name of the listing brokers.
The broker providing these data believes them to be correct, but advises interested parties to confirm them before relying on them in a purchase decision.
Copyright 2026 MRED. All rights reserved.

The broker providing these data believes them to be correct, but advises interested parties to confirm them before relying on them in a purchase decision.
Copyright 2026 MRED. All rights reserved.
This IDX solution is (c) Diverse Solutions 2026.